NEU - GARTENSEITIGE GROSSE TERRASSE | ERSTBEZUG | RAUMHÖHE BIS ZU 3,10 M | PROVISIONSFREI

Wohnung zum Kauf in 1130 Wien - Kaufpreis: 580.000 € / Objektnummer: 1609/456941
Ausstattung: Boden Fahrstuhl Bad Kabel/Satelliten-TV Klimaanlage Fahrradraum Terrasse
Grosse Terrasse
Terrasse | original Dachbodenziegel
Grünblick auf der ruhigen Gartenseite
Heller Wohnbereich
Moderne Architektur
Offener Wohnbereich
Vorraum
Blick in den Abstellraum | Waschmaschinenanschluss
Wunderschöne Küche
Vorraum zentral begehbar
Ansicht Bad und Vorraum
Ansicht WC und Wohnraum
Bad mit Wanne
Schlafzimmer
Schlafzimmer
Sanierter Altbau - Stiegenhaus
Lift
Stilvoll und Topsaniert
Keller
Waschküche
Hauseingang

Preisinformationen

Kaufpreis:
580.000 €
Provision:
Provision bezahlt der Abgeber.

Fakten

Objektnummer:
1609/456941
Objekttyp:
Wohnung
Terrasse:
1
Keller Fläche:
4,66 m²
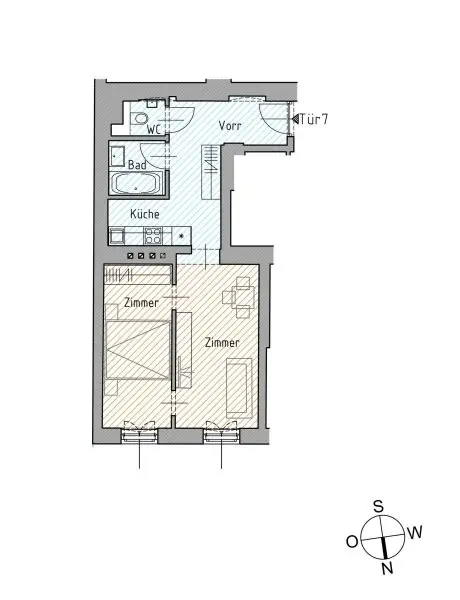
Wohnfläche:
64,92 m²
Zimmer:
3
Badezimmer:
1
Toilette:
1
Stockwerk:
2
Baujahr:
2025
Neubau:
Ja
Zustand:
Erstbezug
Verfügbarkeit:
Verfügbar

Beschreibung

Moderne Terrassenwohnung mit außergewöhnlicher Raumhöhe – Ruhig gelegen, nach hinten gartenseitig ausgerichtet, öffnet sie sich zu einem geschützten, grünen Rückzugsbereich.
Diese besondere 3-Zimmer-Terrassenwohnung verbindet den Charme des hochwertig sanierten Altbaus mit der klaren Modernität des angebauten Neubaus. Besonders beeindruckend ist die Raumhöhe von bis zu 3,10 Metern, die der Wohnung eine großzügige und luftige Atmosphäre verleiht.

Highlights der Wohnung
- Südseitige ca. 6,55 m² Terrasse
- Hochwertige Einbauküche, inkl. Marken-Geräten
- Modernes Badezimmer mit Badewanne, LED-Spiegelschrank und Markenarmaturen
- Abstellraum mit Waschmaschinenanschluß
- Innovatives Heizsystem: Infrarot-Konvektoren (fernsteuerbar über App) & Fußboden-Infrafloor Heizmatten im Vorraum, Bad und WC
- Klimaanlage im Wohn- und Schlafzimmer
- LED-Grundbeleuchtung in allen Funktionsbereichen
- Parkettboden Landhausdiele Eiche natur
- Innenjalousien
- Ruhige Gartenlage 
- Raumhöhe im Altbau bis zu 3,10 m und im Neubau 2,50 m
- Personenlift im Haus
- Waschküche im Haus
- Fahrradabstellmöglichkeiten im Haus und vor dem Haus

Eine perfekte Wohnung für alle, die modernen Komfort, außergewöhnliche Raumwirkung und eine ruhige Lage in urbanem Umfeld schätzen.

Wir weisen darauf hin, dass zwischen dem Vermittler und dem zu vermittelnden Dritten ein familiäres oder wirtschaftliches Naheverhältnis besteht.

Der Vermittler ist als Doppelmakler tätig.

Infrastruktur / Entfernungen

Gesundheit
Arzt 500m
Apotheke 500m
Klinik 2.000m
Krankenhaus 1.000m

Kinder & Schulen
Schule 500m
Kindergarten 1.000m
Universität 1.500m
Höhere Schule 4.000m

Nahversorgung
Supermarkt 500m
Bäckerei 500m
Einkaufszentrum 4.000m

Sonstige
Geldautomat 500m
Bank 1.000m
Post 1.000m
Polizei 500m

Verkehr
Bus 500m
Straßenbahn 1.000m
U-Bahn 500m
Bahnhof 500m
Autobahnanschluss 4.500m

Angaben Entfernung Luftlinie / Quelle: OpenStreetMap
Beschreibung weiterlesen

Lage und Verkehrsanbindung

Hervorragende Anbindung für Stadtmenschen mit Anspruch

Dieses aussergewöhnliche Wohnprojekt, das Altbaucharme mit moderner Architektur verbindet, überzeugt besonders durch seine ausgezeichnete öffentliche Verkehrsanbindung. Die U4-Station Ober St. Veit ist in wenigen Gehminuten erreichbar und bringt Sie in nur einer Station nach Hütteldorf oder in die andere Fahrtrichtung rasch in die Wiener Innenstadt.

Zusätzlich befinden sich die Buslinien 47A, 54A, 54B sowie die N54 nur wenige Minuten entfernt und bieten flexible Mobilität zu jeder Tages- und Nachtzeit.
Für Naturliebhaber und sportlich Aktive liegt der beliebte Wientalradweg/Wienflussweg quasi vor der Haustür. Der Weg führt vom Lainzer Tiergarten, bzw. Auhof bis in die Wiener Innenstadt (Karlsplatz) – ideal für Radpendler, Läufer oder Spaziergänger, die gerne flusswärts ins Stadtzentrum gleiten.

U4 Station Ober St. Veit

Energieeffizienz

HWB:
42,8 kWh/(m²*a)
HWB Klasse:
B
fGEE:
1,32
fGEE Klasse:
C
Energieausweisart:
Energiebedarfs-ausweis
Gültig bis:
08.04.2035

Grundriss

Lageplan

1130 Wien | Wien 13., Hietzing

Lade...
Karin Prosenik-Resch

Karin Prosenik-Resch
Broker Owner

RE/MAX First - REM Immobilienmakler GmbH & Co KG

Anrufen
Lade...

Fotomix

Grosse Terrasse Terrasse | original Dachbodenziegel Grünblick auf der ruhigen Gartenseite Heller Wohnbereich Moderne Architektur Offener Wohnbereich Vorraum Blick in den Abstellraum | Waschmaschinenanschluss Wunderschöne Küche Vorraum zentral begehbar Ansicht Bad und Vorraum Ansicht WC und Wohnraum Bad mit Wanne Schlafzimmer Schlafzimmer Sanierter Altbau - Stiegenhaus Lift Stilvoll und Topsaniert Keller Waschküche Hauseingang