NEU - Modernes Büro in der Argentinierstraße zu vermieten

Immobilie zur Miete in 1040 Wien / Objektnummer: 1124/961
Ausstattung: Boden Fahrstuhl Möbliert Kabel/Satelliten-TV Klimaanlage Fußbodenheizung

Preisinformationen

Gesamtmiete (exkl. USt.):
4.097,69 € / Monat
Betriebskosten netto:
277,68 € / Monat
Heizkosten netto:
339,28 €
Umsatzsteuer:
92,41 €
Miete/m² netto:
19,63 €
Kaution:
3 Bruttomonatsmieten
Vermittlungsprovision:
Ja
Provision:
3 Bruttomonatsmieten zzgl. 20% USt.

Fakten

Objektnummer:
1124/961
Keller Fläche:
6 m²
Nutzfläche:
198,63 m²
Zimmer:
4
Toilette:
2
Stockwerk:
4
Baujahr:
2017
Neubau:
Ja
Letzte Sanierung:
2017
Zustand:
Neuwertig
Verfügbarkeit:
Verfügbar

Beschreibung

BÜRO  IN DER ARGENTINENSTRASSE!

Büro zur Miete in der Argentinenstraße – 198,63 m² in einem renovierten Altbau mit 1 Parkplatz

Dieses exklusive Büro befindet sich im 4. Stock eines charmant renovierten Altbaus und bietet eine hervorragende Kombination aus Komfort und einem gehobenen Image. Der Bürobereich ist perfekt für Unternehmen, die Wert auf eine zentrale Lage, eine gute Verkehrsanbindung und stilvolles Arbeitsumfeld legen.

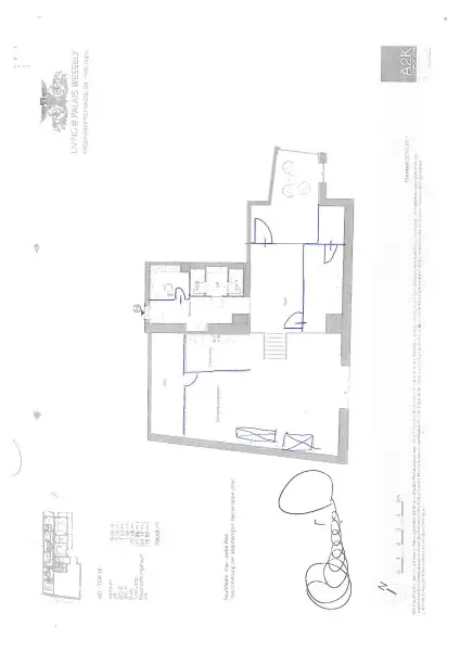
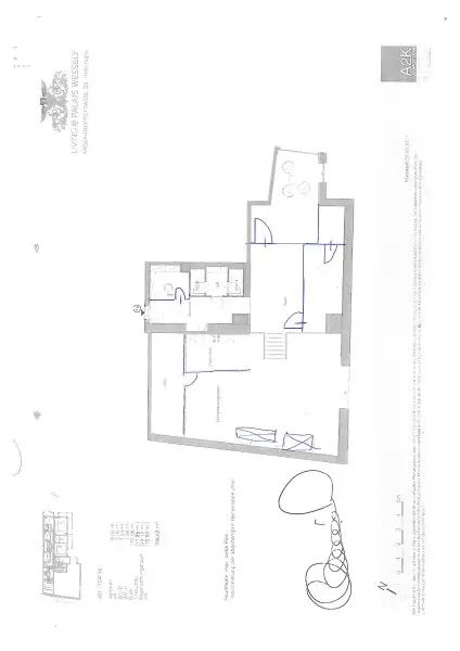
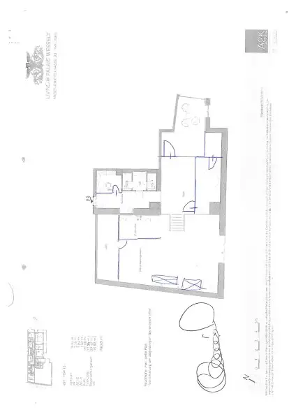
Bürofläche: 198,63 m², aufgeteilt auf:

* Langer Flur – sorgt für eine großzügige und klare Raumaufteilung
* Serverraum – für Ihre technischen Geräte und Netzwerkinfrastruktur
* Getrennte Toiletten – separate Toiletten für Damen und Herren
* Separate Büros mit Glasfenstern – ideal für konzentriertes Arbeiten oder für das Führungsteam
* Besprechungsraum – ein eleganter Raum für Meetings und Kundenempfänge
* Open Space – flexibles Büro für mindestens 6 Arbeitsplätze, fördert Zusammenarbeit und Kommunikation
* Voll ausgestattete Küche – mit hochwertigen Miele-Geräten, ideal für Pausen und Teambesprechungen
* Abstellraum mit Einbauschränken – zusätzlicher Stauraum für Bürobedarf

Zusätzlich verfügbar:

* 1 Parkplatz – direkt am Gebäude, perfekt für Mitarbeiter oder Kunden, die mit dem Auto anreisen

Das Büro ist voll möbliert und eignet sich hervorragend für Unternehmen, die eine moderne, gut ausgestattete und zentral gelegene Fläche suchen. Die Räume sind so gestaltet, dass sie sowohl für administrative Tätigkeiten als auch für kreative Zusammenarbeit genutzt werden können.

Weitere Vorteile:

* Gute Verkehrsanbindung – sowohl mit öffentlichen Verkehrsmitteln als auch mit dem Auto gut erreichbar
* Hochwertige Ausstattung – vom Design über die Möbel bis hin zu den Küchengeräten
* Gehobenes Image – der Altbau mit modernisierten Elementen vermittelt Professionalität und Stil

Ideal für Firmen, die sowohl Komfort als auch eine praktische Lage für ihre tägliche Arbeit benötigen.

 

Miete: 3550€ netto plus BK und 20% Ust.

Kaution: 3 BMM  

Provision: 3 MM zzgl. 20% Ust 

Bei Fragen und für Terminreservierungen bitten wir Sie die Frau Zelenkova unter der folgenden Nummer zu kontaktieren: +43 664 6501546 [tel:+436646501546]

Infrastruktur / Entfernungen

Gesundheit
Arzt 500m
Apotheke 500m
Klinik 500m
Krankenhaus 1.500m

Kinder & Schulen
Schule 500m
Kindergarten 500m
Universität 500m
Höhere Schule 500m

Nahversorgung
Supermarkt 500m
Bäckerei 500m
Einkaufszentrum 1.000m

Sonstige
Geldautomat 500m
Bank 500m
Post 500m
Polizei 500m

Verkehr
Bus 500m
U-Bahn 500m
Straßenbahn 500m
Bahnhof 500m
Autobahnanschluss 3.000m

Angaben Entfernung Luftlinie / Quelle: OpenStreetMap
Beschreibung weiterlesen

Lage und Verkehrsanbindung

Nähe U1 Taubstummengasse
Karlskirche

Karlsplatz

Energieeffizienz

HWB Klasse:
C
fGEE:
1,16
fGEE Klasse:
C
Energieausweisart:
Energiebedarfs-ausweis
Gültig bis:
19.03.2025

Grundriss

Lageplan

1040 Wien | Wien 4., Wieden

Lade...
Yunna Zelenkova

Yunna Zelenkova

Crown Consulting GmbH

Anrufen
Lade...

Fotomix

Bild 1 Bild 2 Bild 3 Bild 4 Bild 5 Bild 6 Bild 7 Bild 8 Bild 9 Bild 10 Bild 11 Bild 12 Bild 13 Bild 14