NEU - Provisionsfrei: Renovierter 49m² Altbau mit 2 Zimmern und Einbauküche - 1140 Wien

Wohnung zur Miete in 1140 Wien - Gesamtmiete: 668,94 € / Objektnummer: 7679
Ausstattung: Boden Bad Kabel/Satelliten-TV Abstellraum Etagenheizung

Preisinformationen

Gesamtmiete:
668,94 € / Monat
Betriebskosten netto:
123,67 € / Monat
Umsatzsteuer:
60,73 €
Kaution:
2.010,00 €
Provision:
Gemäß Erstauftraggeberprinzip bezahlt der Abgeber die Provision.

Fakten

Objektnummer:
7679
Objekttyp:
Wohnung
Wohnfläche:
49 m²
Zimmer:
2
Badezimmer:
1
Toilette:
1
Stockwerk:
3
Baujahr:
1920
Altbau:
Ja
Zustand:
Teilsaniert
Verfügbarkeit:
Verfügbar

Beschreibung

Renovierter 49m² Altbau mit Einbauküche und 2 Zimmern Nähe U3!

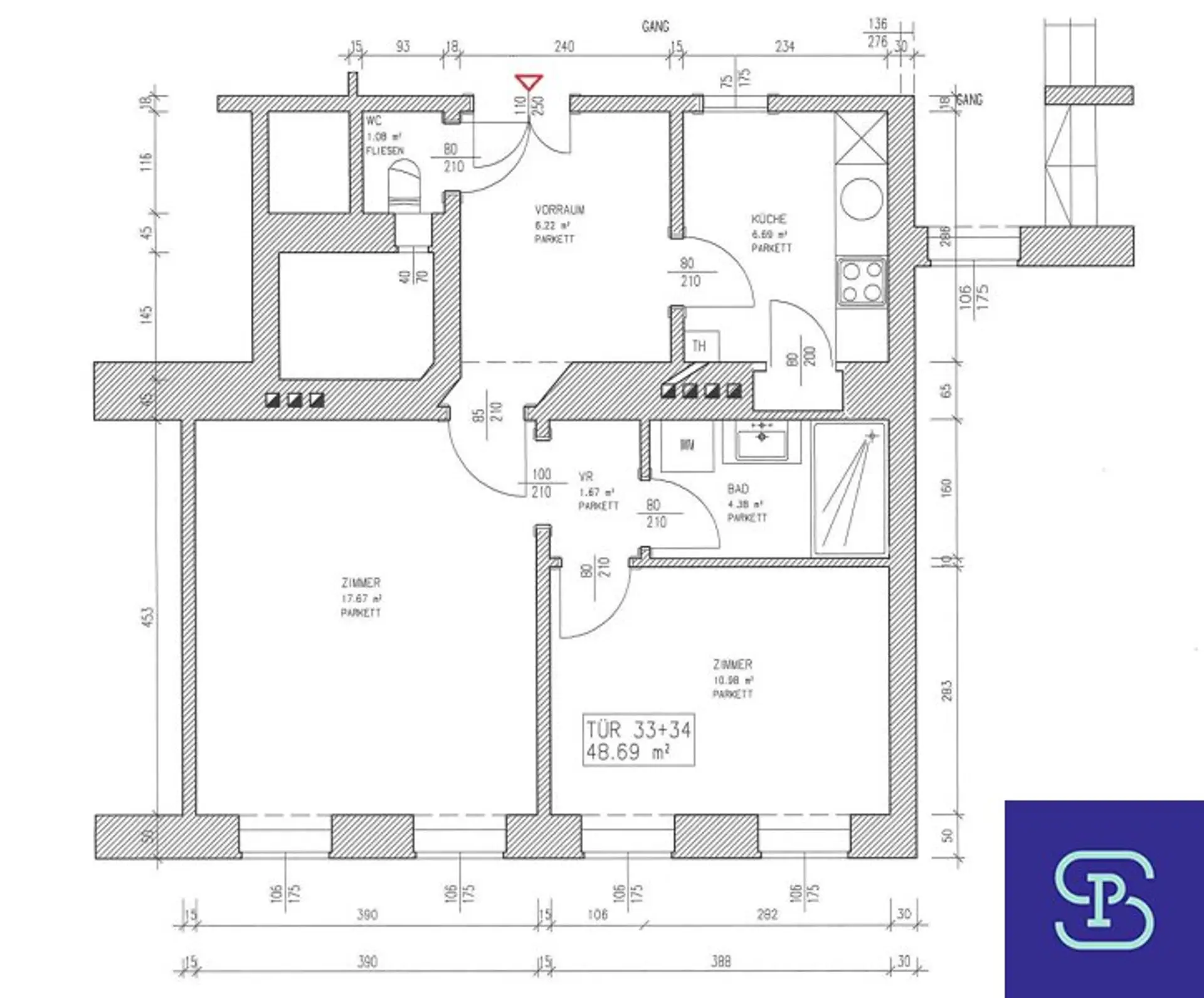
Diese renovierte Wohnung befindet sich hofseitig ausgerichtet im 3. Stock (kein Lift!) eines gepflegten Altbaus in der Beckmanngasse, einer ruhigen Seitengasse der Hütteldorfer Straße. Die sonnige Wohnung ist südseitig ausgerichtet und besteht aus Wohnzimmer, Schlafzimmer, Küche, Vorraum, Badezimmer, Mini-Abstellraum und WC,. 

Achtung: Diese Wohnung ist aufgrund der Raumaufteilung NICHT WG-tauglich!

Ausstattung: Einbauküche mit Geräten, Gasetagenheizung, Fliesenbad mit Dusche, Kunststofffenster mit Mehrfachverglasung, Parkettböden, Sprechanlage, Kabel-TV u. Internet-Vorbereitung,.

Helle und sonnige Wohnung in absolut ruhiger Hoflage die vor einigen Jahren aufwendig renoviert wurde. Zentrale Lage in unmittelbarer Nähe zur U3 Station Hütteldorfer Straße. Sehr gute Infrastruktur und öffentliche Verkehrsanbindung durch die Straßenbahnlinien 10, 49 sowie der U-Bahn Linie U3 und S-Bahn S45. 

Die Wohnung wird ab sofort in befristeter Hauptmiete (3 Jahre) vermietet.
Gesamtmiete inkl. Bk und 10% USt. € 668,94
(HMZ € 450,47 + IM € 33,07 + Bk € 123,67 + 10% USt. € 60,73 + Manip. € 1,-)
Kaution € 2.010,-

KONTAKT: Anfragen bitte nur per Email-Anfragefunktion! Keine telefonische Terminvergabe!

Besuchen Sie für unsere weiteren Angebote bitte auch unsere Homepage: www.sitarz.at [http://www.sitarz.at] 

Der Immobilienmakler erklärt, dass er – entgegen dem in der Immobilienwirtschaft üblichen Geschäftsgebrauch des Doppelmaklers – einseitig nur für den Vermieter tätig ist.

Infrastruktur / Entfernungen

Gesundheit
Arzt 500m
Apotheke 500m
Klinik 1.000m
Krankenhaus 2.000m

Kinder & Schulen
Schule 500m
Kindergarten 500m
Universität 1.000m
Höhere Schule 1.500m

Nahversorgung
Supermarkt 500m
Bäckerei 500m
Einkaufszentrum 500m

Sonstige
Geldautomat 500m
Bank 500m
Post 500m
Polizei 500m

Verkehr
Bus 500m
U-Bahn 500m
Straßenbahn 500m
Bahnhof 500m
Autobahnanschluss 5.000m

Angaben Entfernung Luftlinie / Quelle: OpenStreetMap
Beschreibung weiterlesen

Lage und Verkehrsanbindung

Beckmanngasse

Hütteldorfer Straße

Energieeffizienz

HWB:
145 kWh/(m²*a)
HWB Klasse:
E
fGEE:
1,86
fGEE Klasse:
D
Energieausweisart:
Energiebedarfs-ausweis
Gültig bis:
25.01.2033

Grundriss

Lageplan

1140 Wien | Wien 14., Penzing

Lade...
Sitarz & Partner Immobilien GmbH

Sitarz & Partner Immobilien GmbH
Office

Sitarz & Partner Immobilien GmbH

Anrufen
Lade...

Fotomix

Bild 1 Bild 2 Bild 3 Bild 4 Bild 5 Bild 6 Bild 7 Bild 8 Bild 9 Bild 10 Bild 11 Bild 12 Bild 13 Bild 14 Bild 15 Bild 16