1.346 m² großes Grundstück mit Top-Bebaubarkeit & vermietetem Haus – attraktive Ertragschance

Haus zum Kauf in 2304 Orth an der Donau - Kaufpreis: 265.000 € / Objektnummer: 760
Ausstattung: Möbliert Kabel/Satelliten-TV Parkplatz Außenparkplatz Zentralheizung Terrasse
Drohnenfoto
Drohnenfoto_2
Gartenansicht
Küche
Küche_2
Bad
WC
Wohnzimmer
Schlafzimmer Erdgeschoss
Schlafzimmer Erdgeschoss_2
Schlafzimmer Obergeschoss
Keller
Garten
Garten
Garten
Carport
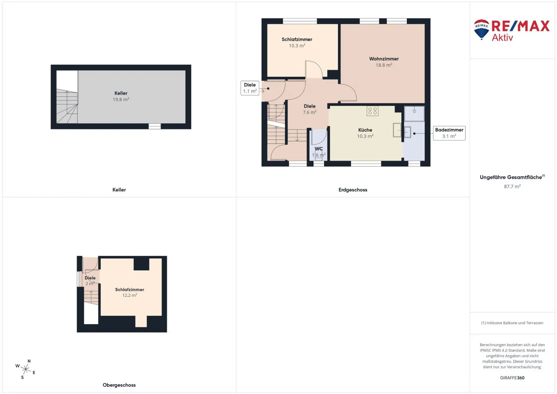
Plan Erdgeschoss
Plan Obergeschoss
Plan Keller
Pläne gesamt

Preisinformationen

Kaufpreis:
265.000 €
Preisinfos:
Verhandlungsbasis
Provision:
3.00 %

Fakten

Objektnummer:
760
Objekttyp:
Haus
Terrasse:
1
Keller Fläche:
20 m²
Wohnfläche:
68 m²
Grundstücksfläche:
1.346 m²
Zimmer:
3,5
Schlafzimmer:
2
Badezimmer:
1
Toilette:
1
Baujahr:
ca. 1950
Verfügbarkeit:
Verfügbar

Beschreibung

1.346 m² großes Grundstück mit Top-Bebaubarkeit & vermietetem Haus – attraktive Ertragschance

Zum Verkauf steht eine idyllische Liegenschaft mit einem kleinen Wohnhaus aus den 1950er Jahren auf einem großzügigen Grundstück von 1.346 m². Die angenehme Wohnlage kombiniert ländliches Flair mit idealer Grundstücksbebaubarkeit – perfekt für alle, die ein charmantes Bestandsobjekt suchen oder das Potenzial eines großen Grundstücks ausschöpfen möchten.

Das Haus – kompakt, gemütlich & funktional

Die Wohnfläche beträgt ca. 68 m², aufgeteilt auf Erd- und Obergeschoss.

Erdgeschoss – zentral begehbar und gut strukturiert:

Vom Vorzimmer aus sind sämtliche Räume direkt zugänglich:

- Küche

- Badezimmer mit Dusche und Waschbecken

- Separates WC

- Schlafzimmer

- Wohnzimmer mit Schwedenofen, ideal für behagliche Wärme und gemütliche Abende

Vom Vorzimmer führt eine Treppe ins Obergeschoss.

Obergeschoss:

- Ein weiteres Schlafzimmer

- Dachboden mit zusätzlichem Stauraum

Keller:

Das Haus ist teilunterkellert (ca. 20 m²). Im Keller befindet sich der Heizraum.
Die Beheizung erfolgt mittels Ölheizung, der Tank fasst 700 Liter.

Erhaltungszustand & technische Details

- Fenster wurden in den 1990er Jahren erneuert

- Stromleitungen wurden zwischen 2010 und 2015 modernisiert

- Laufende Instandhaltungen durch die Mieter

Das Haus ist derzeit befristet bis 31.05.2029 vermietet.
Die aktuelle Nettomiete beträgt € 782,- pro Monat – eine attraktive Einnahme für Anleger.

Grundstück & Bebauungsmöglichkeiten – seltenes Potenzial

Das Grundstück bietet aufgrund seiner Größe und Widmung eine hervorragende Bebaubarkeit:

- Widmung: Bauland–Wohngebiet

- Verbaubarkeit: 40 %

- Bauweise: offen oder gekuppelt

- Bauklasse: I, II

- Keine Beschränkung der Wohneinheiten

Damit eignet sich die Liegenschaft sowohl für die Errichtung eines großzügigen Einfamilienhauses, mehrerer Wohneinheiten oder ein Entwicklungsprojekt im kleinen Stil.

Infrastruktur & Verkehrsanbindung:

Orth an der Donau bietet eine ausgezeichnete Infrastruktur mit Einkaufsmöglichkeiten, Gesundheitsversorgung, Bildungseinrichtungen, Sporteinrichtungen und Gastronomie.

Die nahe gelegenen Donauauen bieten Ruhe und Entspannung in intakter Natur. Viele gepflegte Wege laden zum Wandern und Radfahren ein.

Orth an der Donau ist verkehrstechnisch gut an Wien angebunden.In 15 Minuten erreicht man mit dem Auto die Wiener Stadtgrenze. Zudem verkehren mehrere öffentliche Buslinien zwischen Orth an der Donau und Wien, die eine schnelle und bequeme Anbindung an die Hauptstadt ermöglichen. Eine weitere Option ist die Bahnverbindung, die von den umliegenden Gemeinden nach Wien führt und regelmäßig verkehrt.

Somit ist Orth an der Donau ein idealer Wohnort für Pendler, die in Wien arbeiten oder die Stadt für Freizeitaktivitäten besuchen möchten.

Bitte beachten Sie, dass wir aufgrund der Nachweispflicht gegenüber dem Eigentümer nur Anfragen mit vollständiger Angabe der Anschrift und Angaben zur Person (Name, Adresse, Telefonnummer, E-Mail) bearbeiten können.

Auf unsere Doppelmaklertätigkeit wird ausdrücklich hingewiesen.

Alle Angaben beruhen auf Informationen der Eigentümer/Dritter und sind daher ohne Gewähr.
Angaben gemäß gesetzlichem Erfordernis:
Heizwärmebedarf: 464.0 kWh/(m²a)
Klasse Heizwärmebedarf: G
Faktor Gesamtenergieeffizienz: 6.06
Klasse Faktor Gesamtenergieeffizienz: G
Beschreibung weiterlesen

Energieeffizienz

HWB Klasse:
G
fGEE:
6,06
fGEE Klasse:
G
Energieausweisart:
Energiebedarfs-ausweis

Lageplan

2304 Orth an der Donau | Gänserndorf

Lade...
Julian Hofbauer

Julian Hofbauer

RE/MAX Aktiv in Groß - Enzersdorf

Anrufen
Lade...

Fotomix

Drohnenfoto Drohnenfoto_2 Gartenansicht Küche Küche_2 Bad WC Wohnzimmer Schlafzimmer Erdgeschoss Schlafzimmer Erdgeschoss_2 Schlafzimmer Obergeschoss Keller Garten Garten Garten Carport Plan Erdgeschoss Plan Obergeschoss Plan Keller Pläne gesamt