NEU - 1,5-Zimmer Wohnung mit Gartenterrasse in generalsaniertem Neubau mit 11m2 Terrasse und einer tollen Raumhöhe!

Wohnung zur Miete in 2460 Bruck an der Leitha - Gesamtmiete: 849,73 € / Objektnummer: 1763927
Ausstattung: Fahrstuhl Fußbodenheizung Terrasse Garten

Preisinformationen

Gesamtmiete:
849,73 € / Monat
Betriebskosten netto:
149,48 € / Monat
Umsatzsteuer:
77,25 €
Kaution:
3.000,00 €
Provision:
Gemäß Erstauftraggeberprinzip bezahlt der Abgeber die Provision.

Fakten

Objektnummer:
1763927
Objekttyp:
Wohnung
Terrasse:
1
Keller Fläche:
3 m²
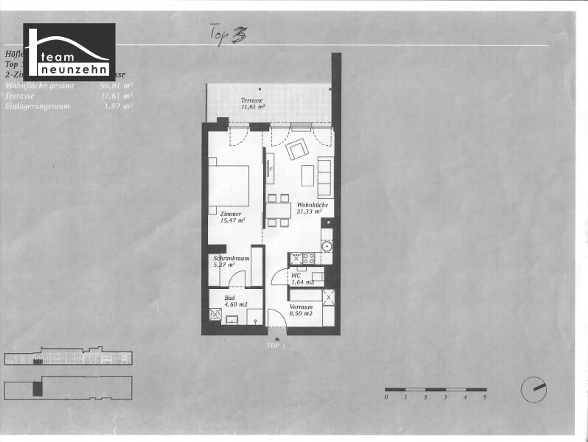
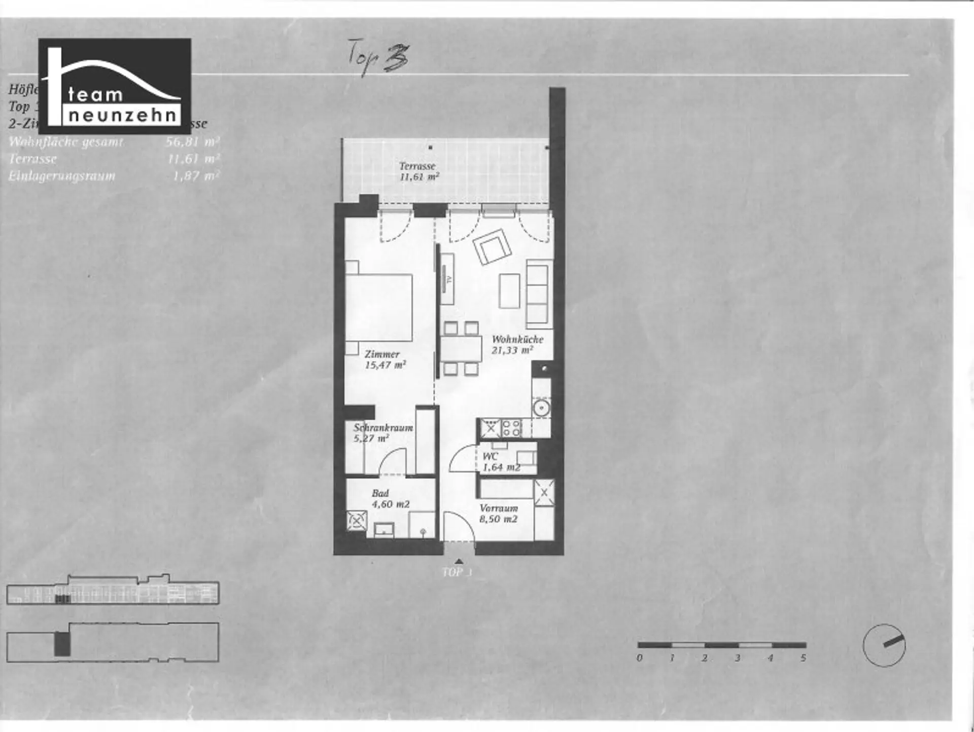
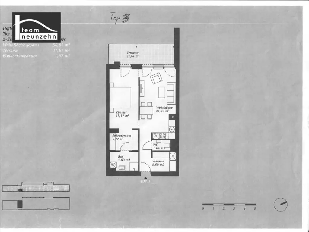
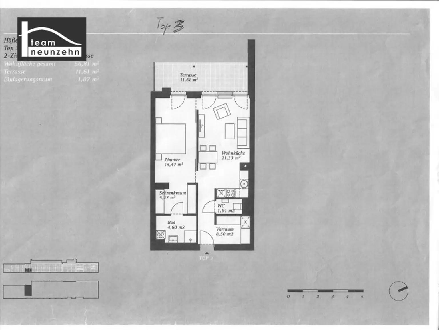
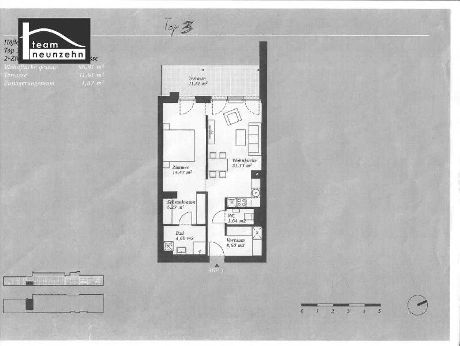
Wohnfläche:
57 m²
Nutzfläche:
57 m²
Gesamtfläche:
58 m²
Gartenfläche:
22 m²
Zimmer:
1,5
Badezimmer:
1
Toilette:
1
Letzte Sanierung:
2019
Zustand:
Neuwertig
Verfügbarkeit:
Verfügbar

Beschreibung

Willkommen in Ihrem neuen Zuhause in Bruck an der Leitha, Niederösterreich! Diese wunderschöne Wohnung im Erdgeschoß bietet Ihnen alles, was Sie für ein komfortables und entspanntes Leben benötigen. Mit einer Fläche von ca. 57m², einer Terrasse von ca. 11m² und einem Gartenanteil von ca. 22m² und 2 Zimmern ist sie ideal für Singles, Paare oder kleine Familien.

Die Wohnung ist in einem neuwertigen Zustand und besticht durch eine moderne und hochwertige Ausstattung und Ihren großen Fensterflächen. Der offene Grundriss sorgt für ein helles und großzügiges Wohngefühl. Der Wohnbereich ist mit einem stilvollen Parkettboden ausgestattet. Von hier aus gelangen Sie auch auf den Balkon, der sich ideal für sonnige Tage und laue Sommerabende eignet.

Die Küche ist voll ausgestattet und verfügt über alle notwendigen Geräte.

Das Schlafzimmer ist ein gemütlicher Rückzugsort und bietet genügend Platz.

Das Badezimmer ist modern gestaltet und verfügt über eine Dusche und ein Waschbecken. Das WC ist extra.

Die Lage der Wohnung ist ideal für alle, die eine ruhige und dennoch gut angebundene Wohngegend suchen. Mit dem Bus erreichen Sie bequem und schnell die umliegenden Städte und Gemeinden. Für den täglichen Bedarf finden Sie in unmittelbarer Nähe einen Arzt, eine Apotheke, eine Klinik, eine Schule, einen Kindergarten, einen Supermarkt und eine Bäckerei.

 

In dieser Miete sind bereits die Betriebskosten enthalten, lediglich die Strom- und Heizkosten müssen zusätzlich gezahlt werden. Für Ihr Auto stehen Ihnen Parkplätze auf der Straße zur Verfügung.

Nutzen Sie die Chance auf ein modernes und komfortables Wohnen in einer der schönsten Gegenden Niederösterreichs. Vereinbaren Sie noch heute einen Besichtigungstermin und überzeugen Sie sich selbst von den Vorzügen dieser Wohnung. Wir freuen uns auf Ihren Anruf!

 

Wir wurden exklusiv mit der Verwertung beauftragt und für Fragen bzw. Besichtigungen vor Ort steht Ihnen Herr Mag. Philipp Sedlar, MBA sehr gerne unter 0676 8522 43510 oder unter philipp.sedlar@teamneunzehn.at zur Verfügung.

Wir weisen darauf hin, dass zwischen dem Vermittler und dem zu vermittelnden Dritten ein familiäres oder wirtschaftliches Naheverhältnis besteht.

Der Immobilienmakler erklärt, dass er – entgegen dem in der Immobilienwirtschaft üblichen Geschäftsgebrauch des Doppelmaklers – einseitig nur für den Vermieter tätig ist.

"Leben braucht Raum" * T19-RE Real Estate GmbH & Co KG * www.teamneunzehn.at [https://www.teamneunzehn.at]

Doppelmakler

Wir werden als Immobilienmakler kraft bestehenden Geschäftsgebrauchs als Doppelmakler tätig und haben sohin beide Seiten des Vertrages (Verkäufer-Käufer, Vermieter-Mieter) zu unterstützen.

Wirtschaftliches Naheverhältnis

Es wird bekannt gegeben, dass folgendes wirtschaftliches Naheverhältnis zwischen der teamneunzehn-Gruppe und dem Verkäufer/der vermietenden Partei besteht: ständige und dauerhafte Beauftragung mit der Vermittlung des bestehenden Immobilienportfolios

Haftungserklärung zum Inserat

Irrtum und Änderungen vorbehalten! Sofern es sich bei Bildern um Visualisierungen handelt, können Abänderungen zur tatsächlichen Ausführung resultieren. Wir weisen ausdrücklich darauf hin, dass das auf Fotos oder Visualisierungen ersichtliche Mobiliar bzw. Inventar nicht Bestandteil des inserierten Preises ist.

 

 

Infrastruktur / Entfernungen

Gesundheit
Arzt <250m
Apotheke <950m
Klinik <650m

Kinder & Schulen
Schule <150m
Kindergarten <300m

Nahversorgung
Supermarkt <450m
Bäckerei <500m
Einkaufszentrum <1.850m

Sonstige
Bank <750m
Geldautomat <750m
Polizei <450m
Post <1.200m

Verkehr
Bus <200m
Autobahnanschluss <1.950m
Bahnhof <1.475m

Angaben Entfernung Luftlinie / Quelle: OpenStreetMap
Beschreibung weiterlesen

Lage und Verkehrsanbindung

Die Wohnung befindet sich in der Nähe der Höfleiner Straße in der Stadt Bruck an der Leitha in Niederösterreich. Sie liegt in einer ruhigen Wohngegend und ist nach Westen ausgerichtet, was viel Sonnenlicht und eine schöne Aussicht bietet. In unmittelbarer Nähe befinden sich ein Billa Supermarkt und ein Kindergarten, die bequem zu Fuß erreichbar sind.

Für den täglichen Bedarf gibt es auch eine Vielzahl an Einrichtungen in der Nähe, wie zum Beispiel einen Arzt, eine Apotheke

Billa, Kindergarten

Energieeffizienz

HWB:
78 kWh/(m²*a)
HWB Klasse:
C
fGEE:
1,5
fGEE Klasse:
C
Energieausweisart:
Energiebedarfs-ausweis

Grundriss

Lageplan

2460 Bruck an der Leitha | Bruck an der Leitha

Lade...
Philipp Sedlar, MBA

Philipp Sedlar, MBA
Leitung Privatverkauf

teamneunzehn.at mein Immobilienberater GmbH

Lade...

Fotomix

Bild 1 Bild 2 Bild 3 Bild 4 Bild 5 Bild 6 Bild 7 Bild 8 Bild 9 Bild 10 Bild 11 Bild 12 Bild 13 Bild 14 Bild 15 Bild 16