NEU - 1.788 m² BAUGRUND FÜR PRIVAT ODER BAUTRÄGER IN OBERWART!

Grundstück zum Kauf in 7400 Oberwart - Kaufpreis: 180.000 € / Objektnummer: 4832/1517
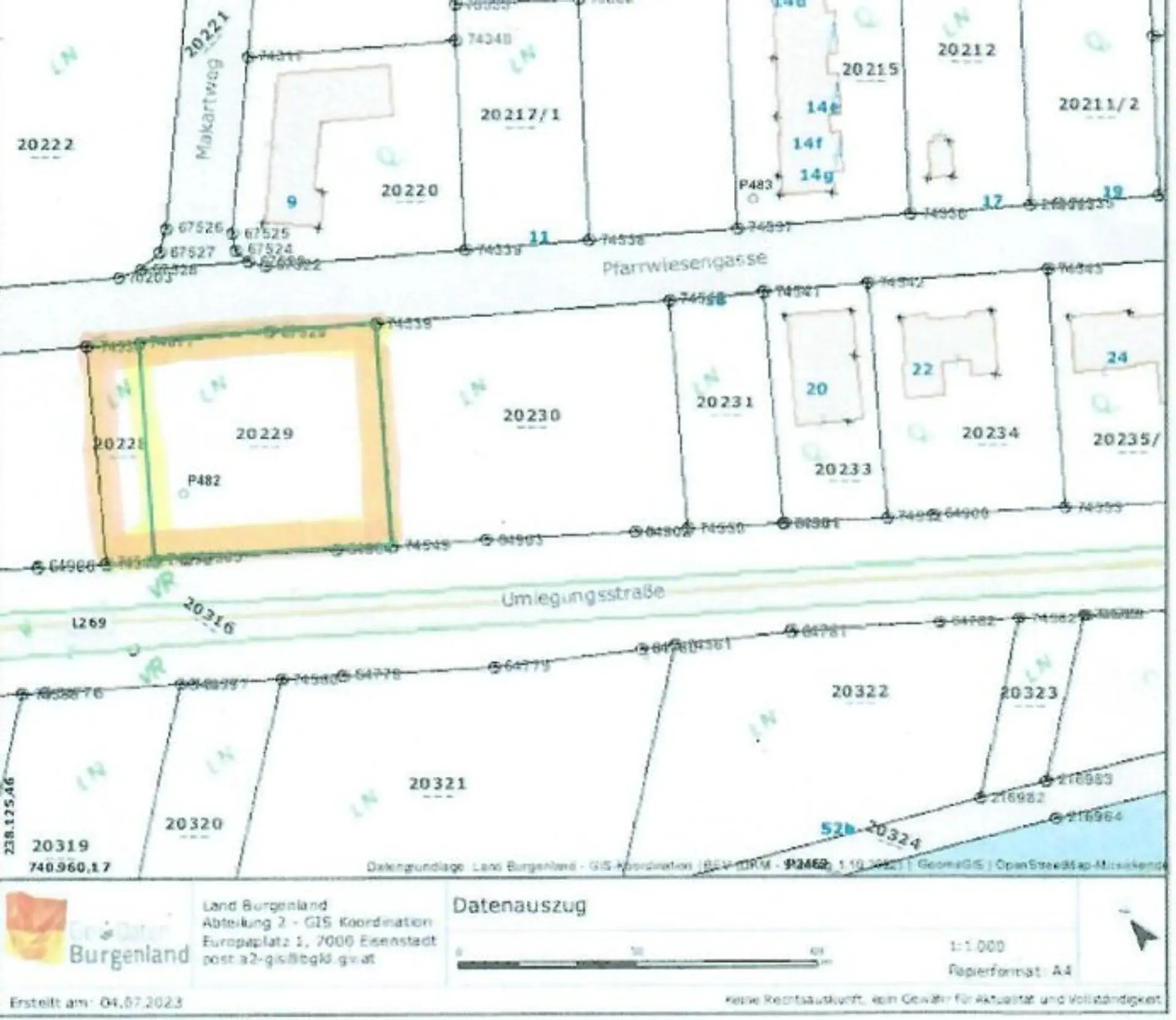
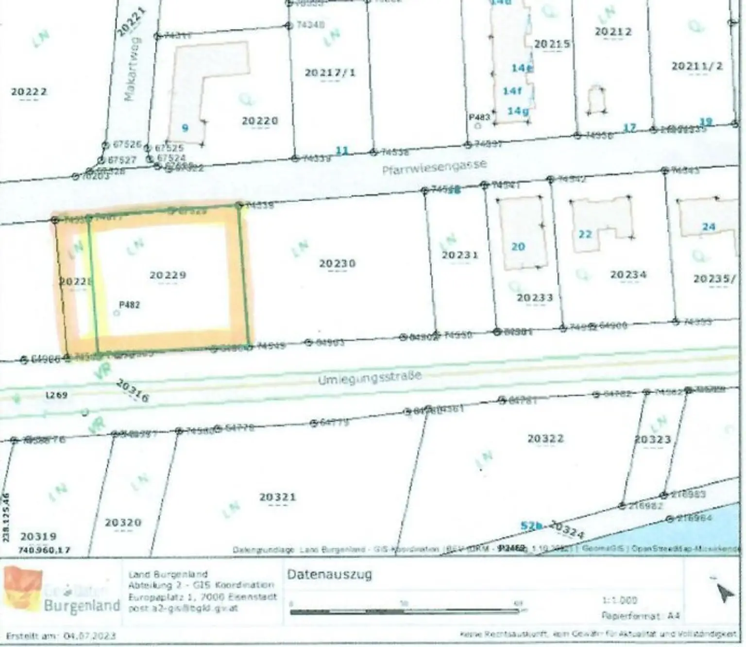
SATELLITEN-BILD
LAGE-PLAN
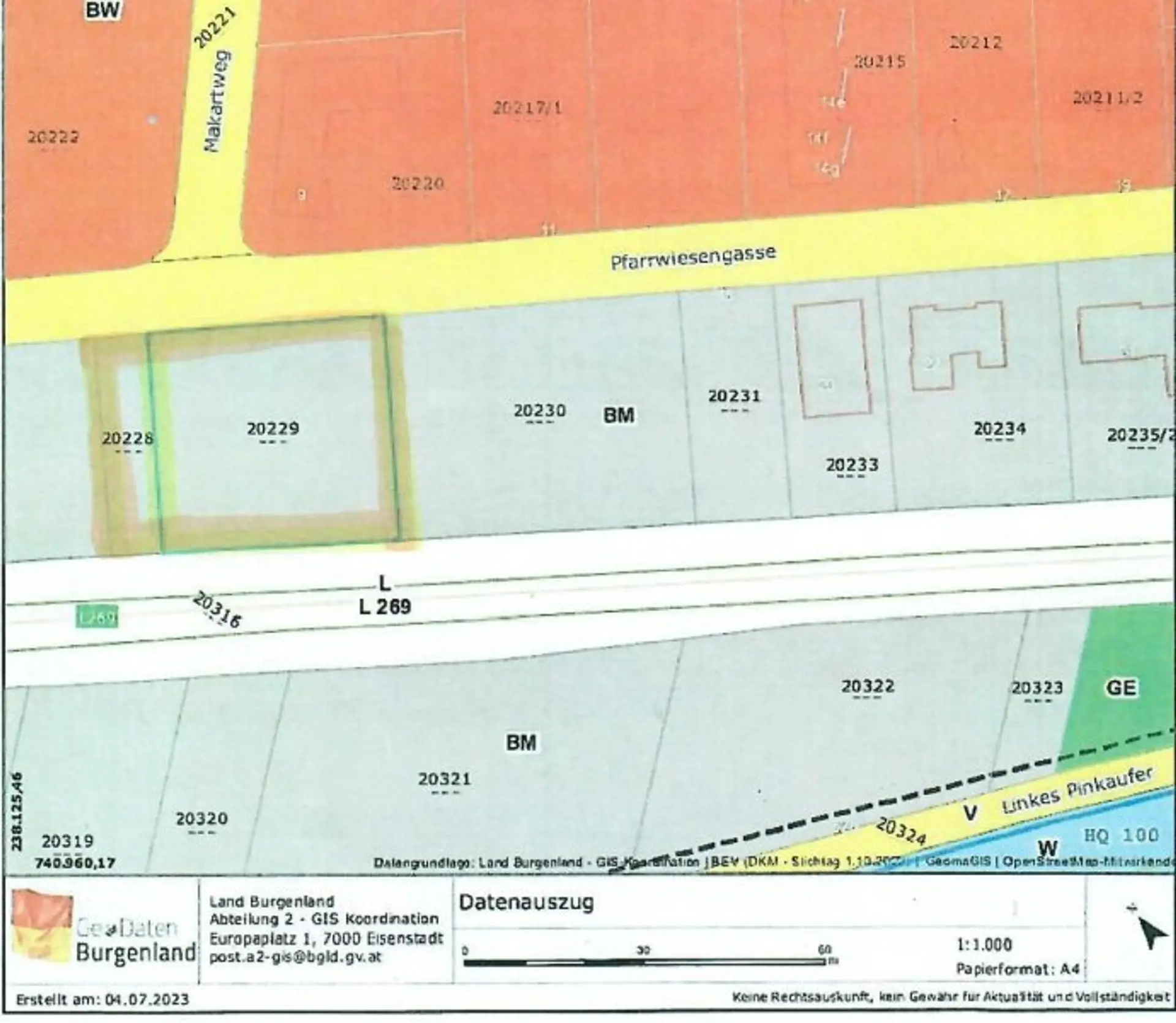
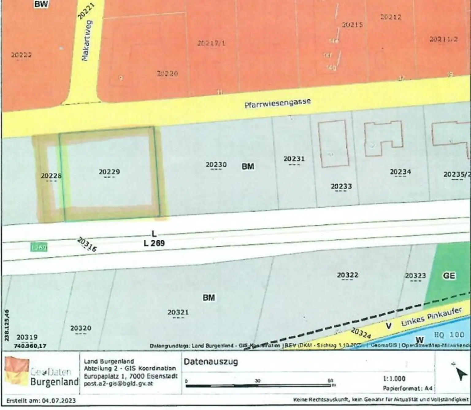
WIDMUNG

Preisinformationen

Kaufpreis:
180.000 €
Vermittlungsprovision:
Ja
Provision:
6.480,00 € inkl. 20% USt.

Fakten

Objektnummer:
4832/1517
Objekttyp:
Grundstück
Grundstücksfläche:
1.788 m²
Verfügbarkeit:
Verfügbar

Beschreibung

Dieses interessante Baugrundstück mit 1.788 m² Fläche liegt in einer ruhigen Seitengasse inmitten der Stadtgemeinde Oberwart.

Es eignet sich für die Errichtung eines Einfamilienhauses, zum Parzellieren auf 2-3 Bauplätze, oder als Bauträgerprojekt. 

Das Grundstück ist leer und BEREITS AUFGESCHLOSSEN!
 

Widmung: BM Bauland - gemischtes Baugebiet E+1 (einstöckiges Gebäude)
Verbauung: 50 % -> 894 m² verbaubar!
 

Durch die gute und ruhige Lage, sowie die großzügige Bebaubarkeit und Seltenheit solcher Grundstücke bietet sich diese Liegenschaft ideal für Familien mit Hausbauplänen bzw. für Bauträger zur Projekt-Entwicklung!

Bei Interesse freuen wir uns auf Ihre Anfrage!

Der Vermittler ist als Doppelmakler tätig.
Beschreibung weiterlesen

Grundrisse

Lageplan

7400 Oberwart | Oberwart

Lade...
Robert W. Pabisch

Robert W. Pabisch
Geschäftsführer

S+R KERN Immobilien GmbH

Anrufen
Lade...