NEU - 1.895 m² GEWERBE-GRUND IN OBERWART!

Grundstück zum Kauf in 7400 Oberwart - Kaufpreis: 95.000 € / Objektnummer: 4832/1520
SATELLITEN-BILD
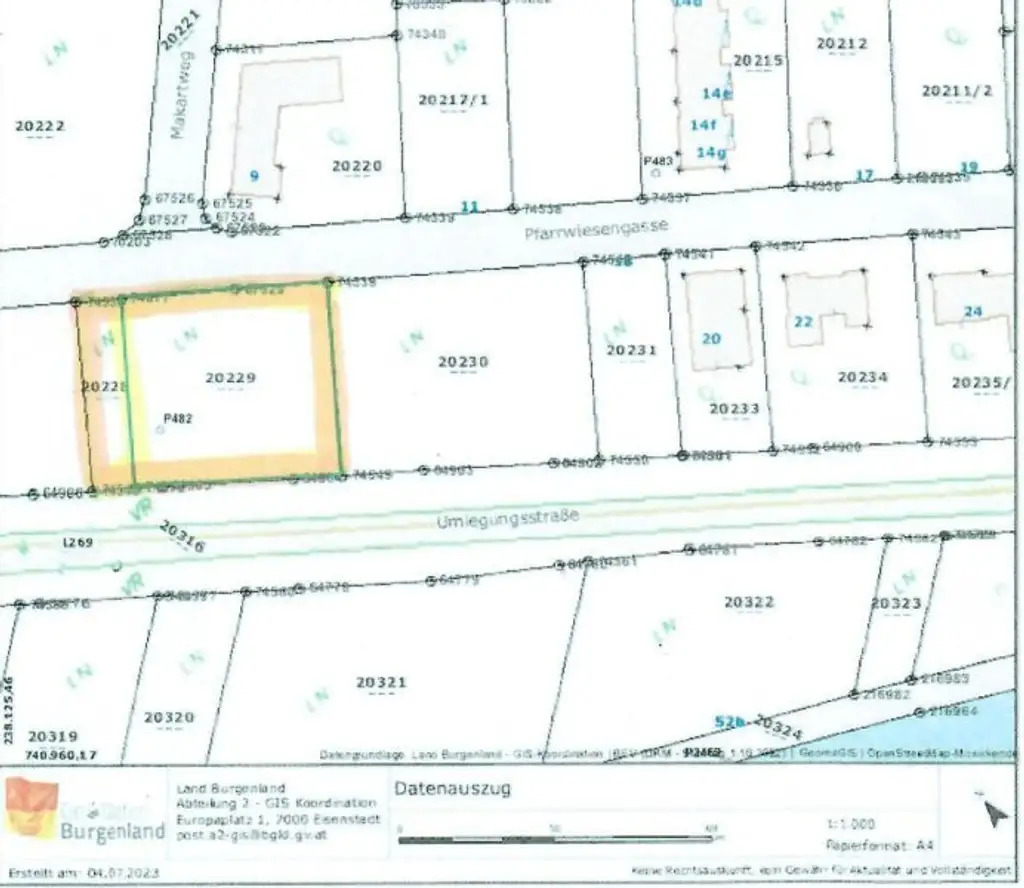
LAGE-PLAN
WIDMUNG
LAGE-BILD

Preisinformationen

Kaufpreis:
95.000 €
Vermittlungsprovision:
Ja
Provision:
3.420,00 € inkl. 20% USt.

Fakten

Objektnummer:
4832/1520
Objekttyp:
Grundstück
Grundstücksfläche:
1.895 m²
Verfügbarkeit:
Verfügbar

Beschreibung

Dieses interessante Gewerbe-Grundstück mit 1.895 m² Fläche liegt an der Kreuzung von Oberwarter Straße und Ackergasse inmitten der Stadtgemeinde Oberwart, gleich neben dem Kreisverkehr.

Es eignet sich als Lager-und Abstell-Platz bzw. für die Errichtung von Lager-Hallen.

Das Grundstück ist leer und noch nicht aufgeschlossen.
 

Widmung: AB Aufschließungsgebiet - Betriebsgebiet 
Verbauung: 60 % -> 948 m² verbaubar!
 

Durch die gute und frequentierte Lage, sowie die großzügige Bebaubarkeit und Seltenheit solcher Grundstücke bietet sich diese Liegenschaft ideal an!

Bei Interesse freuen wir uns auf Ihre Anfrage!

Der Vermittler ist als Doppelmakler tätig.
Beschreibung weiterlesen

Grundrisse

Robert W. Pabisch

Robert W. Pabisch
Geschäftsführer

S+R KERN Immobilien GmbH

Lade...

Lageplan