1-Raum-Wohnung mit Loggia, Lift & Parkplatz - Weißdornweg, 4030 Linz - ACHTUNG Mietvertrag wird auf 10 Jahre befristet abgeschlossen!

Wohnung zur Miete in 4030 Linz
Ausstattung: Außenparkplatz Balkon

Preisinformationen

Vermittlungsprovision:
Ja

Fakten

Objekttyp:
Wohnung
Balkon:
1
Nutzfläche:
44 m²
Zimmer:
1
Neubau:
Ja
Verfügbarkeit:
Verfügbar

Beschreibung

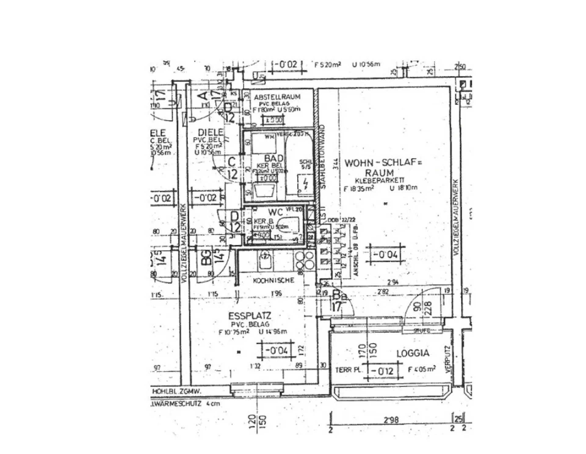
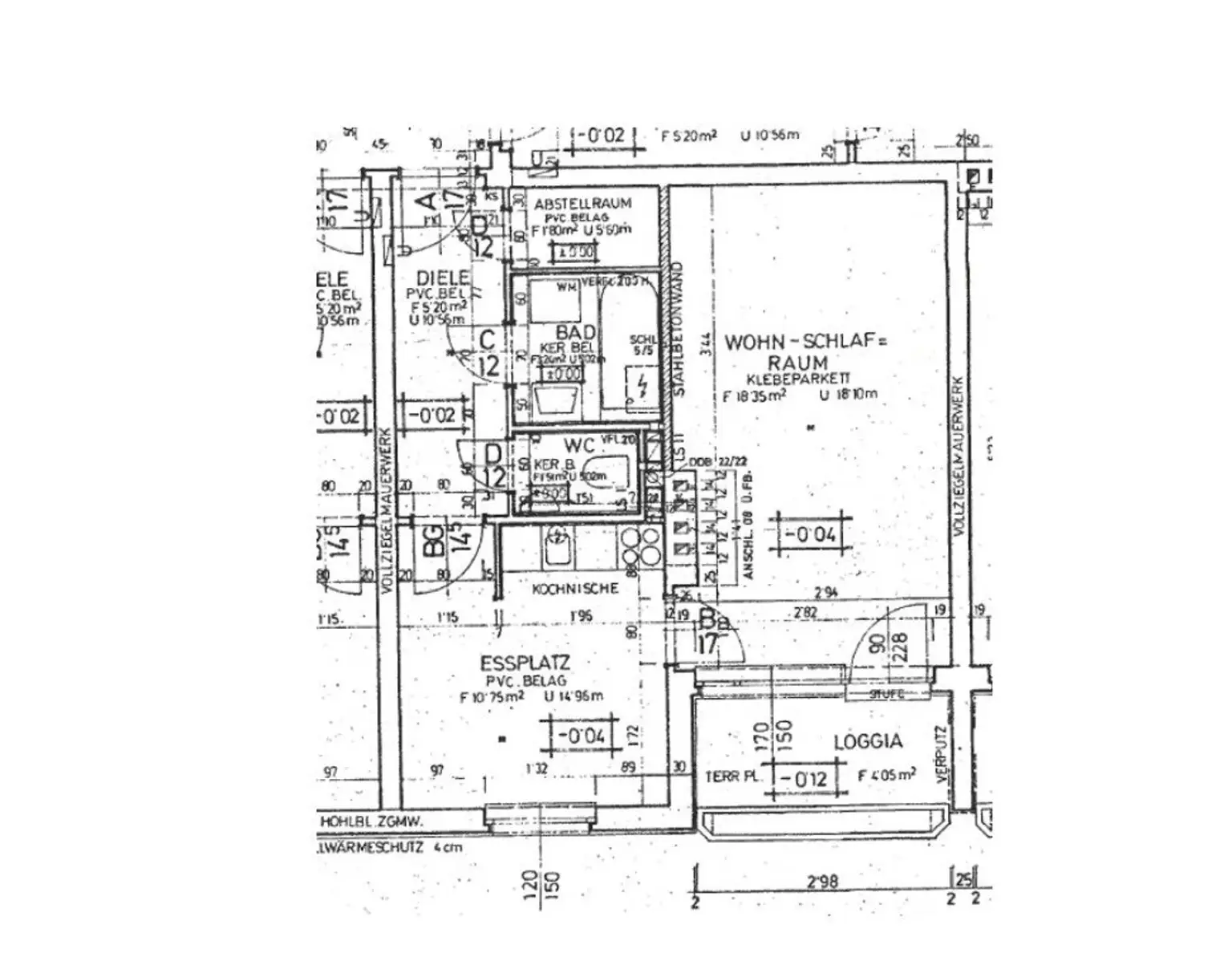
Linz / Wegscheid / Weißdornweg : Diese helle und gut geschnittene 1-Zimmer-Wohnung im 3. Stock  überzeugt durch ihre praktische Raumaufteilung , die ruhige Lage und eine großzügige Loggia mit Blick ins Grüne.…

WAG Wohnungsanlagen Gesellschaft m.b.H.

Lade...

Fotomix

Bild 1 Bild 2 Bild 3 Bild 4