NEU - 1- Zimmer Wohnung mit Terrasse | Kalvarienbergstraße 134 Top 10

Wohnung zur Miete in 8020 Graz - Gesamtmiete: 569,60 € / Objektnummer: 132849
Ausstattung: Boden Bad Zentralheizung Terrasse
20251126_093014
20251126_093006
20251126_093023
20251126_092958
20251126_092938
Raumplan_010_ (1)

Preisinformationen

Gesamtmiete:
569,60 € / Monat
Nettomiete:
372,81 € / Monat
Betriebskosten netto:
81,99 € / Monat
Heizkosten netto:
57,77 €
Umsatzsteuer:
57,03 €
Kaution:
3 Bruttomonatsmieten
Provision:
Gemäß Erstauftraggeberprinzip bezahlt der Abgeber die Provision.

Fakten

Objektnummer:
132849
Objekttyp:
Wohnung
Terrasse:
1
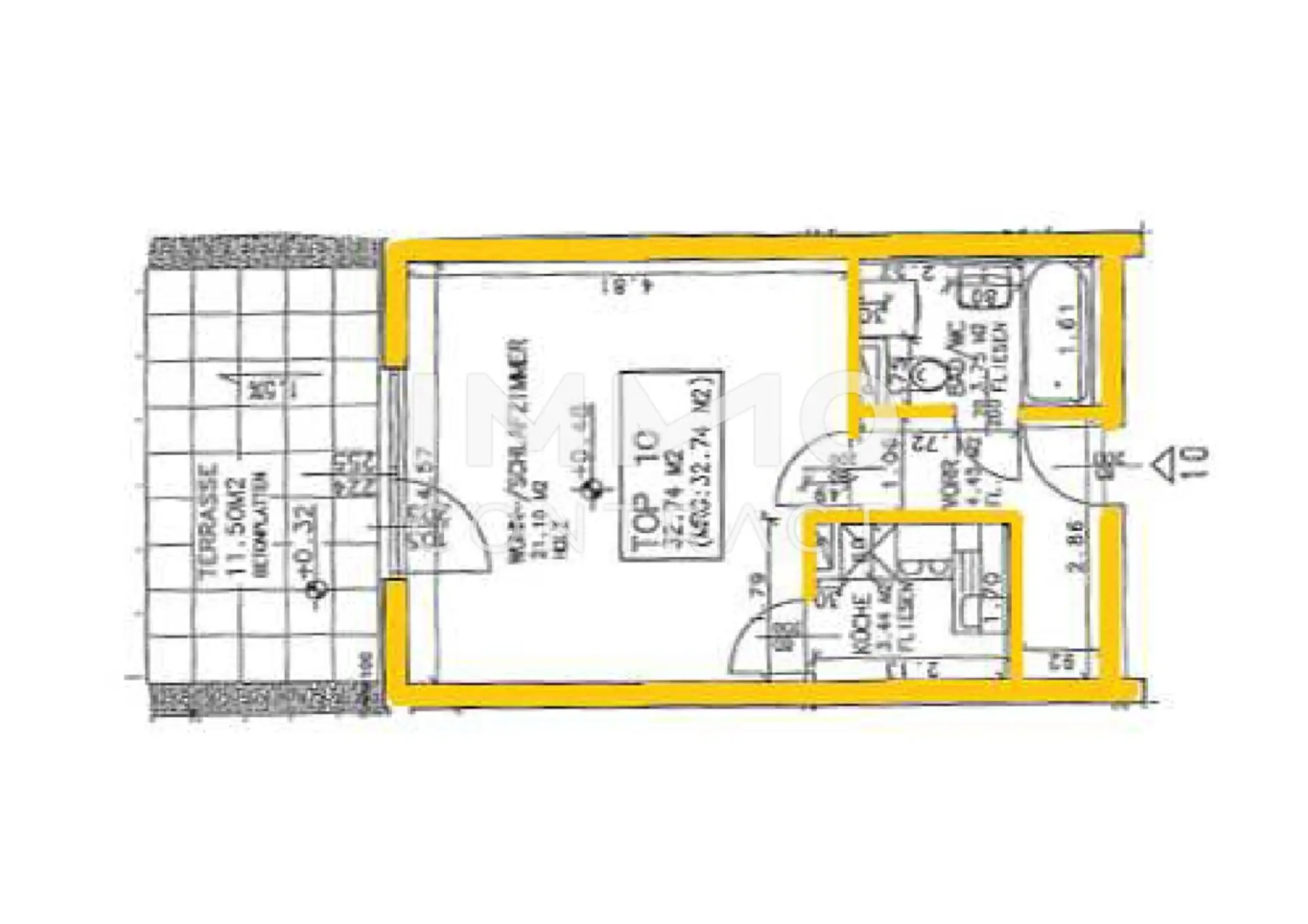
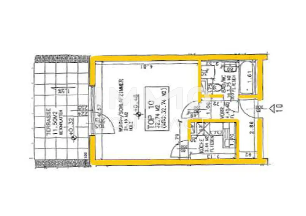
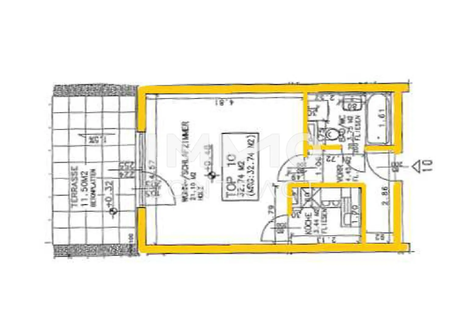
Wohnfläche:
32,7 m²
Zimmer:
1
Badezimmer:
1
Zustand:
Gepflegt
Verfügbarkeit:
Verfügbar

Beschreibung

Zur Vermietung steht eine gepflegte Garten-Wohnung in Graz, im 04. Bezirk Lend. Die Immobilie befindet sich in einer ruhigen Wohngegend und verfügt über eine Wohnfläche von ca. 32,7m². Sie umfasst ein Zimmer, sowie, Küche, Flur, Badezimmer mit Wanne und Garten. Der Boden ist mit Parkett ausgelegt und die Küche ist möbliert. Zusätzlich verfügt die Wohnung über eine Terrasse die zum Entspannen und Genießen der Sonne einlädt. Die Immobilie ist ideal für Singles oder Paare, die auf der Suche nach einer gemütlichen Wohnung in Graz sind.
Ideal ist die direkte Anbindung an den Murradweg und die verkehrsberuhigte Lage direkt am Kalvarienberg.
Beschreibung weiterlesen

Lage und Verkehrsanbindung

Kalvarienberg
Murrradweg

Graz

Energieeffizienz

HWB:
69,5 kWh/(m²*a)
HWB Klasse:
C
fGEE:
1,37
fGEE Klasse:
C
Gebäudeart:
listing.status.epcBuildingType_wohn
Energieausweisart:
Energiebedarfs-ausweis

Grundriss

Lageplan

8020 Graz | Graz (Stadt)

Lade...
Richard Böhm

Richard Böhm
Immobilienfachberater

IMMOcontract Immobilien Vermittlung GmbH

Anrufen
Lade...

Fotomix

20251126_093014 20251126_093006 20251126_093023 20251126_092958 20251126_092938