NEU - 1220, Arminenstraße, Nur 200 m zur unteren Alten Donau, 3-Zimmer-Eigentums-Maisonette

Wohnung zum Kauf in 1220 Wien - Kaufpreis: 1.199.900 € / Objektnummer: TNR002957
Ausstattung: Fahrstuhl Terrasse Garten
Symbolbild
Symbolbild
Rundum Sorglos
Lageplan
Garage
Erdgeschoss
Untergeschoss

Preisinformationen

Kaufpreis:
1.199.900 €
Provision:
provisionsfrei

Fakten

Objektnummer:
TNR002957
Objekttyp:
Wohnung
Terrasse:
3
Terrassenfläche:
62,57 m²
Wohnfläche:
99,02 m²
Gartenfläche:
178,37 m²
Zimmer:
3
Badezimmer:
3
Toilette:
3
Neubau:
Ja
Zustand:
Erstbezug
Verfügbarkeit:
Verfügbar

Beschreibung


JETZT AM WOCHENENDE: Glorit Hausmesse - Arminenstraße 21, 1220 Wien
 
Wir laden Sie herzlich zu unserer 1. Glorit Hausmesse am 14. & 15. März jeweils von 10 bis 18 Uhr in die Arminenstraße 21 ein. Wenn Sie möchten, nehmen wir Sie auch gerne mit auf einen Rundgang durch die direkte Nachbarschaft und präsentieren Ihnen weitere Projekte in der unmittelbaren Nähe (Kaufpreis Wohnungen ab EUR 599.900,- und Häuser ab EUR 724.900,-). Inkl. kostenloser Rechts- und Finanzierungsberatung
 


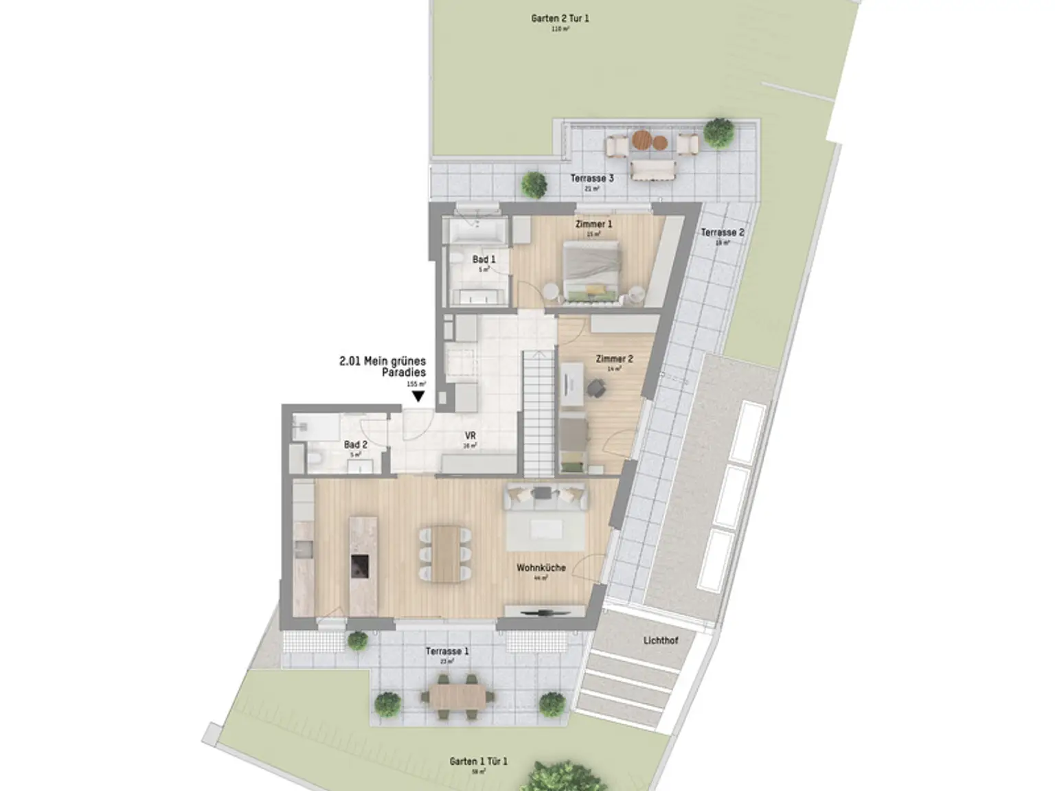
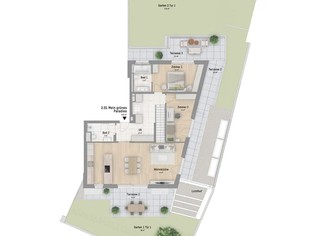
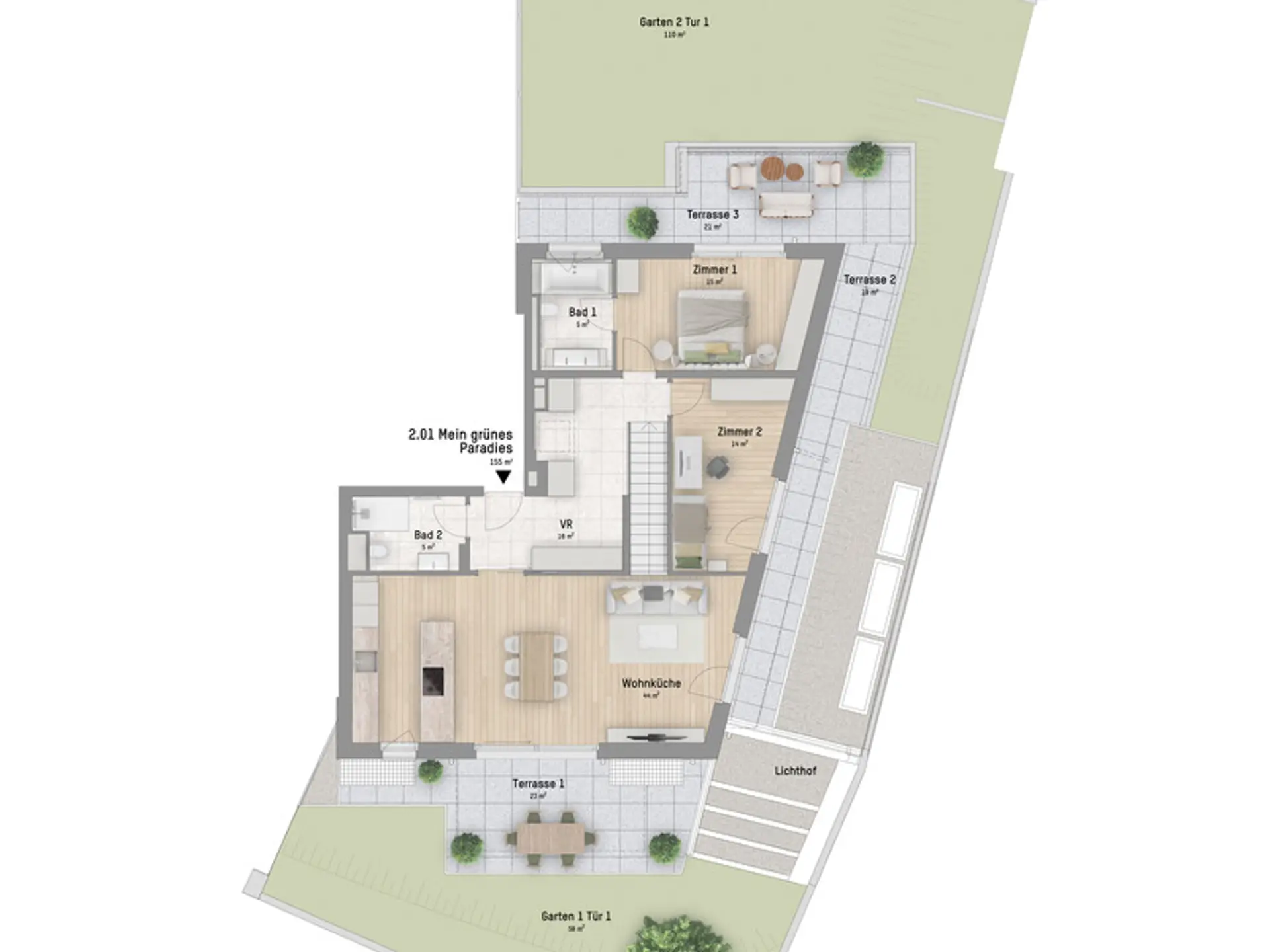
1220 Wien | Arminenstraße 4A-8 | TOP 2.01
"Mein grünes Paradies"

Wohnen am Wasser: Nur wenige Schritte - nicht einmal 200 Meter - trennen Sie von Ihrem zukünftigen Zuhause und der idyllischen Uferpromenade an der unteren Alten Donau. Hier, in der Arminenstraße 4A-8 im 22. Bezirk, entstehen 13 exklusive Eigentumswohnungen mit Wohnflächen von [WNF], die sich auf [Zi] Zimmer aufteilen. Neben der ausgezeichneten Lage beim Wasser freuen Sie sich über die hochwertige Markenausstattung und großzügigen Terrassen bzw. Eigengärten in den Erdgeschosseinheiten. Besonders nachhaltig: die Photovoltaikanlage am Dach, die den Strom für die Allgemeinbereiche liefert. Geheizt wird mittels effizienter Wärmepumpe und an heißen Tagen sorgt die moderne Deckenkühlung für ein angenehmes Raumklima und einen kühlen Kopf. Ein eigenes Kellerabteil gehört ebenso zur Ausstattung und Ihr Auto können Sie in der hauseigenen Garage dank extra breiter Stellplätze bequem und sicher parken. Sie sehen: Bei unseren Wohnungen stimmt einfach alles – von der Planung bis zur schlüsselfertigen Übergabe. Denn unsere exklusiven Neubauprojekte in Wien bieten Ihnen nicht nur höchste Wohnqualität, sondern auch ein Eigenheim, das Freude macht – jeden Tag.


Willkommen im 1. Haus am Platz. Alle Highlights:

- 3-Zimmer-Eigentums-Maisonette
- Nur 200 m zur unteren Alten Donau
- Auf Baurechtsgrund
- Hebe-/Schiebetür vom Wohnbereich zur Terrasse und in den großzügigen Garten
- 2 Badezimmer, eines davon en suite – jeweils mit WC
- Zusätzliches Badezimmer im Kellergeschoss mit Dusche, WC und Waschmaschinenanschluss
- 2 Hobbyräume/Home-Office im Keller mit Lichthof mit direktem Zugang von Garage und Wohnung
- Hochwertige Markenausstattung (Echtholzparkett, Feinsteinzeug-Fliesen, Holz-Alu-Fenster mit 3-fach Isolierverglasung, uvm.)
- Effizientes Heiz- und Kühlsystem mit Wärmepumpe
- Einzeln regulierbare Fußbodenheizung in allen Zimmern inkl. Badezimmer
- Regulierbare Deckenkühlung in allen Zimmern
- Photovoltaik-Anlage am Dach zur teilweisen Energiegewinnung für Allgemeinbereiche
- Provisionsfrei - direkt vom Bauträger
- Kaufpreis schlüsselfertig: 1.199.900 EUR


Beste Lage. Beste Aussichten.

- Bei der unteren Alten Donau
- In 4 Fahrradminuten bei der U1-Station Kagran
- In idyllischer Grünruhelage
- Unzählige Freizeitmöglichkeiten direkt vor der Haustüre
- SMZ Ost - Donauspital ist schnell und leicht erreichbar


Exklusivität inklusive.

An dieser Stelle könnten wir jetzt lange ausholen. Ihnen zum Beispiel erzählen, dass wir im Gegensatz zu vielen anderen Bauträgern keine Projektgesellschaften gründen und damit unseren Kund:innen im Falle eines Falles maximale Sicherheit bei bester Bonität garantieren. Oder dass wir bei der Bauqualität mit unseren eigenen Teams und unseren regionalen Partnern keine Kompromisse machen. Oder dass unsere Eigentumswohnungen ausschließlich mit Top-Marken ausgestattet werden und wir auch in Sachen Kundenberatung das 1. Haus am Platz sind. Oder, oder, oder.

Apropos Beratung. Wenn wir Sie neugierig gemacht haben, freuen wir uns auf Ihre Anfrage und melden uns umgehend bei Ihnen – an sieben Tagen in der Woche, auch am Abend. Großes Plus: Falls gewünscht, bieten wir zusätzlich eine kostenlose und individuelle Finanzierungsberatung durch unabhängige Expert:innen.

0810 / 311 900 österreichweit zum Ortstarif
Glorit Bausysteme GmbH | 2301 Groß-Enzersdorf | Gloritstraße 2

Änderungen vorbehalten.

Beschreibung weiterlesen

Energieeffizienz

Endenergiebedarf:
29 kWh/(m²*a)
Energieausweisart:
Energiebedarfs-ausweis
Gültig bis:
19.11.2033

Grundrisse

 Verkaufsteam

Verkaufsteam

GLORIT Bausysteme GmbH

Lade...

Fotomix

Symbolbild Symbolbild Rundum Sorglos Lageplan Garage