1230 Wien Neubau/Erstbezug | Top 17 | 2-Zimmer + Loggia | Anleger € 298.165 netto | Eigennutzer € 325.000

Wohnung zum Kauf in 1230 Wien - Kaufpreis: 298.165 € / Objektnummer: 2194
Ausstattung: Fahrstuhl Kabel/Satelliten-TV Zentralheizung Loggia
Zimmer mit Kochgel
Zimmer mit Kochgel
Zimmer mit Kochgel
Zimmer mit Kochgel
Bad + WC
Zimmer
Zimmer
Loggia
Vorraum
Stiegenhaus
Hofansicht
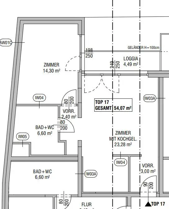
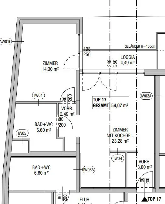
Grundriss Top 17

Preisinformationen

Kaufpreis:
298.165 €
Preisinfos:
Fixpreis
Provision:
3.00 %

Fakten

Objektnummer:
2194
Objekttyp:
Wohnung
Loggia:
1
Wohnfläche:
49,48 m²
Zimmer:
2
Badezimmer:
1
Toilette:
1
Stockwerk:
2
Baujahr:
2024
Neubau:
Ja
Zustand:
Erstbezug
Verfügbarkeit:
Verfügbar

Beschreibung

Top 17 – 2-Zimmer-Neubauwohnung im Erstbezug
Diese Wohnung bietet ca. 49,48 m² Wohnfläche plus Loggia (ca. 4,49 m²) und befindet sich im 2. Stock.

Ausstattung
• Fußbodenheizung mit integrierter Kühlfunktion
• Luft-Wärmepumpe mit unterstützender Photovoltaikanlage
• Lift
• Glasfaseranschluss
• Waschmaschinenanschluss in der Wohnung

Preise Top 17
• Anlegerpreis: € 298.165,- netto zzgl. 20 % USt (bei Vorsteuerabzug)
• Eigennutzerpreis: € 325.000,- brutto

 

Lage / Infrastruktur

*
Bus 62A: ca. 67 m, 1 Min. zu Fuß

*
Bus 60A: ca. 230 m

*
Bahnhof Liesing: ca. 4 Min. mit dem Bus

*
Bahnhof Atzgersdorf: ca. 2 Min. mit dem Bus

*
Wien Meidling: ca. 16 Min. öffentlich

*
Wien Hauptbahnhof: ca. 21 Min. öffentlich

Nahversorgung

*
Müller: ca. 120 m, 1 Min. zu Fuß

*
Lidl: ca. 130 m, 1 Min. zu Fuß

*
Konditorei: ca. 140 m, 2 Min. zu Fuß

*
Fitnessstudio: ca. 140 m, 2 Min. zu Fuß

Freizeit / Wohnqualität

*
Liesing-Flussweg: ca. 3 Min.

*
wunderschöne Spazier- und Laufmöglichkeit

*
Erholung im Grünen direkt in der Nähe

Gut für Anleger & Eigennutzer

*
sehr gute Öffi-Anbindung

*
starke Nahversorgung

*
gute Alltagstauglichkeit

*
hohe Wohn- und Lebensqualität

*
attraktive Vermietbarkeit

Wir weisen darauf hin, dass zwischen dem Vermittler und dem zu vermittelnden Dritten ein familiäres oder wirtschaftliches Naheverhältnis besteht.

Der Vermittler ist als Doppelmakler tätig.
Angaben gemäß gesetzlichem Erfordernis:
Heizwärmebedarf: 32.2 kWh/(m²a)
Klasse Heizwärmebedarf: B
Faktor Gesamtenergieeffizienz: 0.63
Klasse Faktor Gesamtenergieeffizienz: A+

Interesse am Maklerberuf?
Informationen beim MAKLERFRÜHSTÜCK
am Samstag, Termin nach Vereinbarung um 10.00 Uhr im RE/MAX Büro Schwechat.
Info: office@remax-vital.at oder 01/70 70 900.
Beschreibung weiterlesen

Energieeffizienz

HWB:
32,2 kWh/(m²*a)
HWB Klasse:
B
fGEE:
0,63
fGEE Klasse:
A+
Energieausweisart:
Energiebedarfs-ausweis

Lageplan

1230 Wien | Wien 23., Liesing

Lade...
Daniel KIS

Daniel KIS

RE/MAX Vital

Lade...

Fotomix

Zimmer mit Kochgel Zimmer mit Kochgel Zimmer mit Kochgel Zimmer mit Kochgel Bad + WC Zimmer Zimmer Loggia Vorraum Stiegenhaus Hofansicht Grundriss Top 17