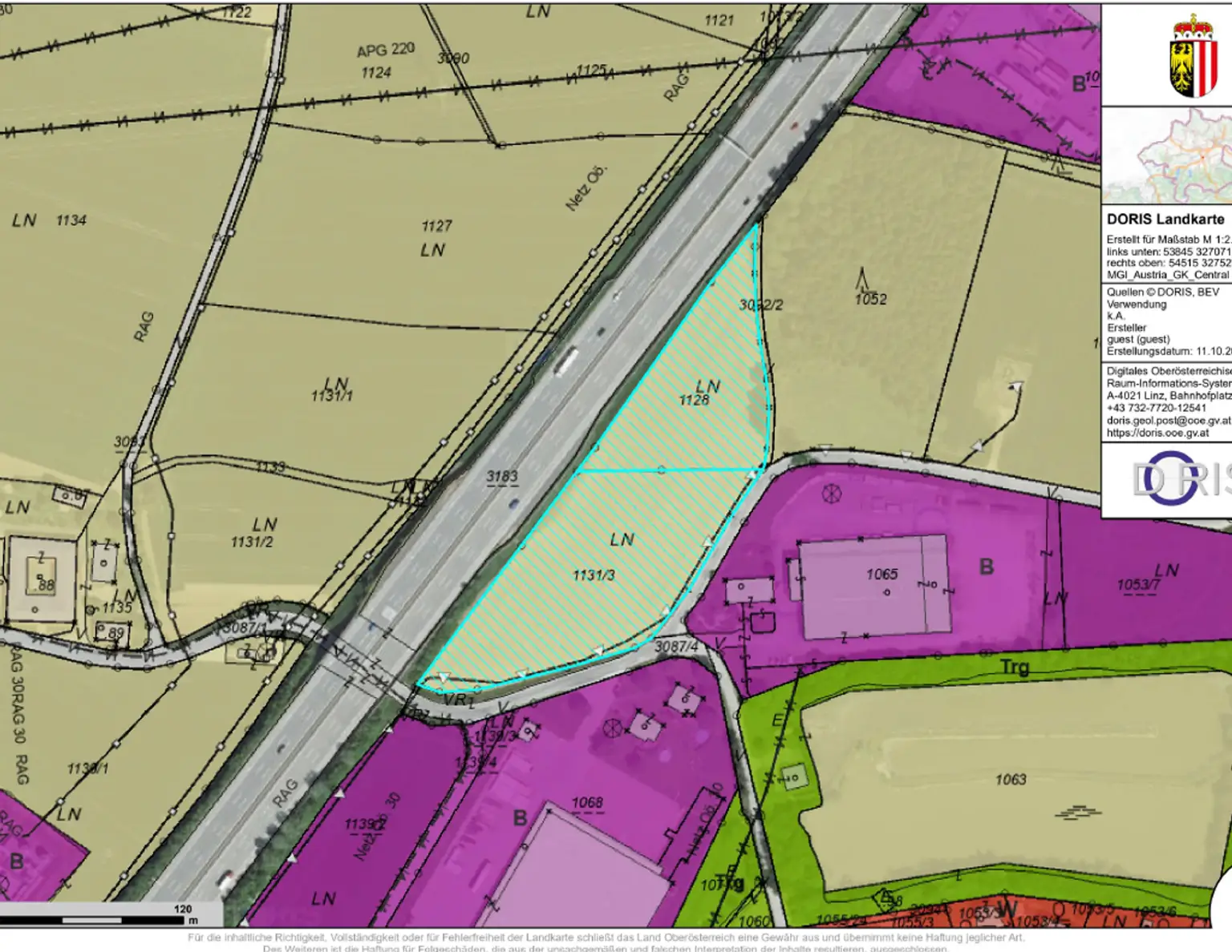
NEU - 15.500 m² in TOPLAGE auf Baurechtsbasis zu pachten I Autobahnauffahrt A1/ A9 1,5 km entfernt

Grundstück zur Miete in 4642 Sattledt - Gesamtmiete: 12.400,00 €
15.500 m² in TOPLAGE auf Baurechtsbasis zu pachten I Autobahnauffahrt A1/ A9 1,5 km entfernt
15.500 m² in TOPLAGE auf Baurechtsbasis zu pachten I Autobahnauffahrt A1/ A9 1,5 km entfernt
15.500 m² in TOPLAGE auf Baurechtsbasis zu pachten I Autobahnauffahrt A1/ A9 1,5 km entfernt
15.500 m² in TOPLAGE auf Baurechtsbasis zu pachten I Autobahnauffahrt A1/ A9 1,5 km entfernt
15.500 m² in TOPLAGE auf Baurechtsbasis zu pachten I Autobahnauffahrt A1/ A9 1,5 km entfernt
15.500 m² in TOPLAGE auf Baurechtsbasis zu pachten I Autobahnauffahrt A1/ A9 1,5 km entfernt
15.500 m² in TOPLAGE auf Baurechtsbasis zu pachten I Autobahnauffahrt A1/ A9 1,5 km entfernt
15.500 m² in TOPLAGE auf Baurechtsbasis zu pachten I Autobahnauffahrt A1/ A9 1,5 km entfernt
15.500 m² in TOPLAGE auf Baurechtsbasis zu pachten I Autobahnauffahrt A1/ A9 1,5 km entfernt
15.500 m² in TOPLAGE auf Baurechtsbasis zu pachten I Autobahnauffahrt A1/ A9 1,5 km entfernt

Preisinformationen

Gesamtmiete:
12.400,00 € / Monat
Vermittlungsprovision:
Ja

Fakten

Objekttyp:
Grundstück
Grundstücksfläche:
15.500 m²
Neubau:
Ja
Verfügbarkeit:
Verfügbar

Beschreibung

Verkehrstechnisch optimal gelegenes und absolut ebenes Grundstück auf Baurechtsbasis im Gewerbegebiet Sattledt zu vergeben (provisionsfrei). Laut örtlichem Entwicklungskonzept ÖEK ist das Grundstück mit rd. 15.500 m² b…
Lade...

Fotomix

Bild 1 Bild 2 Bild 3 Bild 4 Bild 5