NEU - 160 m² TOP-WOHNUNG BEIM KARLSPLATZ - 5 ZIMMER - 2 BÄDER - 2 TERRASSEN - RUHELAGE!

Wohnung zur Miete in 1040 Wien - Gesamtmiete: 4.791,95 € / Objektnummer: 4832/1538
Ausstattung: Barrierefrei Fahrstuhl Wohnküche / offene Küche Tiefgarage Parkplatz Abstellraum Terrasse
.
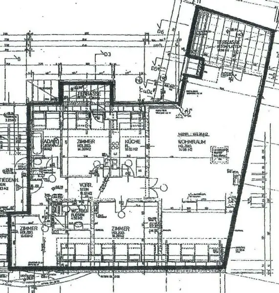
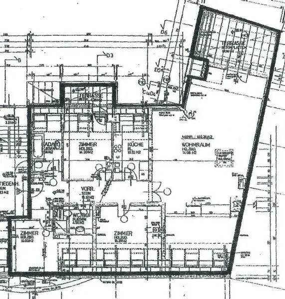
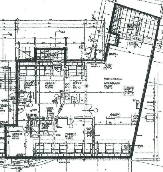
PLAN

Preisinformationen

Gesamtmiete:
4.791,95 € / Monat
Betriebskosten netto:
441,78 € / Monat
Heizkosten netto:
348,73 €
Umsatzsteuer:
398,18 €
Preisinfos:
Mietvertrags-Errichtung: € 360,- inkl. USt
Kaution:
14.400,00 €
Provision:
Gemäß Erstauftraggeberprinzip bezahlt der Abgeber die Provision.

Fakten

Objektnummer:
4832/1538
Objekttyp:
Wohnung
Terrasse:
2
Wohnfläche:
160,26 m²
Zimmer:
3
Badezimmer:
1
Toilette:
1
Baujahr:
1997
Verfügbarkeit:
Verfügbar

Beschreibung

Diese helle und großzügige 5-Zimmer-Wohnung befindet sich in einem modernen und hochwertig ausgestatteten Gebäude direkt neben Schwarzenbergplatz/Karlsplatz.

Durch diese gute Lage ist man unmittelbar im 1. Bezirk und hat sämtliche öffentliche Verkehrsmittel, Geschäfte und Gastronomiebetriebe in Fussnähe.
Da das Haus in einer Seitengasse liegt, genießt man absolute Ruhelage!

RAUMAUFTEILUNG:
- großer Vorraum (14,12 m²)
- Bad 1 mit Fenster, Wanne und WC
- Bad 2 mit Dusche und WC
- Schlafzimmer 1 (16.03 m²)
- Schlafzimmer 2 (14,20 m²) mit Terrasse (ca. 5 m²)
- Schlafzimmer 3 (18,29 m²)
- Schlafzimmer 4 (derzeit in den Wohnsalon integriert - kann wieder abgetrennt werden!)
- Wohnsalon (74,98 m²) mit Terrasse (ca. 18 m²)

Nebenräume, Keller und optional Garagenplätze zur Miete (€ 180,- p.m.) findet man auch im Haus.
Das Akonto für Heizung und Warmwasser ist in der Gesamtmiete bereits beinhaltet!

Mietdauer: 5 Jahre mit Verlängerungs-Möglichkeit

Diese luxuriöse Top-Wohnung ist ideal für Paare und Familien, die zentral und mit viel Platz wohnen möchten!
 

Bei Interesse freuen wir uns über Ihre Kontaktaufnahme!

Der Immobilienmakler erklärt, dass er – entgegen dem in der Immobilienwirtschaft üblichen Geschäftsgebrauch des Doppelmaklers – einseitig nur für den Vermieter tätig ist.
Beschreibung weiterlesen

Lage und Verkehrsanbindung

Karlsplatz / Schwarzenbergplatz

Energieeffizienz

HWB:
51,4 kWh/(m²*a)
HWB Klasse:
C
Energieausweisart:
Energiebedarfs-ausweis

Grundriss

Lageplan

1040 Wien | Wien 4., Wieden

Lade...
Robert W. Pabisch

Robert W. Pabisch
Geschäftsführer

S+R KERN Immobilien GmbH

Lade...

Fotomix

Bild 1 Bild 2 Bild 3 Bild 4 Bild 5 Bild 6 Bild 7 Bild 8 Bild 9 Bild 10 Bild 11 Bild 12 Bild 13 Bild 14 Bild 15 Bild 16 Bild 17 .