NEU - 2 Zimmer-Altbauwohnung mit separater Küche Nähe Türkenschanzpark

Wohnung zum Kauf in 1180 Wien - Kaufpreis: 489.000 € / Objektnummer: 91740
Ausstattung: Boden Bad Kabel/Satelliten-TV Etagenheizung
Hausansicht 1
Hausansicht 2
Hausansicht 3
Innenhoffassade 1
Innenhoffassade 2
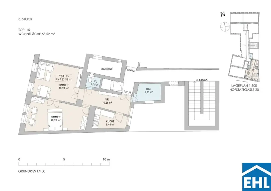
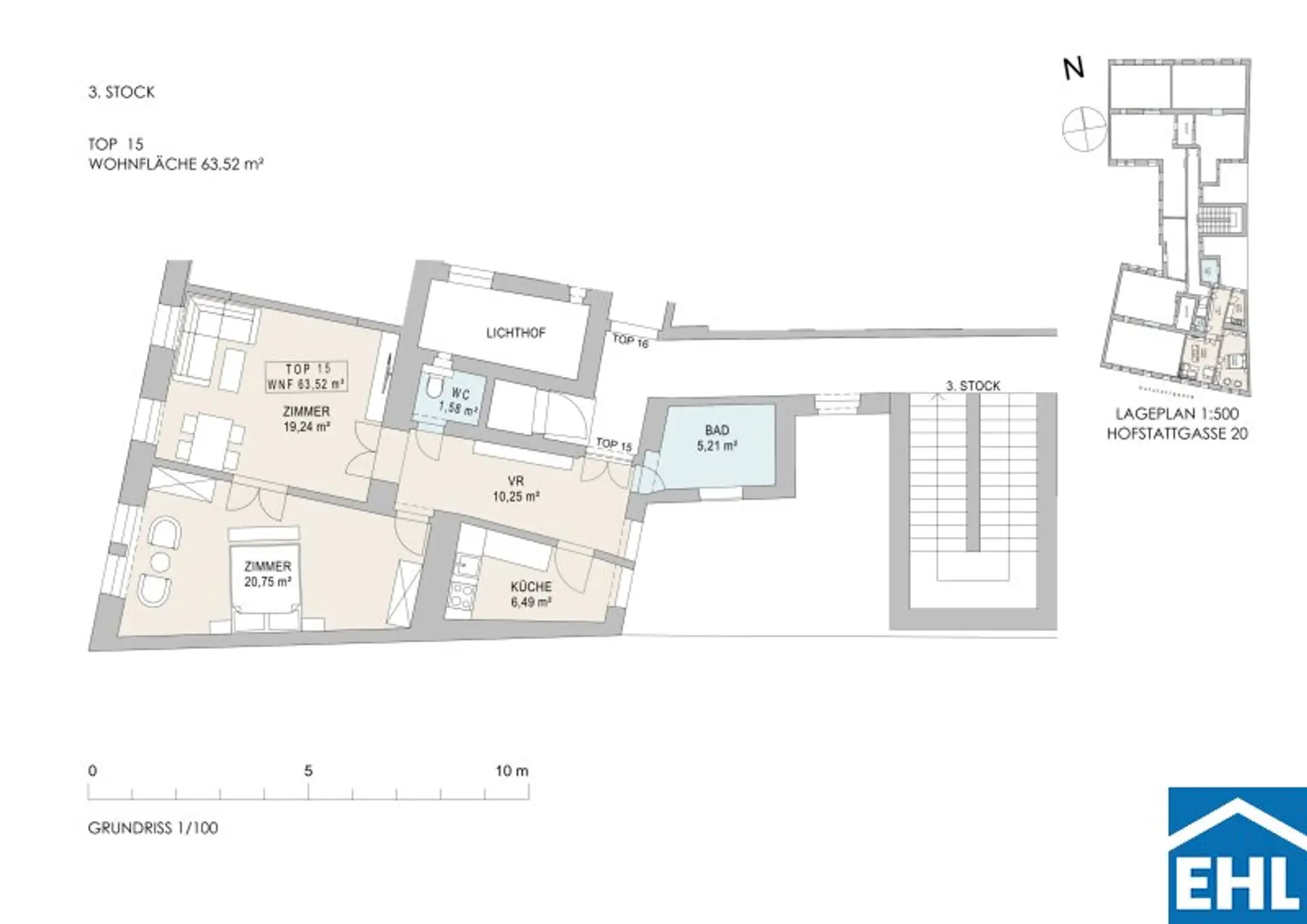
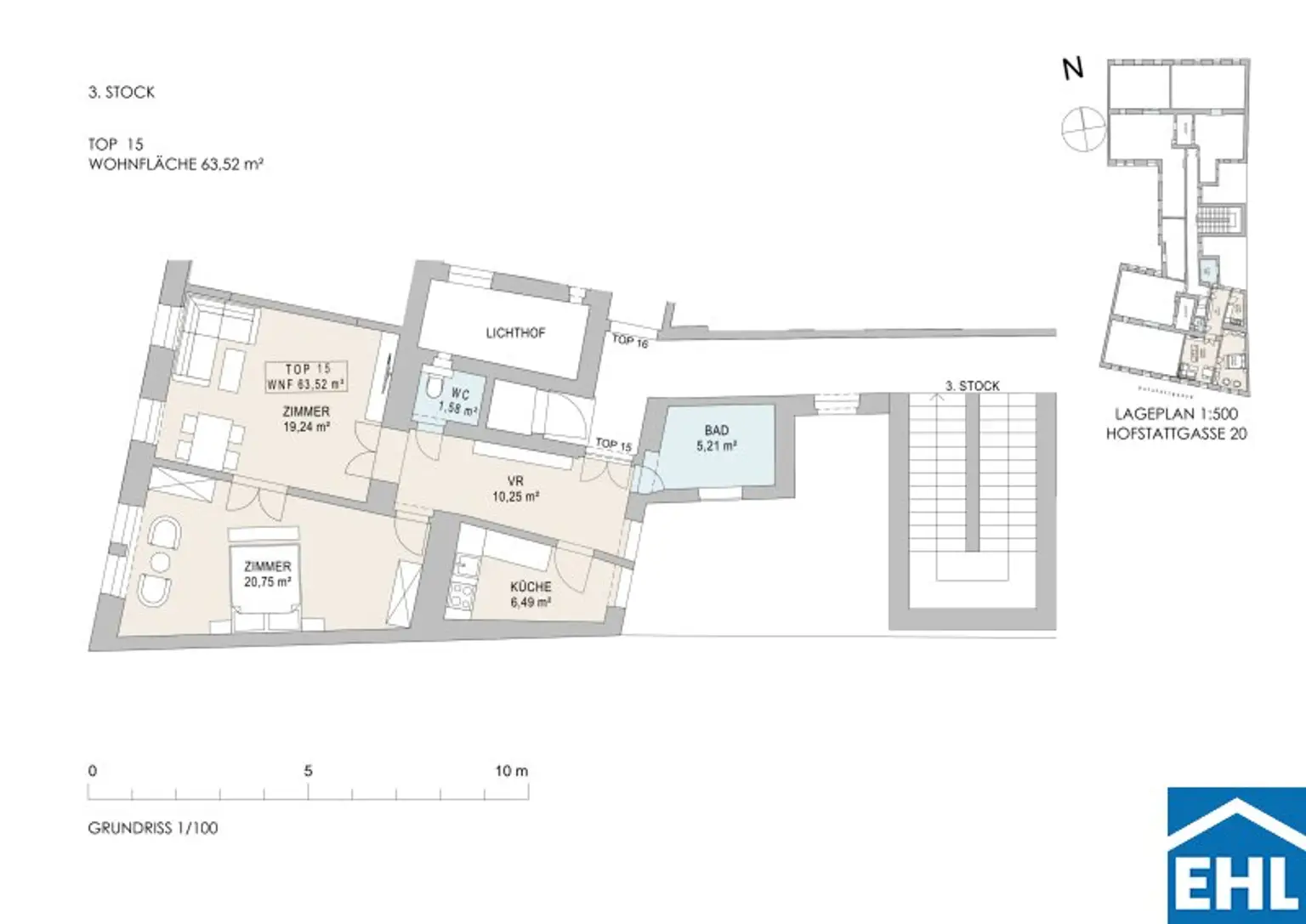
Top 15

Preisinformationen

Kaufpreis:
489.000 €
Kaufpreis/m²
7.698,36 €
Betriebskosten netto:
138,45 € / Monat
Vermittlungsprovision:
Ja
Provision:
3% des Kaufpreises zzgl. 20% USt.

Fakten

Objektnummer:
91740
Objekttyp:
Wohnung
Wohnfläche:
63,52 m²
Zimmer:
2
Badezimmer:
1
Toilette:
1
Stockwerk:
3
Baujahr:
1900
Altbau:
Ja
Zustand:
Gepflegt
Verfügbarkeit:
Verfügbar

Beschreibung

Stilvolle Eigentumswohnungen in Wiener Gründerzeithaus

Ihre neue Eigentumswohnung in einem äußerst gepflegten Wiener Altbau mitten in Währing wartet auf Sie!

Das repräsentative Altbauhaus zeigt sich in einem sehr guten Gesamtzustand. Die Fassaden zur Straße und zum Hof erstrahlen frisch gestrichen und der einladende Eingangsbereich wurde stilvoll modernisiert. Stimmungsvolle Beleuchtungselemente und klassische Altbau-Hängeluster sowie sorgfältig restaurierte Originalgeländer und historische Mosaikfliesen bewahren den authentischen Charme des Hauses.

Zusätzlich zu dem gepflegten Innenhof und einem Kellerbateil je Wohnung wird außerdem ein Lift vertraglich zugesichert, dessen Errichtung innerhalb der kommenden drei Jahre erfolgen wird – ein wertvoller Gewinn für das gesamte Gebäude.

Die Ausstattung:

Die Wohnungen vereinen Wiener Charme mit moderner Funktionalität.

* Edler Fischgrät-Parkettboden in den Wohnräumen
* Original-Flügeltüren
* Hohe Decken, die das klassische Altbauflair vermitteln 
* Moderne Badezimmer und Toiletten 
* Möblierte Küchen
 

Verfügbar ab: sofort!
Vermittlungsprovision: 3% vom Kaufpreis zzgl. USt.
 

Die Lage & Infrastruktur:

Die Lage in der Hofstattgasse zählt zu den begehrtesten Wohngegenden Währings. Sie bietet ein ruhiges Umfeld bei gleichzeitig hervorragender Infrastruktur. In unmittelbarer Nähe befinden sich der Sternwartepark, der Türkenschanzpark und der Schubertpark, die zu Spaziergängen und Erholung im Grünen einladen.

Einkaufsmöglichkeiten, Cafés, Restaurants, Apotheken und Boutiquen entlang der Währinger Straße und Gentzgasse liegen ebenfalls nur wenige Schritte entfernt und sorgen für eine perfekte Nahversorgung.

Auch die öffentliche Verkehrsanbindung ist ausgezeichnet:

* Straßenbahnlinien 40 und 41 – nur wenige Gehminuten entfernt, mit direkter Verbindung zu U6 – Volksoper.

Top 15: 

* ca. 63 m² Wohnfläche auf zwei Zimmer, sowie eine separate Küche, aufgeteilt
* Zwei großzügige Zimmer – getrennt begehbar
* Badezimmer mit Fenster zum Lichthof
* Separates WC

Wir weisen darauf hin, dass zwischen dem Vermittler und dem zu vermittelnden Dritten ein familiäres oder wirtschaftliches Naheverhältnis besteht.

Der Vermittler ist als Doppelmakler tätig.

Infrastruktur / Entfernungen

Gesundheit
Arzt <500m
Apotheke <500m
Klinik <1.000m
Krankenhaus <1.000m

Kinder & Schulen
Schule <500m
Kindergarten <500m
Universität <1.000m
Höhere Schule <500m

Nahversorgung
Supermarkt <500m
Bäckerei <500m
Einkaufszentrum <1.500m

Sonstige
Geldautomat <500m
Bank <500m
Post <500m
Polizei <500m

Verkehr
Bus <500m
U-Bahn <1.000m
Straßenbahn <500m
Bahnhof <1.000m
Autobahnanschluss <2.500m

Angaben Entfernung Luftlinie / Quelle: OpenStreetMap
Beschreibung weiterlesen

Lage und Verkehrsanbindung

Sternwartepark, Währinger Straße

Energieeffizienz

HWB:
165,3 kWh/(m²*a)
HWB Klasse:
E
fGEE:
2,37
fGEE Klasse:
D
Energieausweisart:
Energiebedarfs-ausweis
Gültig bis:
31.01.2033

Dokumente

Grundriss

Lageplan

1180 Wien | Wien 18., Währing

Lade...
Julie Wittrich

Julie Wittrich
Immobilienberaterin

EHL Wohnen GmbH

Lade...

Fotomix

Bild 1 Bild 2 Bild 3 Bild 4 Bild 5 Bild 6 Bild 7 Bild 8 Bild 9 Bild 10 Bild 11 Bild 12 Hausansicht 1 Hausansicht 2 Bild 15 Hausansicht 3 Bild 17 Innenhoffassade 1 Bild 19 Innenhoffassade 2 Bild 21 Bild 22 Bild 23 Bild 24 Bild 25 Bild 26 Bild 27