NEU - 2-Zimmer-Eckwohnung mit Altbauflair in top saniertem Altbauhaus

Wohnung zum Kauf in 1170 Wien - Kaufpreis: 295.000 € / Objektnummer: 1619/8121
Ausstattung: Fahrstuhl Bad Etagenheizung Fußbodenheizung

Preisinformationen

Kaufpreis:
295.000 €
Betriebskosten netto:
67,63 € / Monat
Heizkosten netto:
21,04 €
Vermittlungsprovision:
Ja
Provision:
3% des Kaufpreises zzgl. 20% USt.

Fakten

Objektnummer:
1619/8121
Objekttyp:
Wohnung
Keller Fläche:
3,6 m²
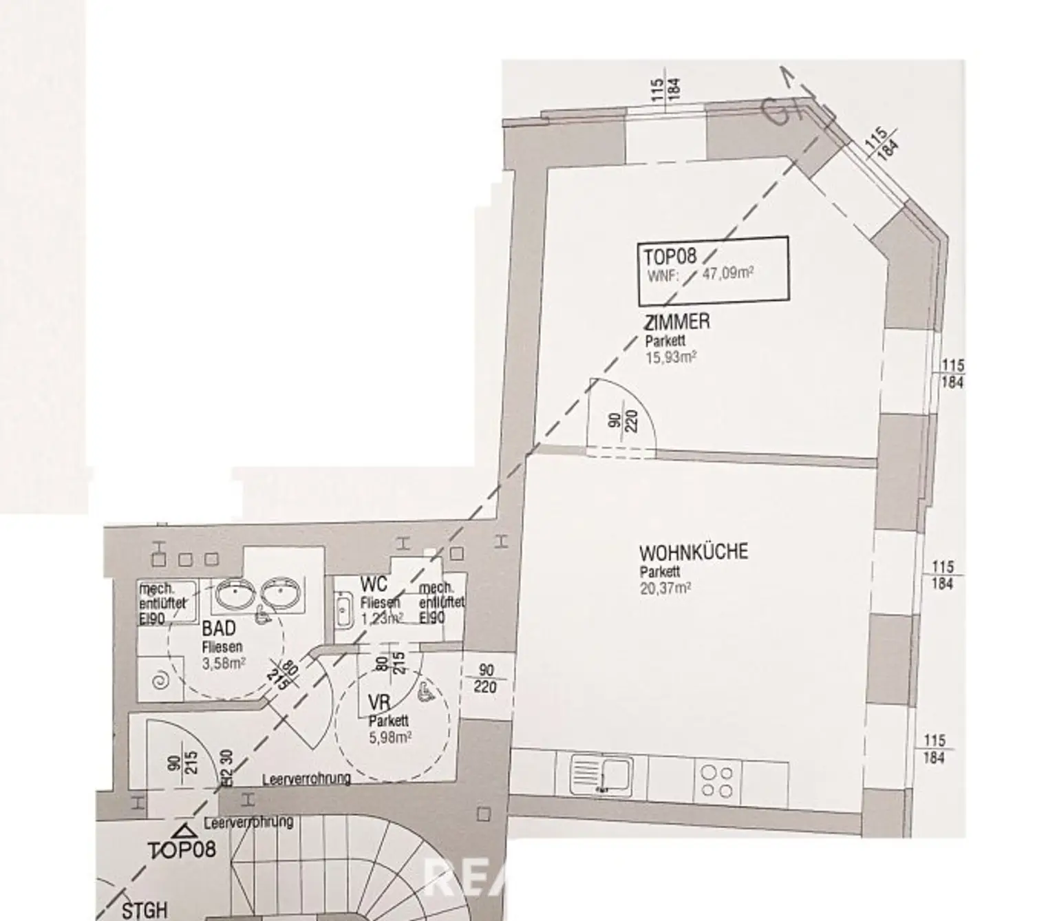
Wohnfläche:
47 m²
Zimmer:
2
Badezimmer:
1
Toilette:
1
Stockwerk:
2
Baujahr:
1900
Altbau:
Ja
Letzte Sanierung:
2024
Zustand:
Vollsaniert
Verfügbarkeit:
Verfügbar

Beschreibung

Zum Verkauf gelangt diese im Jahr 2023/2024 grundsanierte Altbau-Wohnung in einem komplett sanierten Altbau-Haus beim Dornerplatz unweit des AKH!

Die Wohnung liegt im 2. Liftstock.

 

Aus dem Vorraum gelangen Sie in die ca. 20 m² große Wohnküche, das ca. 4 m² große Bad und das separate WC. Das ca. 16 m² große Eckzimmer können Sie über die Wohnküche betreten.

 

Wohnungs- und Lage-Highlights

Altbau-Flair
Wohnung und gesamtes Haus in Top-Zustand

AKH wenige Gehminuten entfernt
U6 Alser Straße sowie U6 Michelbeuern/AKH wenige Gehminuten entfernt
Hernalser Einkaufsstraße ums Eck
Straßenbahnlinien 9 und 43 (Richtung Schottentor/U2) quasi vor dem Haus

 

 

 

Der Vermittler ist als Doppelmakler tätig.

Infrastruktur / Entfernungen

Gesundheit
Arzt <500m
Apotheke <500m
Klinik <500m
Krankenhaus <1.000m

Kinder & Schulen
Schule <500m
Kindergarten <500m
Universität <1.500m
Höhere Schule <1.000m

Nahversorgung
Supermarkt <500m
Bäckerei <500m
Einkaufszentrum <500m

Sonstige
Geldautomat <500m
Bank <500m
Post <500m
Polizei <500m

Verkehr
Bus <500m
U-Bahn <1.000m
Straßenbahn <500m
Bahnhof <1.000m
Autobahnanschluss <3.500m

Angaben Entfernung Luftlinie / Quelle: OpenStreetMap
Beschreibung weiterlesen

Lage und Verkehrsanbindung

Dornerplatz, Elterleinplatz, U6 Alser Straße, AKH

Energieeffizienz

HWB:
41 kWh/(m²*a)
HWB Klasse:
B
fGEE:
0,92
fGEE Klasse:
B
Energieausweisart:
Energiebedarfs-ausweis
Gültig bis:
28.03.2033

Grundrisse

Lageplan

1170 Wien | Wien 17., Hernals

Lade...
Alice Prat (Team Hubert Koller)

Alice Prat (Team Hubert Koller)

RE/MAX Real Experts Immobilien lifetime GmbH

Virtuelle Tour

Lade...

Fotomix

Bild 1 Bild 2 Bild 3 Bild 4 Bild 5 Bild 6 Bild 7 Bild 8 Bild 9 Bild 10 Bild 11