2-Zimmer Gartenwohnung in Ruhelage - jetzt einziehen & wohlfühlen!

Wohnung zur Miete in 1100 Wien - Gesamtmiete: 1.048,69 € / Objektnummer: 1759801
Ausstattung: Boden Fahrstuhl Bad Tiefgarage Parkplatz Fahrradraum Zentralheizung Loggia Terrasse Garten
Außensicht
Außensicht

Preisinformationen

Gesamtmiete:
1.048,69 € / Monat
Betriebskosten netto:
99,63 € / Monat
Umsatzsteuer:
95,33 €
Kaution:
3 Bruttomonatsmieten
Provision:
Gemäß Erstauftraggeberprinzip bezahlt der Abgeber die Provision.

Fakten

Objektnummer:
1759801
Objekttyp:
Wohnung
Terrasse:
1
Loggia:
1
Keller Fläche:
1,7 m²
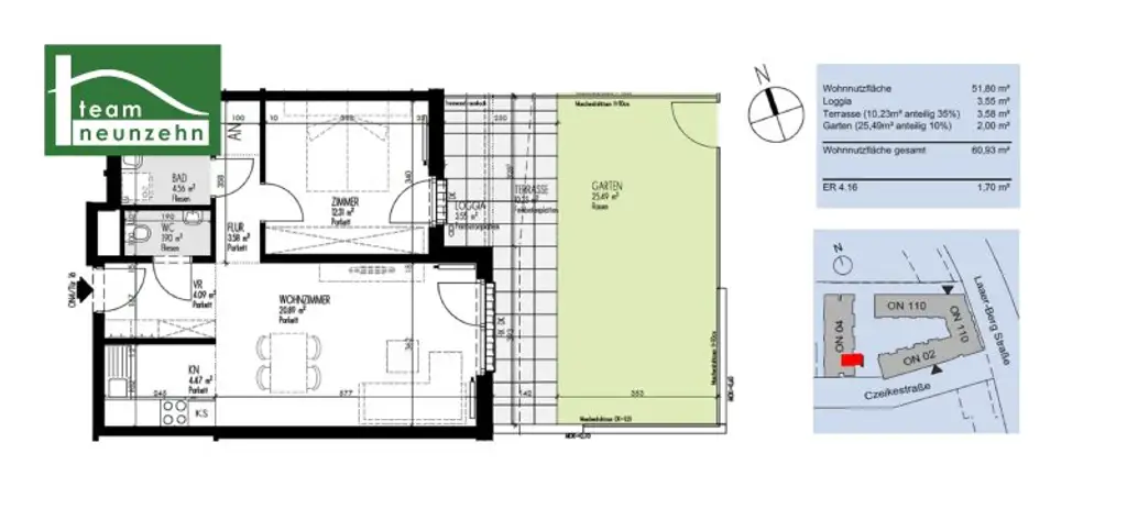
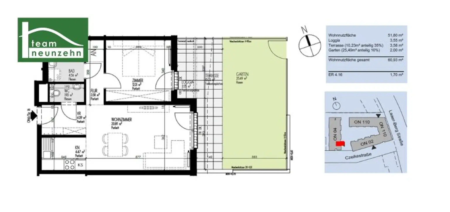
Wohnfläche:
51,8 m²
Loggia Fläche:
3,55 m²
Nutzfläche:
91,07 m²
Gesamtfläche:
91,07 m²
Gartenfläche:
25,49 m²
Zimmer:
2
Badezimmer:
1
Toilette:
1
Neubau:
Ja
Zustand:
Neuwertig
Verfügbarkeit:
Verfügbar

Beschreibung

Herzlich willkommen in Ihrem neuen Zuhause!

Diese Neubauwohnungen liegen in unmittelbarer Nähe des idyllischen Erholungsgebiets Laaer Wald und bestechen durch gut durchdachte Grundrisse, lichtdurchflutete Räume sowie eine erstklassige Einbauküche und Freifläche (Balkon/Loggia/Garten).

Jede Wohneinheit verfügt über einen eigenen Einlagerungsraum im Kellergeschoss. Im Erdgeschoss stehen außerdem ein großzügiger Fahrrad- und Kinderwagenraum, eine Waschküche sowie Gemeinschaftsräume zur Verfügung. Zudem besteht die Möglichkeit, einen Stellplatz in der hauseigenen Tiefgarage für 120,00 € anzumieten.

Die Umgebung bietet eine tolle Infrastruktur mit Geschäften des täglichen Bedarfs, und dank der guten Anbindung an das öffentliche Verkehrsnetz ist das Wiener Stadtzentrum in kurzer Zeit erreichbar. Außerdem gelangen Sie durch die Autobahnauffahrt A23 in nur etwa 20 Minuten zum Westfield Shopping City Süd (SCS), wo Sie eine vielfältige Auswahl an Einkaufs- und Restaurantmöglichkeiten erwartet.

 

Das Projekt zeichnet sich besonders durch die folgenden Merkmale aus:

* Grünruhelage
* Wärmeerzeugung mittels Fernwärme
* Eichenparkettboden
* Großformatige Fliesen in den Nassbereichen
* Sicherheitseingangstüre
* Mehrfachisolierverglaste Fenster
* Außenliegender Sonnenschutz
* moderne Einbauküche
* Freifläche (Loggia/Balkon/Garten)
* Aufzug
* Waschküche
* Gemeinschaftsräume
* Tiefgaragenstellplätze (zusätzlich anmietbar)
* Fahrrad- und Kinderwagenraum
* Kellerabteil

Wohnung Stiege 2 Top 16

Die Wohnung mit ca. 51,80 m² Wohnfläche, ca. 3,55 m² Loggia, ca. 10,23 m² Terrasse und 25,49 m² Garten liegt im Erdgeschoss und gliedert sich in folgende Raumaufteilung:

* Vorraum: ca. 4,09 m²
* Wohnküche mit Küchennische: ca. 25,36 m²
* Zimmer: ca.  12,31 m²
* Flur: ca. 3,58 m²
* Bad: ca. 4,56 m²
* WC: ca. 1,90 m²

Der Wohnung ist ein Kellerabteil zugeordnet.

 

Wir weisen höflichst darauf hin, dass es sich bei den Fotos anbei um Musterfotos handelt. Die Wohnung wird gleich oder gleichwertig übergeben.

 

Einige Bilder des Inserats wurden zum Zweck der besseren Visualisierung digital mit KI möbliert. Die Wohnung wird unmöbliert übergeben.
 

Mietkosten:

Der Mietpreis für die Wohnung beläuft sich auf 1.048,70 € (inkl. BK und USt)

Bei dem angeführten Mietpreis handelt es sich um die Kaltmiete, somit sind sämtliche Energiekosten wie Warmwasser-, Heiz- und Stromkosten nicht inkludiert!

 

Nebenkosten:

Kaution: 3 Bruttomonatsmieten

Mietvertragserrichtung: € 108,00 inkl. 20% USt.

 

Infrastruktur:

Das Projekt befindet sich in toller Lage des 10. Bezirks. In unmittelbarer Umgebung erwarten Sie nicht nur einige Einkaufsmöglichkeiten (Hofer, Spar, Lidl, dm), sondern auch hervorragende Freizeitmöglichkeiten (Böhmischer Prater, Erholungsgebiet Laaer Wald, Parkanlage Löwygrube, Kurpark Oberlaa). Außerdem erreichen Sie mit den öffentlichen Verkehrsmitteln in nur kurzer Zeit die Wiener Innenstadt und durch die Autobahnauffahrt A23 in nur ca. 20 Minuten das Westfield Shopping City Süd (SCS), wo Sie ebenso vielseitige Einkaufs- und Restaurantmöglichkeiten erwarten.

 

Öffentliche Verkehrsanbindungen:

* Bus Linien: 68A, 68B
* U-Bahn Linie: U1 – Altes Landgut

 

Energieausweis:

Der Heizwärmebedarf beträgt 23,51 kWh/m²a, welcher der Klasse A entspricht.

 

Für Fragen bzw. Besichtigungen steht Ihnen Frau Marija Ivanov sehr gerne unter ivanov@teamneunzehn.at sowie unter +43 676 852 243 531 [tel:+43676852243531] zur Verfügung.

Wir weisen darauf hin, dass zwischen dem Vermittler und dem zu vermittelnden Dritten ein familiäres oder wirtschaftliches Naheverhältnis besteht.

Der Immobilienmakler erklärt, dass er – entgegen dem in der Immobilienwirtschaft üblichen Geschäftsgebrauch des Doppelmaklers – einseitig nur für den Vermieter tätig ist.

"Leben braucht Raum" * T19-RE Real Estate GmbH & Co KG * www.teamneunzehn.at [https://www.teamneunzehn.at]

Doppelmakler

Wir werden als Immobilienmakler kraft bestehenden Geschäftsgebrauchs als Doppelmakler tätig und haben sohin beide Seiten des Vertrages (Verkäufer-Käufer, Vermieter-Mieter) zu unterstützen.

Wirtschaftliches Naheverhältnis

Es wird bekannt gegeben, dass folgendes wirtschaftliches Naheverhältnis zwischen der teamneunzehn-Gruppe und dem Verkäufer/der vermietenden Partei besteht: ständige und dauerhafte Beauftragung mit der Vermittlung des bestehenden Immobilienportfolios

Haftungserklärung zum Inserat

Irrtum und Änderungen vorbehalten! Sofern es sich bei Bildern um Visualisierungen handelt, können Abänderungen zur tatsächlichen Ausführung resultieren. Wir weisen ausdrücklich darauf hin, dass das auf Fotos oder Visualisierungen ersichtliche Mobiliar bzw. Inventar nicht Bestandteil des inserierten Preises ist.

 

 

Infrastruktur / Entfernungen

Gesundheit
Arzt <700m
Apotheke <625m
Klinik <1.550m
Krankenhaus <3.300m

Kinder & Schulen
Schule <425m
Kindergarten <625m
Universität <950m
Höhere Schule <3.025m

Nahversorgung
Supermarkt <325m
Bäckerei <825m
Einkaufszentrum <1.225m

Sonstige
Geldautomat <1.200m
Bank <1.200m
Post <1.250m
Polizei <725m

Verkehr
Bus <250m
U-Bahn <675m
Straßenbahn <725m
Bahnhof <675m
Autobahnanschluss <550m

Angaben Entfernung Luftlinie / Quelle: OpenStreetMap
Beschreibung weiterlesen

Lage und Verkehrsanbindung

Böhmischer Prater, Löwygrube, Erholungsgebiet Laaer Wald, Kurpark Oberlaa, Südosttangente A23

Energieeffizienz

HWB:
23,51 kWh/(m²*a)
HWB Klasse:
A
fGEE:
0,83
fGEE Klasse:
A
Energieausweisart:
Energiebedarfs-ausweis

Grundriss

Lageplan

1100 Wien | Wien 10., Favoriten

Lade...
Marija Ivanov

Marija Ivanov
Immobilienvermittlung

teamneunzehn-Gruppe

Lade...

Fotomix

Bild 1 Bild 2 Bild 3 Bild 4 Bild 5 Bild 6 Bild 7 Bild 8 Bild 9 Bild 10 Bild 11 Außensicht Außensicht Bild 14 Bild 15