2-Zimmer Gartenwohnung mit Terrasse; ab APRIL 2026

Wohnung zur Miete in 1220 Wien - Gesamtmiete: 843,44 € / Objektnummer: 3938
Ausstattung: Rollstuhlgerecht Boden Fahrstuhl Wohnküche / offene Küche Bad Kabel/Satelliten-TV Klimaanlage Fahrradraum Fußbodenheizung Terrasse Garten
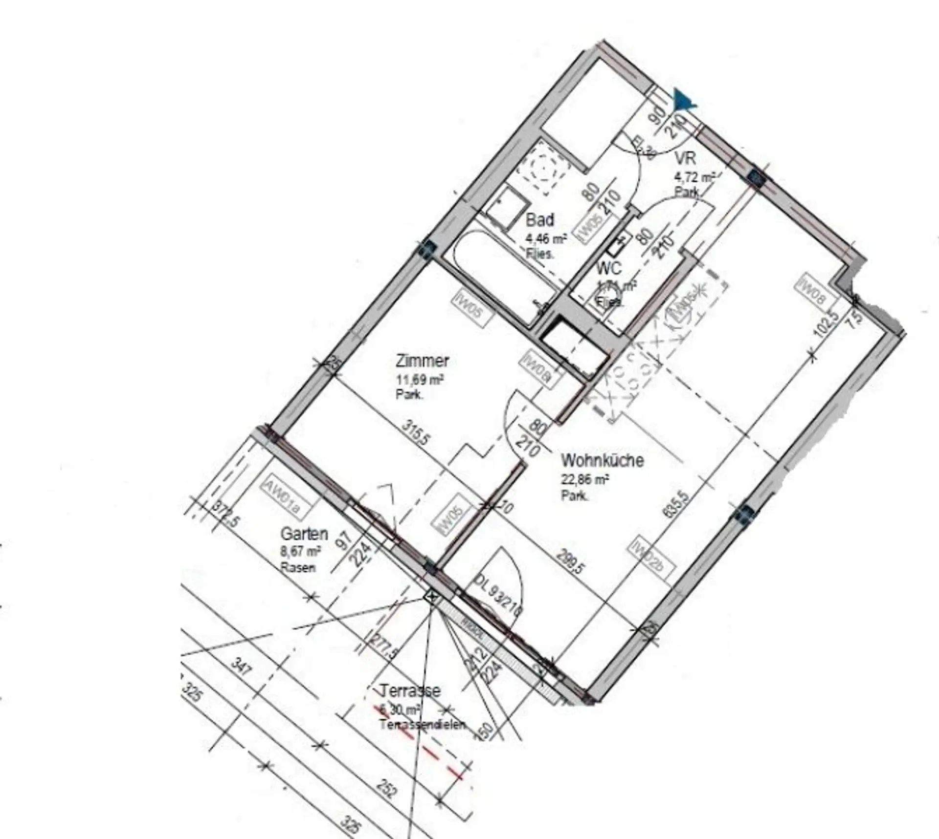
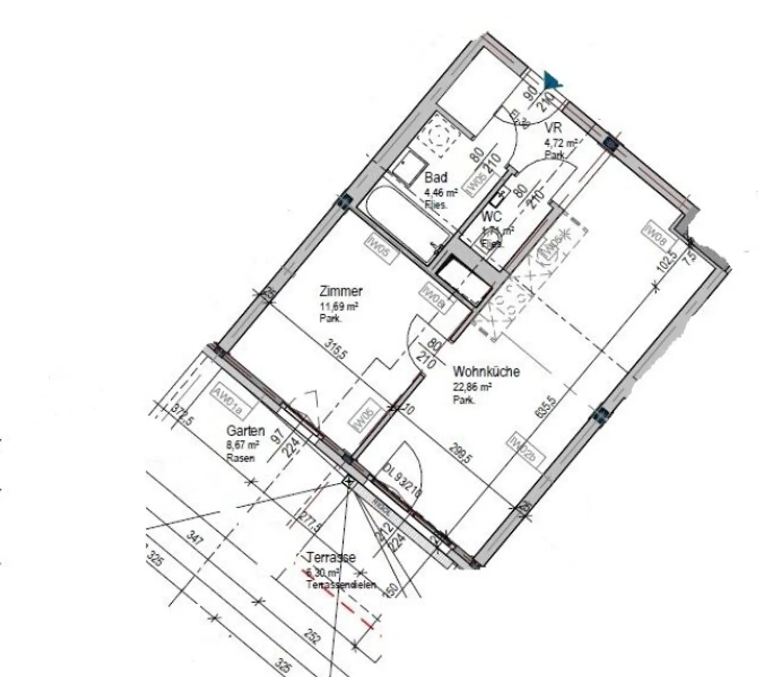
2 Zimmer mit Terrasse und Garten

Preisinformationen

Gesamtmiete:
843,44 € / Monat
Betriebskosten netto:
86,76 € / Monat
Umsatzsteuer:
76,68 €
Kaution:
2.500,00 €
Provision:
Gemäß Erstauftraggeberprinzip bezahlt der Abgeber die Provision.

Fakten

Objektnummer:
3938
Objekttyp:
Wohnung
Terrasse:
1
Wohnfläche:
45,44 m²
Gartenfläche:
8,67 m²
Zimmer:
2
Badezimmer:
1
Toilette:
1
Stockwerk:
1
Baujahr:
2022
Neubau:
Ja
Zustand:
Erstbezug
Verfügbarkeit:
Verfügbar

Beschreibung

2-ZIMMER-WOHNUNG MIT GARTEN UND TERRASSE AUF 10 JAHRE MIT OPTION AUF VERLÄNGERUNG!

 

Die Wohnhausanlage befindet sich im 22. Wiener Bezirk, nahe dem Hirschstettner Badeteich und den Blumengärten Hirschstetten.

Die ca. 45 m² große Wohnung plus 15 m² Freifläche (Garten+Terrasse), sucht einen neuen Nachmieter ab April! 

 

Beim Betreten der Wohnung gelangen Sie durch die Eingangstür in einen einladenden Flur. Direkt gegenüber befindet sich das Badezimmer mit einer Badewanne, einem Waschbecken und einem Waschmaschinenanschluss sowie ein separat liegendes WC inkl. Handwaschbecken. Folgt man dem Flur, gelangen Sie in den geräumigen Wohnbereich, der eine offene Wohnküche umfasst. Die Küche ist mit modernen Geräten ausgestattet und bietet Ihnen alles, was Sie für den täglichen Gebrauch benötigen. Von hier aus haben Sie Zugang zu dem gemütlichen Balkon mit Blick in den Innenhof! Eine weitere Tür im Wohnbereich führt Sie in das abgetrennte Schlafzimmer.

 

Geheizt wird in der Anlage mittels Fernwärme. Ein geräumiges Kellerabteil wir dem Mieter für die Mietdauer zur Verfügung gestellt. Ein Aufzug ist natürlich auch vorhanden. Die Hausanlage verfügt außerdem über einen Kinderwagen- und einen Fahrradabstellraum, sowie einem Party- bzw. Kinderspielraum und einer Waschküche.

Ein Autostellplatz kann in der Tiefgarage bei Bedarf und Verfügbarkeit separat angemietet werden.

 

 

 

AUSSTATTUNG:

Parkettböden in den Wohnräumen, Fußbodenheizung, elektrische Außenjalousien, Internet- und Kabel-Anschlüsse, Gegensprechanlage; Sicherheitstür; Deckenkühlung

 

KONDITIONEN:

Vermietet wird auf 10 Jahre ab April; mit Option auf Verlängerung

Kündigungsverzicht: 1 Jahr; Kündigungsfrist: 3 Monate;

Gesamtmiete (inkl. BK und Steuern): € 680,-

Kaution: € 2.500,- // Vertragserrichtung: € 360, - // provisionsfrei für den Mieter!

 

Strom wird auf den Mieter umgemeldet. Heizung (Fernwärme und Wasser) wird direkt über Wien Energie verrechnet und auf den Mieter umgeschrieben.

TV und Internet sind nach Bedarf selbst an- und wieder abzumelden.

Ein Abschluss einer Haushaltsversicherung wird vor dem Einzug empfohlen.

 

 

Kontakt:

Bitte beachten Sie, dass wir aufgrund der Nachweispflicht gegenüber dem Eigentümer nur Anfragen mit vollständiger Angabe der Anschrift bearbeiten können.

Anfragen bitte daher mit vollständiger Angabe der personenbezogenen Daten: (Name, Nachname, Anschrift, E-mail und Telefonnummer) an: stifter@pr-immobilien.at

Ihre möglichen Terminvorschläge wären dafür sehr hilfreich! 

 

Bei weiteren Fragen können Sie sich ebenfalls jederzeit an die oben genannte E-Mail-Adresse wenden!

 

Wir freuen uns auf Ihre Antwort und verbleiben mit freundlichen Grüßen,

 

PR-Immobilien / REAL ESTATE

Frau Marissa Stifter (Maklerassistentin)

Mobil +43 / 676 590 02 80 [tel:+436602052508]

WEB: www.pr-immobilien.at [http://www.pr-immobilien.at/]

E-Mail: stifter@pr-immobilien.at

 

Noch nichts gefunden? Wir informieren Sie über geeignete Immobilienangebote noch vor allen anderen.
Legen Sie jetzt Ihren individuellen Suchagenten unter folgendem Link an. Wir schicken Ihnen passende Immobilien exklusiv vorab zu.
Suchagent anlegen [https://pr-immobilien-real-estate.service.immo/registrieren/de] - https://pr-immobilien-real-estate.service.immo/registrieren/de

Der Immobilienmakler erklärt, dass er – entgegen dem in der Immobilienwirtschaft üblichen Geschäftsgebrauch des Doppelmaklers – einseitig nur für den Vermieter tätig ist.
Beschreibung weiterlesen

Lage und Verkehrsanbindung

1220 Wien / Blumengärten Hirschstetten / Hirschstettner Badeteich

Blumengärten Hirschstetten / Hirschstettner Badeteich / Hausfeldstraße Bahnhof / Wien Aspern Nord / S2 Hirschstetten / Gewerbepark Stadlau

Energieeffizienz

HWB:
22,28 kWh/(m²*a)
HWB Klasse:
A
fGEE:
0,76
fGEE Klasse:
A
Energieausweisart:
Energiebedarfs-ausweis
Gültig bis:
21.02.2032

Grundriss

Lageplan

1220 Wien | Wien 22., Donaustadt

Lade...
Marissa Stifter

Marissa Stifter
Immobilienmaklerassistentin

PR-IMMOBILIEN / REAL ESTATE

Lade...

Fotomix

Bild 1 Bild 2 Bild 3 Bild 4 Bild 5 Bild 6 Bild 7 Bild 8 Bild 9 Bild 10 Bild 11 Bild 12 Bild 13 Bild 14 Bild 15