NEU - 2-Zimmer HIT in super Lage! ANFRAGEN UND SCHNELL SEIN! JETZT ANFRAGEN!

Wohnung zur Miete in 1200 Wien - Gesamtmiete: 998,99 € / Objektnummer: 1718/1746226
Ausstattung: Boden Fahrstuhl Bad Rollladen Kabel/Satelliten-TV Garage Parkplatz Fahrradraum Abstellraum Fußbodenheizung Balkon

Preisinformationen

Gesamtmiete:
998,99 € / Monat
Betriebskosten netto:
104,29 € / Monat
Umsatzsteuer:
90,82 €
Kaution:
3 Bruttomonatsmieten
Provision:
Gemäß Erstauftraggeberprinzip bezahlt der Abgeber die Provision.

Fakten

Objektnummer:
1718/1746226
Objekttyp:
Wohnung
Balkon:
1
Balkonfläche:
5,36 m²
Wohnfläche:
46,36 m²
Nutzfläche:
51,72 m²
Gesamtfläche:
51,71 m²
Zimmer:
2
Badezimmer:
1
Toilette:
1
Stockwerk:
5
Zustand:
Erstbezug
Verfügbarkeit:
Verfügbar

Beschreibung

2-Zimmer Wohnung in top Lage des 20.Bezirks! Dresdner Straße 17-19 !

Zur Vermietung gelangt diese 2-Zimmer Wohnung mit ca.46m²  in absoluter Ruhelage nahe Handelskai. Das Objekt befindet sich im 5.Liftstock. Die Wohnung ist ruhig ausgerichtet und verfügt über eine Küche welche bereits inkludiert ist zusätzlich ausgestattet ist bereits das, Bad, WC sowie ein großzügiges Wohnzimmer mit angrenzendem kleinen Schlafzimmer. Die Wohnung befindet sich in einem gepflegten Wohngebäude und ist in einem neuwertigen Zustand.

Die Wohnung kann ab dem 1.1. mit einer Befristung von 5 Jahren angemietet werden.

 

*Bei den angeführten Fotos handelt es sich um Beispiel Bilder von Wohnungen aus dem selben Gebäude!

 

Qualität im Fokus:

* Sicherheitstüren für ein geborgenes Gefühl
* Eleganter Eichenparkettboden
* Feinsteinzeug Fliesen im Nassbereich
* Hochwertige Einbauküche in mattem Weiß
* Marken-Sanitärausstattung
* Fußbodenheizung, mittel Fernwärme, bedient durch ein zentrales
* Raumthermostat
* elektrisch betriebener Badheizkörper
* elektrische Außenbeschattung für heiße Sommertage
* Lift
* Einlagerungsräume
* Fahrradraum & Kinderwagenabstellraum
* Großzügige & schöne Freiflächen in allen Wohnungen (Balkon/Garten)
* Energiesparende Bauweise mit Klimazertifizierung
* Tiefgarage mit potenzieller E-Mobilität

 

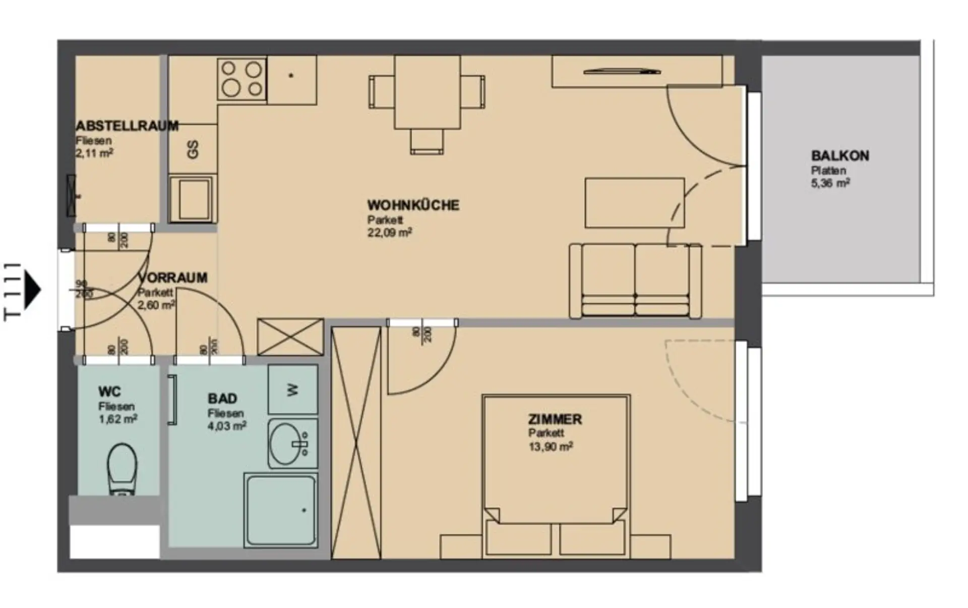
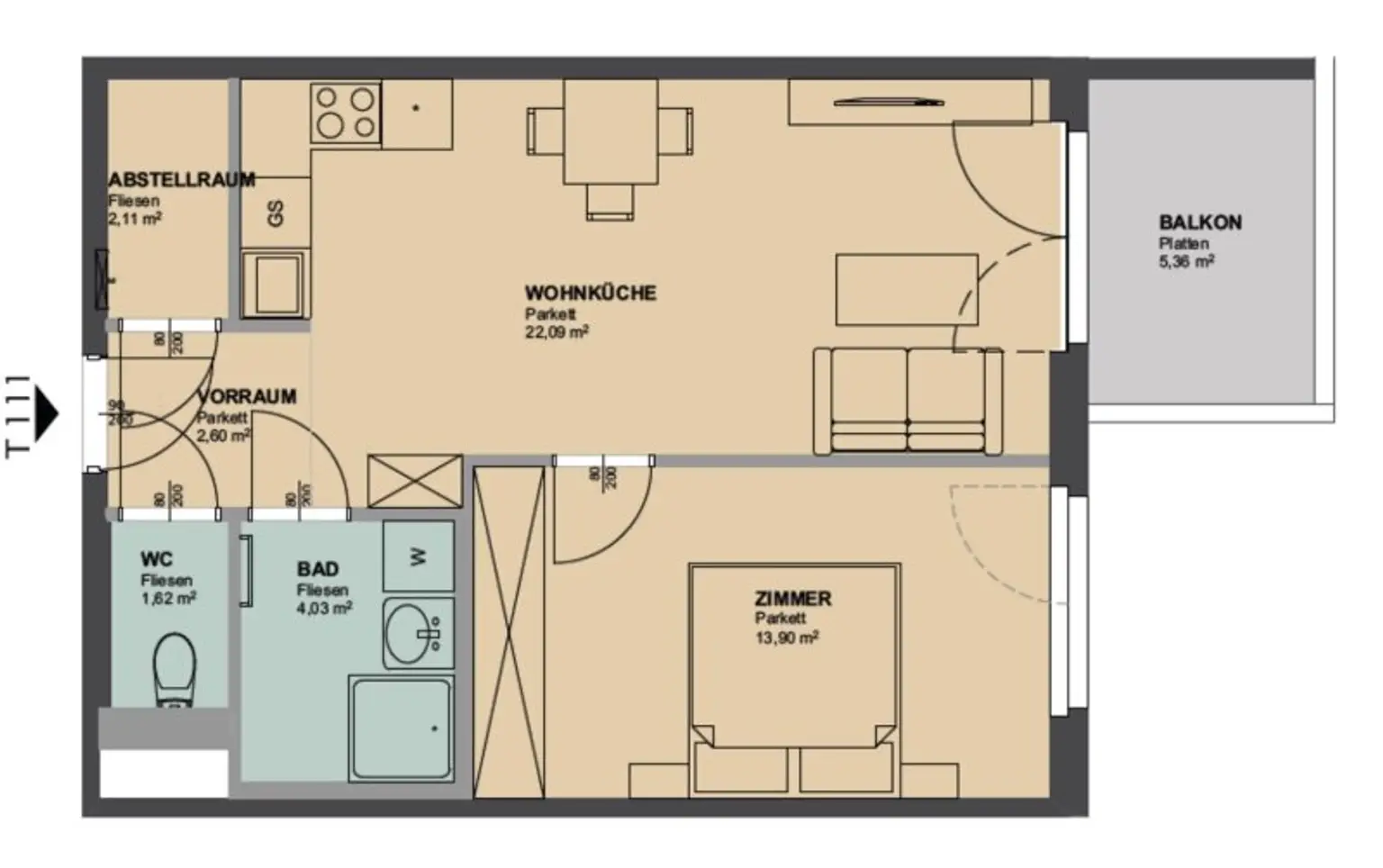
Wohnung STIEGE 2, TOP 111

Die Wohnung mit 46,35 m² Wohnfläche und 5,36 m² Balkon verfügt über folgende Raumaufteilung:

* Vorraum: 2,60 m²
* Badezimmer: 4,03 m²
* WC: 1,62 m²
* Wohnküche mit moderner hochwertiger Küche: 22,09 m²
* Abstellraum: 2,11 m²
* Zimmer: 13,90 m²
 

 

Mietkosten:

Miete monatlich: € 999,00 (inkl. USt und Betriebskosten)

Kaution: 3 Monatsmieten

_Die Kosten für Energie, Heizung und Wasser sind gesondert zu bezahlen und somit nicht im angeführten Mietpreis enthalten._

 

Öffentliche Verkehrsanbindung: 

* Straßenbahn: Höchstädtplatz: Straßenbahnlinien 2, 5, 30, 31 und 33
* Autobus: Friedrich-Engels-Platz: Buslinien 5A, 11A, 11B, N8
* U-Bahn: U6 - Dresdner Straße

 

Energieausweis:

BAUTEIL 1: Energieklasse A - 21,2 kWh/m²a

BAUTEIL 2: Energieklasse A - 20,5 kWh/m²a

 

Für Fragen steht Ihnen Herr Nicolas Krenkel gerne unter 0676 660 99 58 oder via nicolas.krenkel@prime-immobilien.at gerne zur Verfügung.

Wir weisen darauf hin, dass zwischen dem Vermittler und dem zu vermittelnden Dritten ein familiäres oder wirtschaftliches Naheverhältnis besteht.

Der Immobilienmakler erklärt, dass er – entgegen dem in der Immobilienwirtschaft üblichen Geschäftsgebrauch des Doppelmaklers – einseitig nur für den Vermieter tätig ist.

Infrastruktur / Entfernungen

Gesundheit
Arzt 175m
Apotheke 175m
Klinik 275m
Krankenhaus 725m

Kinder & Schulen
Schule 300m
Kindergarten 250m
Universität 225m
Höhere Schule 800m

Nahversorgung
Supermarkt 75m
Bäckerei 225m
Einkaufszentrum 250m

Sonstige
Geldautomat 300m
Bank 300m
Post 275m
Polizei 450m

Verkehr
Bus 125m
U-Bahn 500m
Straßenbahn 175m
Bahnhof 500m
Autobahnanschluss 975m

Angaben Entfernung Luftlinie / Quelle: OpenStreetMap
Beschreibung weiterlesen

Lage und Verkehrsanbindung

Millennium City, Augarten, Donauinsel, Floridsdorfer Hauptstraße

Energieeffizienz

HWB:
21,2 kWh/(m²*a)
HWB Klasse:
A
fGEE:
0,79
fGEE Klasse:
A
Energieausweisart:
Energiebedarfs-ausweis

Grundriss

Lageplan

1200 Wien | Wien 20., Brigittenau

Lade...
Nicolas Krenkel

Nicolas Krenkel

RIMMO Prime Vermittlungs GmbH

Anrufen
Lade...

Fotomix

Bild 1 Bild 2 Bild 3 Bild 4 Bild 5 Bild 6 Bild 7 Bild 8 Bild 9 Bild 10 Bild 11 Bild 12 Bild 13 Bild 14 Bild 15 Bild 16 Bild 17 Bild 18 Bild 19 Bild 20