NEU - 2 Zimmer Juwel für Paare oder Studenten

Wohnung zur Miete in 1160 Wien - Gesamtmiete: 879,00 € / Objektnummer: 8422
Ausstattung: Boden Bad Zentralheizung WG geeignet

Preisinformationen

Gesamtmiete:
879,00 € / Monat
Betriebskosten netto:
165,13 € / Monat
Umsatzsteuer:
132,74 €
Kaution:
3 Bruttomonatsmieten
Provision:
Gemäß Erstauftraggeberprinzip bezahlt der Abgeber die Provision.

Fakten

Objektnummer:
8422
Objekttyp:
Wohnung
Keller Fläche:
3 m²
Wohnfläche:
64,73 m²
Nutzfläche:
67,73 m²
Zimmer:
2
Badezimmer:
1
Toilette:
1
Neubau:
Ja
Zustand:
Vollsaniert
Verfügbarkeit:
Verfügbar

Beschreibung

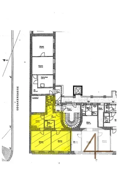
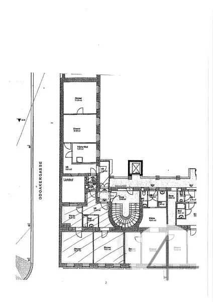
Diese charmante 2-Zimmer-Wohnung überzeugt durch einen durchdachten Grundriss und vielseitige Nutzungsmöglichkeiten.

Bereits beim Betreten empfängt Sie ein schöner, großzügiger Vorraum, der viel Platz für Garderobe und Stauraum bietet und alle Räume zentral erschließt. Das Herzstück der Wohnung bildet die separat gelegene Küche, die sich ideal als gemütlicher Aufenthaltsbereich gestalten lässt – perfekt für gemeinsame Kochabende oder gesellige Stunden.

Die beiden annähernd gleich großen Zimmer mit jeweils ca. 18 m² bieten maximale Flexibilität: Ob als klassisches Wohn- und Schlafzimmer oder als zwei gleichwertige Studentenzimmer – hier sind unterschiedliche Wohnkonzepte problemlos umsetzbar. Dank der großzügigen Raumgrößen wirken die Zimmer hell, freundlich und bieten ausreichend Platz für individuelle Einrichtungsideen.

Diese Wohnung eignet sich ideal für Singles oder Paare mit Platzbedarf ebenso wie für eine 2er-WG, die Wert auf gleich große Zimmer und eine praktische Raumaufteilung legt. Ein vielseitiges Zuhause mit optimal nutzbarem Grundriss!

Ein Badezimmer mit Wanne und Waschmaschinenanschluss und ein eigenes WC runden die Wohnung ab.

Ein besonderes Plus: Der Vermieter würde die geschmackvollen und gut erhaltenen Möbel gegen eine Ablöse von ca. € 2.000,– in der Wohnung belassen (inkl. Waschmaschine und Kühlschrank). Dadurch kann die Wohnung bei Bedarf nahezu sofort bezogen werden – ideal für Studierende, Berufseinsteiger oder alle, die eine unkomplizierte Lösung suchen.

Studenten benötigen die Eltern als Bürgen.

Das Haus soll aufgestockt und ein Dachausbau errichtet werden, aber dann werden auch die Fassade und Fenster (teilweise) neu gemacht. Hat zur Folge, dass es eine bessere Energie gibt aber auch eine zeitlang eine Baustelle sein wird, was die Wohnung aber nicht betrifft. Danach steigt die Miete um 80 Euro netto. (ca 04/2027)

 

 

Der Immobilienmakler erklärt, dass er – entgegen dem in der Immobilienwirtschaft üblichen Geschäftsgebrauch des Doppelmaklers – einseitig nur für den Vermieter tätig ist.
Beschreibung weiterlesen

Lage und Verkehrsanbindung

Die Wilhelminenstraße 84 befindet sich in gefragter Lage des 16. Wiener Gemeindebezirks, Wien-Ottakring, und verbindet urbanes Lebensgefühl mit naturnahem Wohnen.
Die Umgebung zeichnet sich durch eine sehr gute Infrastruktur aus: Zahlreiche Einkaufsmöglichkeiten für den täglichen Bedarf, gemütliche Cafés, Restaurants sowie Apotheken, Banken und Schulen befinden sich in unmittelbarer Nähe. Der beliebte Brunnenmarkt und die vielfältigen Lokale rund um den Yppenplatz sind rasch erreichbar und unterstreichen die lebendige, multikulturelle Atmosphäre des Bezirks.
Für Erholung im Grünen sorgt die nahegelegene Wilhelminenberg mit weitläufigen Spazierwegen und beeindruckendem Ausblick über die Stadt. Ebenso laden die Steinhofgründe und der Wienerwald zu Freizeitaktivitäten, Sport und entspannten Stunden im Freien ein.
Die Anbindung an den öffentlichen Verkehr ist ausgezeichnet: Straßenbahn- und Buslinien (Linie 2 direkt vor dem Haus) befinden sich in unmittelbarer Umgebung und gewährleisten eine schnelle Verbindung in die Innenstadt sowie zu wichtigen Verkehrsknotenpunkten. Mit dem Auto ist sowohl das Stadtzentrum als auch die Wiener Stadtausfahrt Richtung Westen bequem erreichbar.
Insgesamt bietet die Lage eine ideale Kombination aus urbaner Infrastruktur, guter Verkehrsanbindung und hoher Lebensqualität im Grünen – perfekt für alle, die citynah und dennoch ruhig wohnen möchten.

Wilhelminenberg

Energieeffizienz

HWB Klasse:
C

Grundriss

Lageplan

1160 Wien | Wien 16., Ottakring

Lade...
Ing. Mag. (FH) Romana Enzmann

Ing. Mag. (FH) Romana Enzmann
Immobilienfachberaterin Wien - Niederösterreich

4immobilien GmbH

Lade...

Fotomix

Bild 1 Bild 2 Bild 3 Bild 4 Bild 5 Bild 6 Bild 7 Bild 8 Bild 9 Bild 10 Bild 11 Bild 12 Bild 13 Bild 14 Bild 15 Bild 16 Bild 17