NEU - 2-Zimmer mit Terrasse! Leben und Wohnen in Baden!

Wohnung zur Miete in 2500 Baden - Gesamtmiete: 749,99 € / Objektnummer: 19717
Ausstattung: Boden Bad Kabel/Satelliten-TV Abstellraum Etagenheizung Terrasse
Wohnzimmer - Terrasse
Terrasse - Garten
Terrasse - Garten
www.bieberundsohn.at
Wohnzimmer - Vorraum
Vorraum
Zimmer
Küche
Bad

Preisinformationen

Gesamtmiete:
749,99 € / Monat
Betriebskosten netto:
225,93 € / Monat
Umsatzsteuer:
68,18 €
Kaution:
2.250,00 €
Provision:
Gemäß Erstauftraggeberprinzip bezahlt der Abgeber die Provision.

Fakten

Objektnummer:
19717
Objekttyp:
Wohnung
Terrasse:
1
Wohnfläche:
51 m²
Nutzfläche:
57,5 m²
Zimmer:
2,5
Badezimmer:
1
Toilette:
1
Baujahr:
1935
Altbau:
Ja
Verfügbarkeit:
Verfügbar

Beschreibung

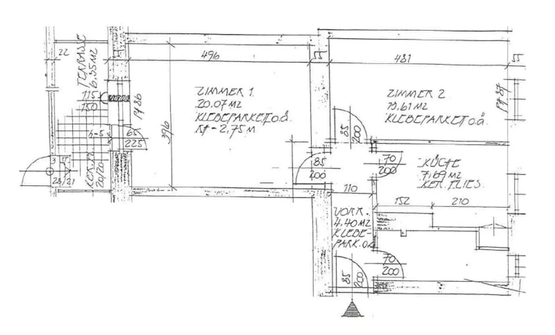
In einer, mit viel Grünanlagen gelegener Wohnhaussiedlung, aus den Jahren zwischen 1900 und 1935, befindet sich im Erdgeschoss/Hochparterre, diese sonnige ca. 51m² große 2 Zimmer Terrassen Wohnung.

Ein Vorraum, ein Bad mit Dusche und WC, eine Küche, ein Zimmer und ein Wohnzimmer mit Ausgang auf die ruhige ca. 6,5m² West Terrasse, bietet diese Wohnung an.

Die Ausstattung ist ein wenig in die Jahre gekommen aber dafür noch in einem sehr gut brauchbaren Zustand – Laminatböden in den Wohnbereichen, klassische Verfliesung im Küchen- und Sanitärbereich, Isolierglasfenster, Waschmaschinenanschluss, Kabelanschluss, Kellerabteil und allgemein Garten.

Die Beheizung und Warmwasseraufbereitung erfolgt über eine Gas-Etagenheizung.

Die Lage und Verkehrsanbindung werten die Wohnung auf! Zu Fuß sind die Geschäfte des täglichen Bedarfs unmittelbar vor der Tür, in 10 Gehminuten das Zentrum von Baden und nur 5 Gehminuten länger, der Hauptbahnhof Baden.

Bildung, Kultur, Kulinarik, Freizeit und Sport – wenn nicht in Baden, wo sonst! Dafür steht Baden!

Die Wohnung wird vorerst auf 5 Jahre befristet vermietet, mit einer Möglichkeit auf Verlängerung.

Miete (netto): 455,88 EUR
Betriebskosten (netto): 225,93 EUR
Umsatzsteuer (gesamt): 68,18 EUR
Gesamtmiete: 749,99 EUR

Kaution: 2.250,00 EUR

Der Immobilienmakler erklärt, dass er – entgegen dem in der Immobilienwirtschaft üblichen Geschäftsgebrauch des Doppelmaklers – einseitig nur für den Vermieter tätig ist.
Beschreibung weiterlesen

Lage und Verkehrsanbindung

Weikersdorfer Park

Energieeffizienz

HWB:
91,5 kWh/(m²*a)
HWB Klasse:
C
fGEE:
1,73
fGEE Klasse:
C
Energieausweisart:
Energiebedarfs-ausweis
Gültig bis:
24.11.2030

Grundriss

Lageplan

2500 Baden | Baden

Lade...
Johannes Bieber

Johannes Bieber

Bieber Immobilien GmbH

Lade...

Fotomix

Wohnzimmer - Terrasse Terrasse - Garten Terrasse - Garten www.bieberundsohn.at Wohnzimmer - Vorraum Vorraum Zimmer Küche Bad Bild 10