NEU - 2-Zimmer Wohntraum mit effizienten Grundriss in zentraler Lage

Wohnung zur Miete in 1030 Wien - Gesamtmiete: 970,62 € / Objektnummer: 28480
Ausstattung: Boden Fahrstuhl Wohnküche / offene Küche Bad Zentralheizung

Preisinformationen

Gesamtmiete:
970,62 € / Monat
Betriebskosten netto:
115,60 € / Monat
Umsatzsteuer:
88,24 €
Kaution:
2.911,86 €
Provision:
Gemäß Erstauftraggeberprinzip bezahlt der Abgeber die Provision.

Fakten

Objektnummer:
28480
Objekttyp:
Wohnung
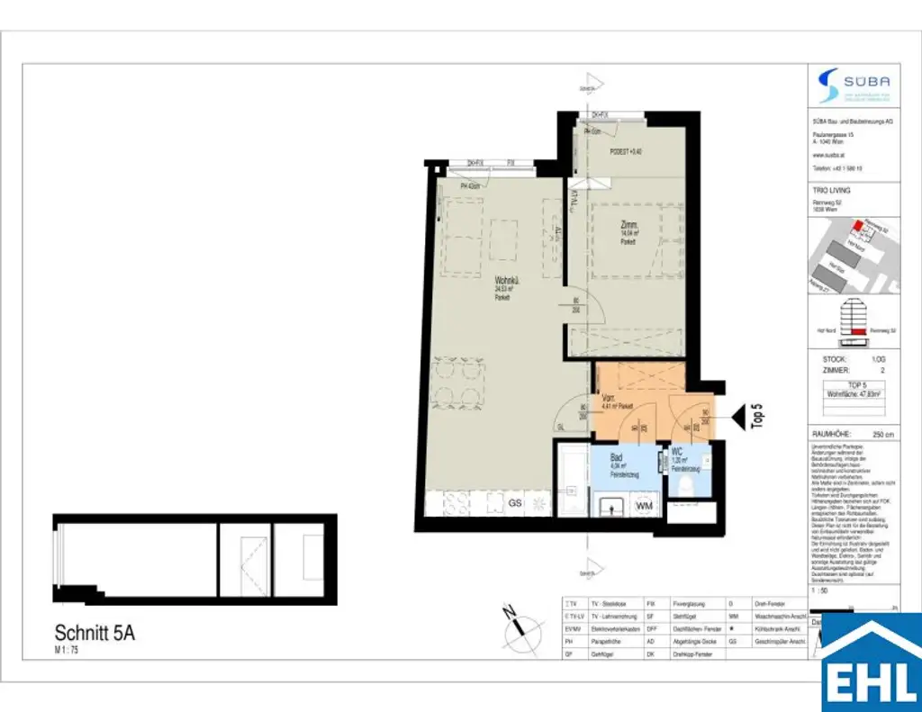
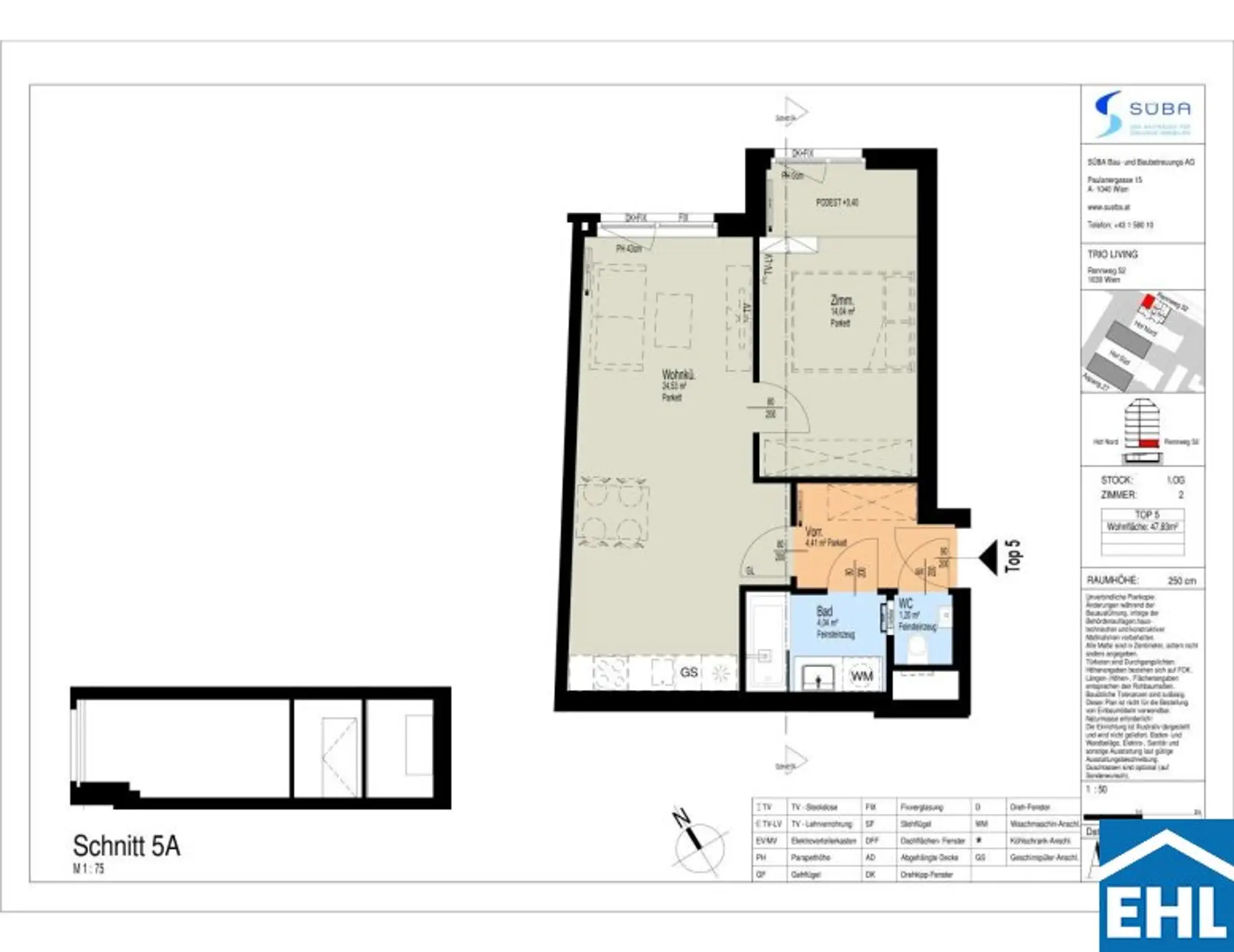
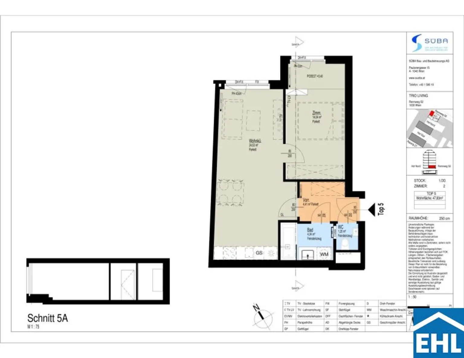
Wohnfläche:
47,83 m²
Zimmer:
2
Badezimmer:
1
Toilette:
1
Stockwerk:
1
Baujahr:
2017
Neubau:
Ja
Zustand:
Gepflegt
Verfügbarkeit:
Verfügbar

Beschreibung

2-Zimmer Wohntraum mit effizienten Grundriss in zentraler Lage

Dieses Wohnhaus befindet sich in optimaler Lage des 3. Bezirks und überzeugt durch seine perfekte Infrastruktur. Die  Wohnungen in Nähe der beliebten Shoppingmeile Landstraßer Hauptstraße bieten frischen Lebensraum, umgeben von urbanem Flair. Moderne Ausstattung, eine ausgezeichnete Lage und hohe qualitative Ansprüche zeichnen dieses schöne Projekt aus.

Dieses Top-Objekt befindet sich in einem attraktiven zentralen Umfeld. Das vielfältige Einkaufs-angebot liegt in unmittelbarer Nähe und einige Meter entfernt lädt der Botanische Garten zum Entspannen ein. Ein attraktives Gastronomieangebot sowie zahlreiche Sport und Freizeitmöglich-keiten sorgen für hohe Lebensqualität. Diese Immobilie garantiert ein perfektes Wohngefühl.

Diese schöne 2 Zimmerwohnung liegt im 1. Liftstock und verfügt über eine geräumige Wohnküche, ein getrennt begehbares Schlafzimmer, ein Badezimmer mit Wanne und Waschmaschinenanschluss, eine separate Toilette und einen Vorraum.

Ausstattung

* Parkettboden im Schlafzimmer und Wohnbereich
* Badezimmer und WC sind mit hochwertigem Feinsteinzeug ausgestattet (Format 30/60)
* Badezimmer mit Badewannen und Duschwand ausgestattet
* vollausgestattete Küche mit Einbaugeräten
* Elektrische Außenjalousien
* Gas-Zentralheizung
* SAT-Anlage, A1- und Telekabelanschluss
* Lift, Keller, Müllraum
* Tiefgarage befindet sich im Haus.

Das Objekt ist nicht barrierefrei.

Öffentliche Verkehrsanbindung
Buslinie 74A, 77A
Straßenbahnlinie 18, 71

Heizung, Warmwasser und Strom werden nach Verbrauch abgerechnet. 

Befristung: 5 Jahre , 1 Jahr Kündigungsverzicht, 3 Monate Kündigungsfrist

Nebenkosten: 3 BMM Kaution, Vertragserrichtungskosten
 

Wir weisen darauf hin, dass zwischen dem Vermittler und dem zu vermittelnden Dritten ein familiäres oder wirtschaftliches Naheverhältnis besteht.

Der Immobilienmakler erklärt, dass er – entgegen dem in der Immobilienwirtschaft üblichen Geschäftsgebrauch des Doppelmaklers – einseitig nur für den Vermieter tätig ist.

Infrastruktur / Entfernungen

Gesundheit
Arzt <250m
Apotheke <500m
Klinik <750m
Krankenhaus <500m

Kinder & Schulen
Schule <250m
Kindergarten <500m
Universität <1.000m
Höhere Schule <500m

Nahversorgung
Supermarkt <250m
Bäckerei <500m
Einkaufszentrum <750m

Sonstige
Geldautomat <250m
Bank <500m
Post <750m
Polizei <500m

Verkehr
Bus <250m
U-Bahn <1.000m
Straßenbahn <250m
Bahnhof <750m
Autobahnanschluss <1.500m

Angaben Entfernung Luftlinie / Quelle: OpenStreetMap
Beschreibung weiterlesen

Lage und Verkehrsanbindung

Landstraße Hauptstraße

Energieeffizienz

HWB:
31,5 kWh/(m²*a)
HWB Klasse:
B
fGEE:
0,88
fGEE Klasse:
B
Energieausweisart:
Energiebedarfs-ausweis
Gültig bis:
07.09.2027

Dokumente

Grundriss

Lageplan

1030 Wien | Wien 3., Landstraße

Lade...
Andreas Minarik

Andreas Minarik
Immobilienberater

EHL Wohnen GmbH

Lade...

Fotomix

Bild 1 Bild 2 Bild 3 Bild 4 Bild 5 Bild 6 Bild 7