NEU - 2-Zimmer Wohnung im 1.OG nähe TU-Graz zu vermieten.

Wohnung zur Miete in 8010 Graz - Gesamtmiete: 650,00 € / Objektnummer: 6522
Ausstattung: Zentralheizung
Wohnung_1
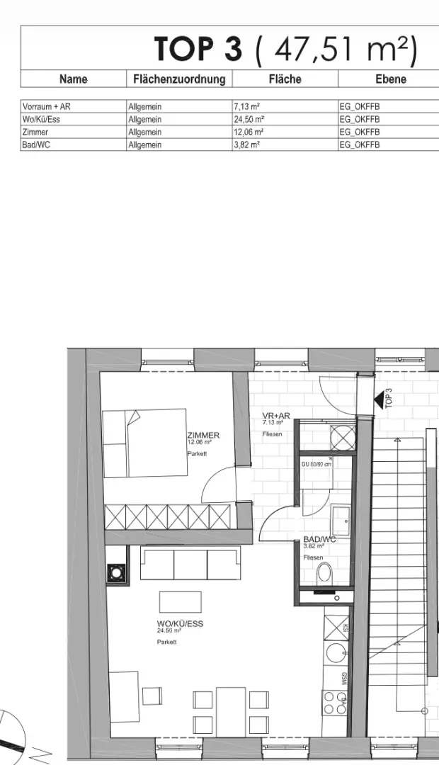
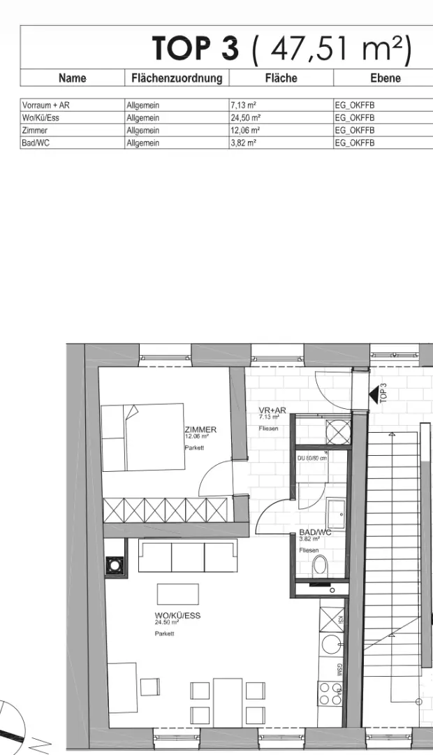
Grundriss
Wohnung_2
Wohnung_3
Wohnung_4
Wohnung_5
Wohnung_6

Preisinformationen

Gesamtmiete:
650,00 € / Monat
Kaution:
1.950,00 €

Fakten

Objektnummer:
6522
Objekttyp:
Wohnung
Wohnfläche:
48 m²
Zimmer:
2,5
Schlafzimmer:
1
Badezimmer:
1
Toilette:
1
Zustand:
Gepflegt
Verfügbarkeit:
Verfügbar

Beschreibung

Mietwohnung in Zentrumslage zu vermieten, auch ideal für Studenten.
Die Wohneinheit liegt im Erdgeschoss mit 46m² Wohnfläche, aufgeteilt in einen Wohn-Essbereich mit möblierter moderner Küche, Schlafzimmer mit Zugang auf die Innenhofterrasse, Sanitärbereich mit Dusche/WC und einen großzügigen Vorraumbereich. Bezug wäre jederzeit möglich. Die Betriebskosten sind bereits in der Miete inkludiert.
Angaben gemäß gesetzlichem Erfordernis:
Betriebskosten 160
Umsatzsteuer 0
---------------------------------
Gesamtbetrag 650
---------------------------------
Heizwärmebedarf: 98.0 kWh/(m²a)
Klasse Heizwärmebedarf: B
Beschreibung weiterlesen

Energieeffizienz

HWB:
98 kWh/(m²*a)
HWB Klasse:
B
Energieausweisart:
Energiebedarfs-ausweis
Gerhard Berg

Gerhard Berg

IMMOXX. GmbH

Lade...

Fotomix

Wohnung_1 Grundriss Wohnung_2 Wohnung_3 Wohnung_4 Wohnung_5 Wohnung_6