NEU - 2-Zimmer-Wohnung im 3. Liftstock bei der Wiedner Hauptstraße

Wohnung zur Miete in 1040 Wien - Gesamtmiete: 955,00 € / Objektnummer: 1619/8138
Ausstattung: Fahrstuhl Bad Abstellraum Etagenheizung
Hauseingang
Lageplan
Stiegenhaus

Preisinformationen

Gesamtmiete:
955,00 € / Monat
Betriebskosten netto:
173,16 € / Monat
Umsatzsteuer:
86,82 €
Kaution:
2.865,00 €
Provision:
Gemäß Erstauftraggeberprinzip bezahlt der Abgeber die Provision.

Fakten

Objektnummer:
1619/8138
Objekttyp:
Wohnung
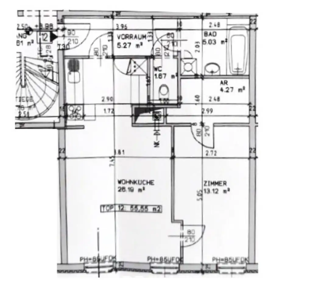
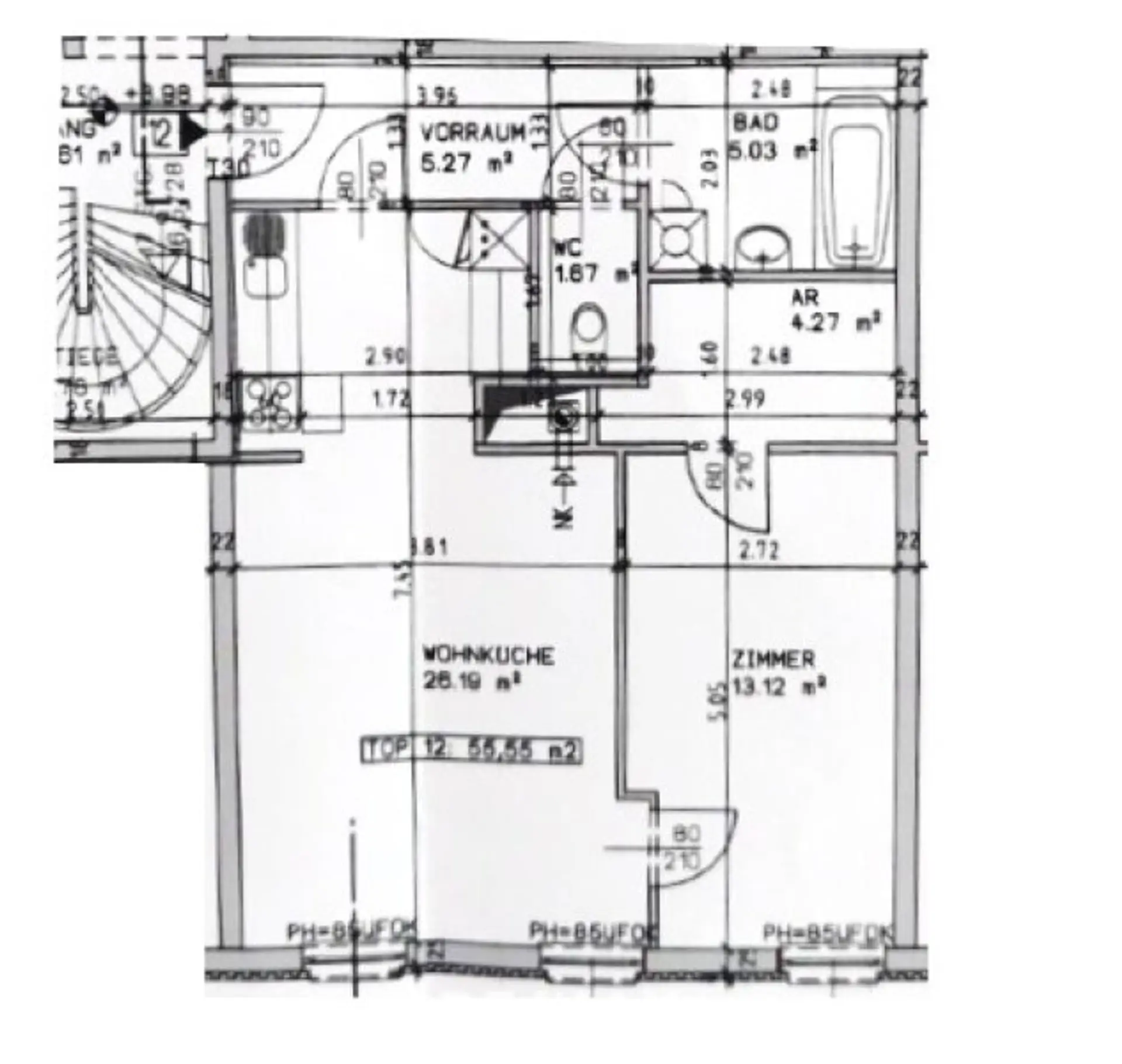
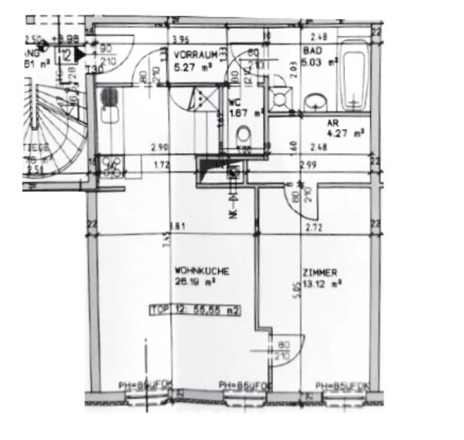
Wohnfläche:
55,5 m²
Zimmer:
2
Badezimmer:
1
Toilette:
1
Zustand:
Gepflegt
Verfügbarkeit:
Verfügbar

Beschreibung

Zur Vermietung (befristet auf 5 Jahre) gelangt diese 2-Zimmer-Wohnung auf der Wiedner Hauptstraße.

Aus dem Vorraum gelangen Sie in
- eine ca. 26 m² große Wohnküche
- das ca. 5 m² große Bad mit Badewanne und Waschmaschinenanschluss
- das separate WC
Über die Wohnküche betreten Sie ein ca. 13 m² großes Schlafzimmer mit einem anschließenden Abstellraum mit ca. 4 m².

_Highlights_
- 3. Liftstock
- Top-Lage durch Wiedner Hauptstraße

 

Bitte beachten Sie, dass seitens der Hausverwaltung einmalig eine Servicegebühr in Höhe von EUR 250,- verrechnet wird.

_Umgebung / öffentliche Anbindung_
Wiedner Hauptstraße
13A und Straßenbahnlinien 1 und 62
U1 Taubstummengasse
WLB/Badner Bahn

Wir weisen darauf hin, dass zwischen dem Vermittler und dem zu vermittelnden Dritten ein familiäres oder wirtschaftliches Naheverhältnis besteht.

Der Immobilienmakler erklärt, dass er – entgegen dem in der Immobilienwirtschaft üblichen Geschäftsgebrauch des Doppelmaklers – einseitig nur für den Vermieter tätig ist.

Infrastruktur / Entfernungen

Gesundheit
Arzt <500m
Apotheke <500m
Klinik <500m
Krankenhaus <500m

Kinder & Schulen
Schule <500m
Kindergarten <500m
Universität <500m
Höhere Schule <1.000m

Nahversorgung
Supermarkt <500m
Bäckerei <500m
Einkaufszentrum <500m

Sonstige
Geldautomat <500m
Bank <500m
Post <500m
Polizei <1.000m

Verkehr
Bus <500m
U-Bahn <500m
Straßenbahn <500m
Bahnhof <500m
Autobahnanschluss <3.000m

Angaben Entfernung Luftlinie / Quelle: OpenStreetMap
Beschreibung weiterlesen

Lage und Verkehrsanbindung

Wiedner Hauptstraße
13A und Straßenbahnlinien 1 und 62
U1 Taubstummengasse
WLB/Badner Bahn

Wiedner Hauptstraße, U1 Taubstummengasse

Energieeffizienz

HWB:
53 kWh/(m²*a)
HWB Klasse:
C
fGEE:
1,69
fGEE Klasse:
C
Energieausweisart:
Energiebedarfs-ausweis
Gültig bis:
18.10.2033

Grundriss

Lageplan

1040 Wien | Wien 4., Wieden

Lade...
Alice Prat (Team Hubert Koller)

Alice Prat (Team Hubert Koller)

RE/MAX Real Experts

Lade...

Fotomix

Bild 1 Bild 2 Bild 3 Bild 4 Bild 5 Bild 6 Bild 7 Bild 8 Bild 9 Bild 10 Hauseingang Lageplan Bild 13 Stiegenhaus Bild 15 Bild 16