NEU - 2-Zimmer-Wohnung in der Wohnanlage „Traunufer Arkade“

Wohnung zur Miete in 4600 Wels - Gesamtmiete: 1.099,00 € / Objektnummer: 181
Ausstattung: Fahrstuhl Garage Parkplatz Zentralheizung Balkon
Ausblick
Balkon
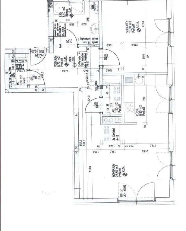
Grundriss
Kellerabteil
Tiefgarage
Garagenabteil

Preisinformationen

Gesamtmiete:
1.099,00 € / Monat
Betriebskosten netto:
180,89 € / Monat
Heizkosten netto:
31,44 €
Umsatzsteuer:
109,16 €
Kaution:
3.800,00 €

Fakten

Objektnummer:
181
Objekttyp:
Wohnung
Balkon:
1
Wohnfläche:
64,15 m²
Zimmer:
2
Badezimmer:
1
Toilette:
1
Verfügbarkeit:
Verfügbar

Beschreibung

Diese schöne und optimal aufgeteilte 2-Zimmer-Wohnung befindet sich in der Wohnanlage „Traunufer Arkade“ in Thalheim – in attraktiver Lage direkt am Traunufer.

Die Wohnung ist derzeit noch bewohnt bzw. vermietet, kann jedoch nach vorheriger Terminvereinbarung gerne besichtigt werden. Die Möbel sind nicht Bestandteil der Wohnung!

Bitte beachten Sie, dass sich die Akontobeträge für Betriebs- und Heizkosten zum Jahreswechsel ändern können.

Gesamtmiete inklusive Tiefgaragenstellplatz:
€ 1.099,00 pro Monat

Einmalige Kosten:
€ 360,00 für die Mietvertragserstellung

Bei Interesse kontaktieren Sie uns gerne zur Vereinbarung eines Besichtigungstermins.
Angaben gemäß gesetzlichem Erfordernis:
Miete 738,63 zzgl 10% USt.
Betriebskosten 149,45 zzgl 10% USt.
Heizkosten 31,44 zzgl 20% USt.
Autoabstellplatz 70,32 zzgl 20% USt.
Umsatzsteuer 109,16
---------------------------------
Gesamtbetrag 1099
Beschreibung weiterlesen

Energieeffizienz

HWB:
73 kWh/(m²*a)
Energieausweisart:
Energiebedarfs-ausweis
Julia Kammerstätter

Julia Kammerstätter

Consulting Company Immobilien GmbH

Anrufen
Lade...

Fotomix

Bild 1 Bild 2 Bild 3 Ausblick Balkon Grundriss Bild 7 Bild 8 Bild 9 Bild 10 Bild 11 Bild 12 Kellerabteil Tiefgarage Garagenabteil