NEU - 2-Zimmer-Wohnung mit attraktivem Gestaltungspotenzial - NÄHE AUGARTEN

Wohnung zum Kauf in 1200 Wien - Kaufpreis: 219.000 € / Objektnummer: 468
Ausstattung: Boden Bad Etagenheizung
Wohnbereich
Hausansicht
Hauseingang
Vorzimmer und Küche
Vorzimmer und Küche
Wohnbereich
Zimmer
Zimmer
Bad
Eingangstür
Detail
Hauseingang
Fassade Innenhof
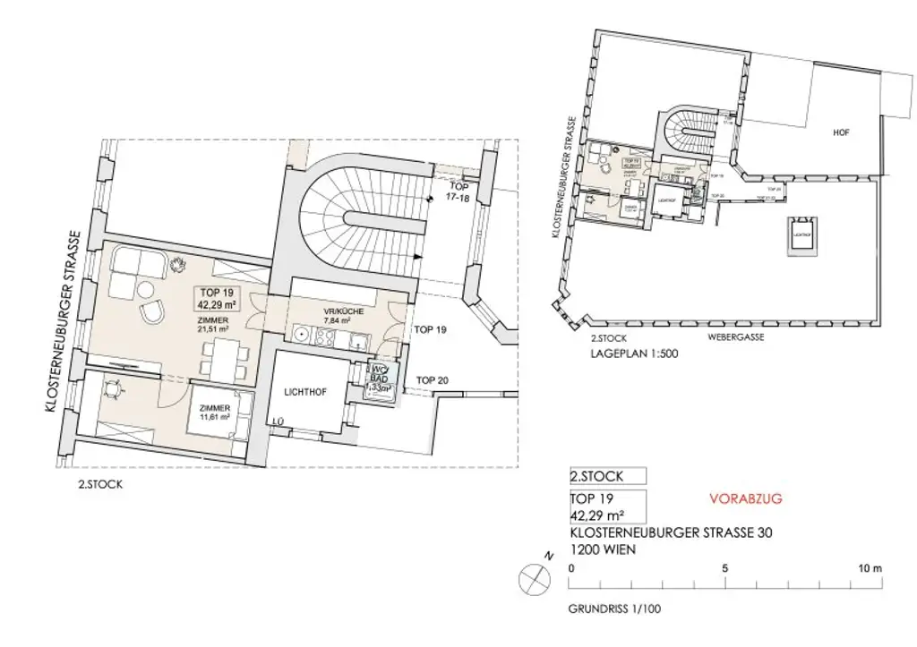
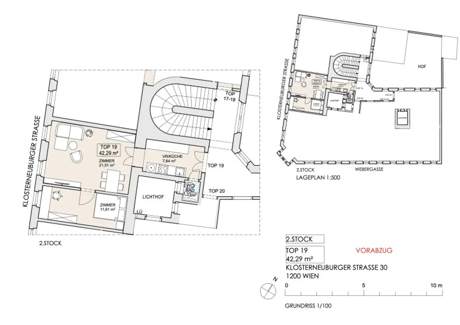
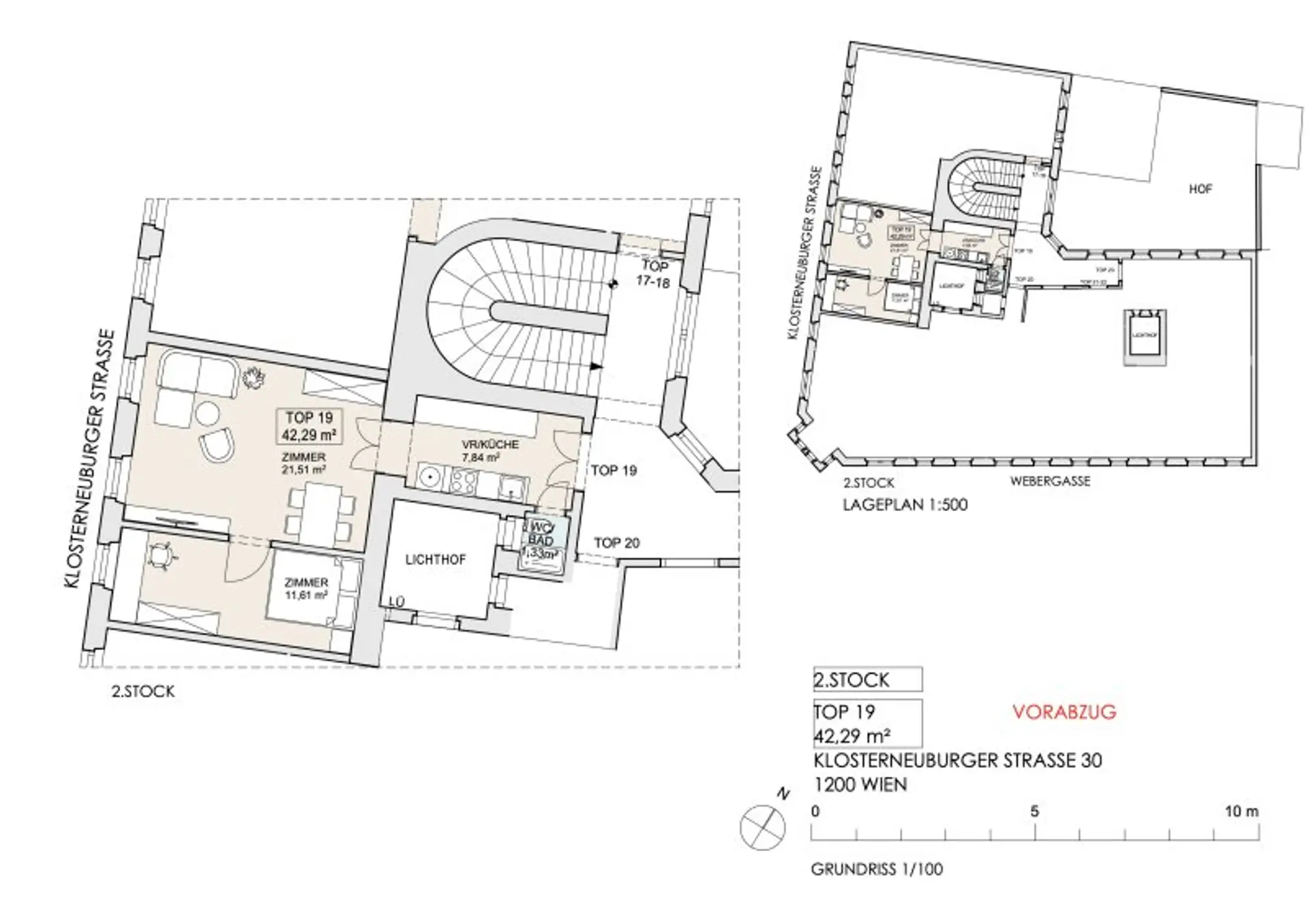
Grundriss

Preisinformationen

Kaufpreis:
219.000 €
Betriebskosten netto:
88,47 € / Monat
Vermittlungsprovision:
Ja
Provision:
2,5% des Kaufpreises zzgl. 20% USt.

Fakten

Objektnummer:
468
Objekttyp:
Wohnung
Wohnfläche:
42,29 m²
Zimmer:
2
Badezimmer:
1
Toilette:
1
Stockwerk:
2
Baujahr:
1900
Altbau:
Ja
Zustand:
Sanierungsbedürftig
Verfügbarkeit:
Verfügbar

Beschreibung

Diese ca. 42 m² große 2-Zimmer-Wohnung befindet sich im 2. Obergeschoss eines sehr gepflegten Altbaus in einer attraktiven Eckliegenschaft im 20. Bezirk. Die Wohnung wird im sanierungsbedürftigen Zustand verkauft und bietet damit viel Gestaltungspotenzial für Eigennutzer oder Käufer mit kreativem Blick. Die Lage punktet durch die unmittelbare Nähe zum Augarten und zum Donaukanal, zwei der beliebtesten Erholungs- und Freizeitbereiche der Umgebung.

Der optimale Grundriss sorgt für eine klare Raumaufteilung: Beim Betreten gelangt man direkt in die praktische Küche, von der aus sowohl das kleine Badezimmer als auch der großzügige Wohnraum mit etwa 21 m² erreichbar sind. Von hier führt eine Tür in das angrenzende Zimmer, das mit knapp 12 m² ideal als Schlafzimmer genutzt werden kann.

Besonders hervorzuheben ist die schöne Altbautür, die dem Eingangsbereich zusätzlichen Charme verleiht und das typische Flair eines klassischen Wiener Altbaus unterstreicht.

Zusätzlicher Pluspunkt: Der Verkäufer verpflichtet sich vertraglich, einen Lift bis spätestens 2028 auf seine Kosten zu errichten.

 

Die Wohnung bietet eine ideale Grundlage, um mit etwas Sanierungsaufwand ein persönliches und stimmiges Zuhause in einer begehrten Lage nahe Augarten, Donaukanal und Wallensteinplatz zu schaffen und eignet sich perfekt für Singles, Paare oder als stilvolle Stadtwohnung mit hervorragender Anbindung an das Stadtzentrum sowie die Naherholungsgebiete entlang des Donaukanals.

Die gesetzliche Rücklage beläuft sich auf ca. € 44,83 monatlich.

_Für Fragen und Terminvereinbarung steht Ihnen Frau Laura Rakoczi-Spallek jederzeit gerne unter 06 [tel:06608294740]60/1219705 [tel:00436601219705] oder unter ls@alvarea.com zur Verfügung!_

_Wir freuen uns auf Ihre Anfrage._

Wir weisen darauf hin, dass zwischen dem Vermittler und dem zu vermittelnden Dritten ein familiäres oder wirtschaftliches Naheverhältnis besteht.

Der Vermittler ist als Doppelmakler tätig.
Beschreibung weiterlesen

Lage und Verkehrsanbindung

Die Wohnung befindet sich in einer Eckliegenschaft an der Klosterneuburger Straße/Webergasse im 20. Bezirk – nur 5 Gehminuten vom Donaukanal und dem Augarten entfernt, die beide ideale Erholungs- und Freizeitmöglichkeiten bieten.

Die öffentliche Verkehrsanbindung ist ausgezeichnet: Die U4-Station „Friedensbrücke“ ist in 5 Minuten zu Fuß erreichbar und ermöglicht eine schnelle Verbindung ins Stadtzentrum. Zudem befinden sich die Straßenbahnlinien 5, 31, 33, O sowie der Bus 5B in unmittelbarer Nähe. Der Franz-Josefs-Bahnhof liegt nur 10 Gehminuten entfernt und bietet zusätzliche Zugverbindungen.

Diese Lage kombiniert urbanes Leben mit grüner Erholung und bietet eine perfekte Infrastruktur für alle Bedürfnisse.

Augarten, Donaukanal

Energieeffizienz

HWB:
120,8 kWh/(m²*a)
HWB Klasse:
D
fGEE:
3,76
fGEE Klasse:
F
Energieausweisart:
Energiebedarfs-ausweis
Gültig bis:
11.03.2029

Grundriss

Lageplan

1200 Wien | Wien 20., Brigittenau

Lade...
Laura Rákóczi-Spallek

Laura Rákóczi-Spallek

ALVAREA Immobilien GmbH

Lade...

Fotomix

Wohnbereich Hausansicht Hauseingang Vorzimmer und Küche Vorzimmer und Küche Wohnbereich Zimmer Zimmer Bad Eingangstür Detail Hauseingang Fassade Innenhof