NEU - 2-Zimmer-Wohnung mit Balkon und Dachterrasse

Wohnung zur Miete in 1220 Wien - Gesamtmiete: 743,14 € / Objektnummer: 1619/8130
Ausstattung: Fahrstuhl Klimaanlage Zentralheizung Balkon Terrasse
Balkon
Balkon
Dachterrasse
Wohnzimmer
Wohnzimmer
Wohnzimmer
Schlafzimmer
Schlafzimmer
Bad / WC
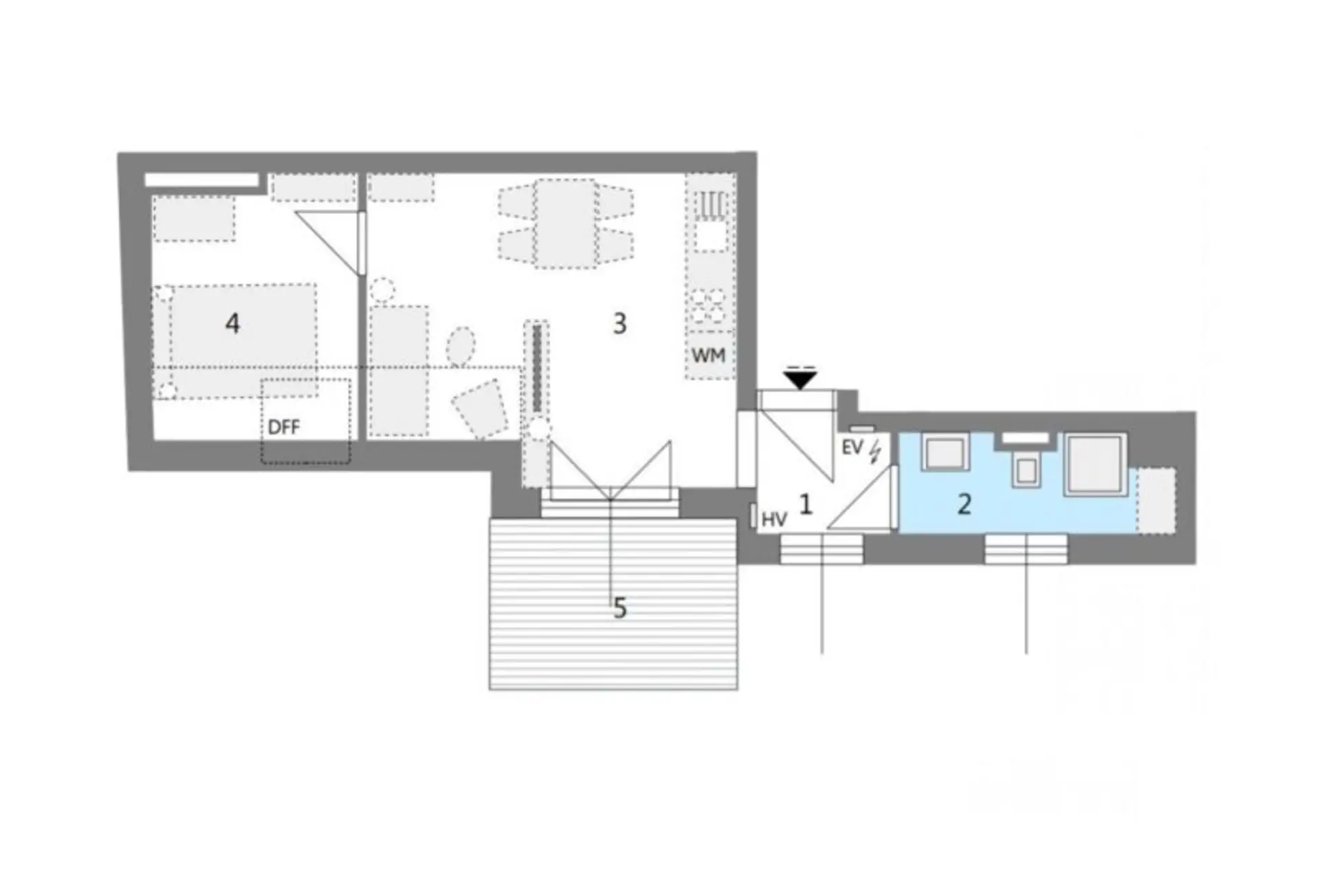
Grundriss

Preisinformationen

Gesamtmiete:
743,14 € / Monat
Betriebskosten netto:
85,80 € / Monat
Umsatzsteuer:
8,58 €
Preisinfos:
Gesamt-Vorschreibung inkl. Heizkosten- und Warwasserakonto: EUR 780,-
Kaution:
2.300,00 €
Provision:
Gemäß Erstauftraggeberprinzip bezahlt der Abgeber die Provision.

Fakten

Objektnummer:
1619/8130
Objekttyp:
Wohnung
Balkon:
1
Terrasse:
1
Balkonfläche:
7 m²
Wohnfläche:
35 m²
Zimmer:
2
Badezimmer:
1
Toilette:
1
Baujahr:
2020
Zustand:
Neuwertig
Verfügbarkeit:
Verfügbar

Beschreibung

Zur Vermietung (befristet auf 5 Jahre) gelangt diese sehr schöne 2-Zimmer-Wohnung mit Balkon im 2. Dachgeschoß und dazugehöriger Dachterrasse eines 2020 erbauten Gebäudes.

Rundgang:
Aus dem Vorraum gelangen Sie in die rechterhand in die Wohnküche mit Ausgang auf den Balkon.
Diese bietet genügend Platz für einen Sitzbereich.
Aus der Wohnküche kommen Sie in das Schlafzimmer.
Das Bad mit Dusche und WC kann man direkt aus dem Vorraum betreten.
Über das Stiegenhaus gelangen Sie auch noch auf die Dachterrasse, die einen tollen Ausblick bietet.

Die Highlights auf einen Blick:
- Balkon ca. 7 m²
- Dachterrasse ca. 12 m²
- Klimaanlage vorhanden
- Neubau 2020
- sehr gute öffentliche Anbindung (U1 Kagraner Platz, Straßenbahnlinie 26, Autobuslinien 22A, 24A)

Heiz- und Warmwasserkosten
Mit der monatlichen Miete wird auch noch ein Heizkostenakonto in Höhe von EUR 30,42 und ein Warwasserakonto von EUR 6,44 vorgeschrieben.
Die Miete inkl. Heizkosten-Akonto beträgt EUR 780,-.

 

Wir weisen darauf hin, dass zwischen dem Vermittler und dem zu vermittelnden Dritten ein familiäres oder wirtschaftliches Naheverhältnis besteht.

Der Immobilienmakler erklärt, dass er – entgegen dem in der Immobilienwirtschaft üblichen Geschäftsgebrauch des Doppelmaklers – einseitig nur für den Vermieter tätig ist.

Infrastruktur / Entfernungen

Gesundheit
Arzt <500m
Apotheke <500m
Klinik <2.000m
Krankenhaus <3.500m

Kinder & Schulen
Schule <500m
Kindergarten <500m
Universität <2.000m
Höhere Schule <1.000m

Nahversorgung
Supermarkt <500m
Bäckerei <1.000m
Einkaufszentrum <1.000m

Sonstige
Geldautomat <1.000m
Bank <1.000m
Post <1.000m
Polizei <1.500m

Verkehr
Bus <500m
U-Bahn <1.000m
Straßenbahn <500m
Bahnhof <1.000m
Autobahnanschluss <1.000m

Angaben Entfernung Luftlinie / Quelle: OpenStreetMap
Beschreibung weiterlesen

Lage und Verkehrsanbindung

U1 Kagraner Platz ca. 800m entfernt, mit 22A, 24A oder Straßenbahn 26 in ca. 6-7min. erreichbar
sämtliche Geschäfte des täglichen Bedarfs in der Umgebung
Gewerbepark Stadlau mit der Straßenbahn 26 in ca. 6-7min. erreichbar
Gewerbepark Kagran mit dem Autobus 24A in ca. 6-7min. erreichbar
sehr gute Anbindung ans Radverkehrsnetz
Donauzentrum / Kagran
Blumengärten Hirschstetten
Hirschstettner Badeteich

Kagraner Platz, Kraygasse, U1

Energieeffizienz

HWB:
17,63 kWh/(m²*a)
HWB Klasse:
A
fGEE Klasse:
A+
Energieausweisart:
Energiebedarfs-ausweis

Grundriss

Lageplan

1220 Wien | Wien 22., Donaustadt

Lade...
Alice Prat (Team Hubert Koller)

Alice Prat (Team Hubert Koller)

RE/MAX Real Experts Immobilien lifetime GmbH

Lade...

Fotomix

Balkon Balkon Dachterrasse Wohnzimmer Wohnzimmer Wohnzimmer Schlafzimmer Schlafzimmer Bad / WC