NEU - 2-Zimmer-Wohnung mit beeindruckender 24 m² Dachterrasse!

Wohnung zum Kauf in 1220 Wien - Kaufpreis: 349.000 € / Objektnummer: 25/12637
Ausstattung: Boden Fahrstuhl Bad Klimaanlage Fahrradraum Fußbodenheizung Terrasse
Gebäude
Gebäude
Gebäude
Eingangsbereich
Abstellraum
Flur
Terrasse
Terrasse
Terrasse
Flur
Badezimmer
Badezimmer
Terrasse
Terrasse
Flur
Schlafzimmer
Schlafzimmer
Wohnküche
Wohnküche
Wohnküche
Wohnküche
Dachgeschoss
Dachgeschoss
Gebäude
Gebäude
Gebäude
Gebäude
Gebäude
Gebäude
Gebäude
Energieskala

Preisinformationen

Kaufpreis:
349.000 €
Preisinfos:
349.000

Fakten

Objektnummer:
25/12637
Objekttyp:
Wohnung
Terrasse:
1
Wohnfläche:
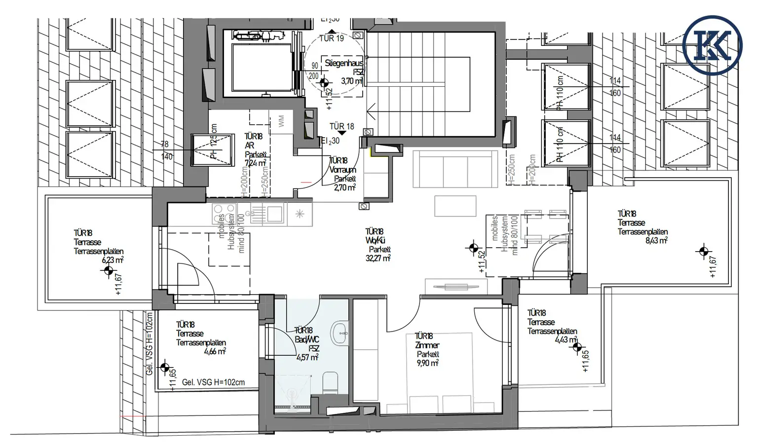
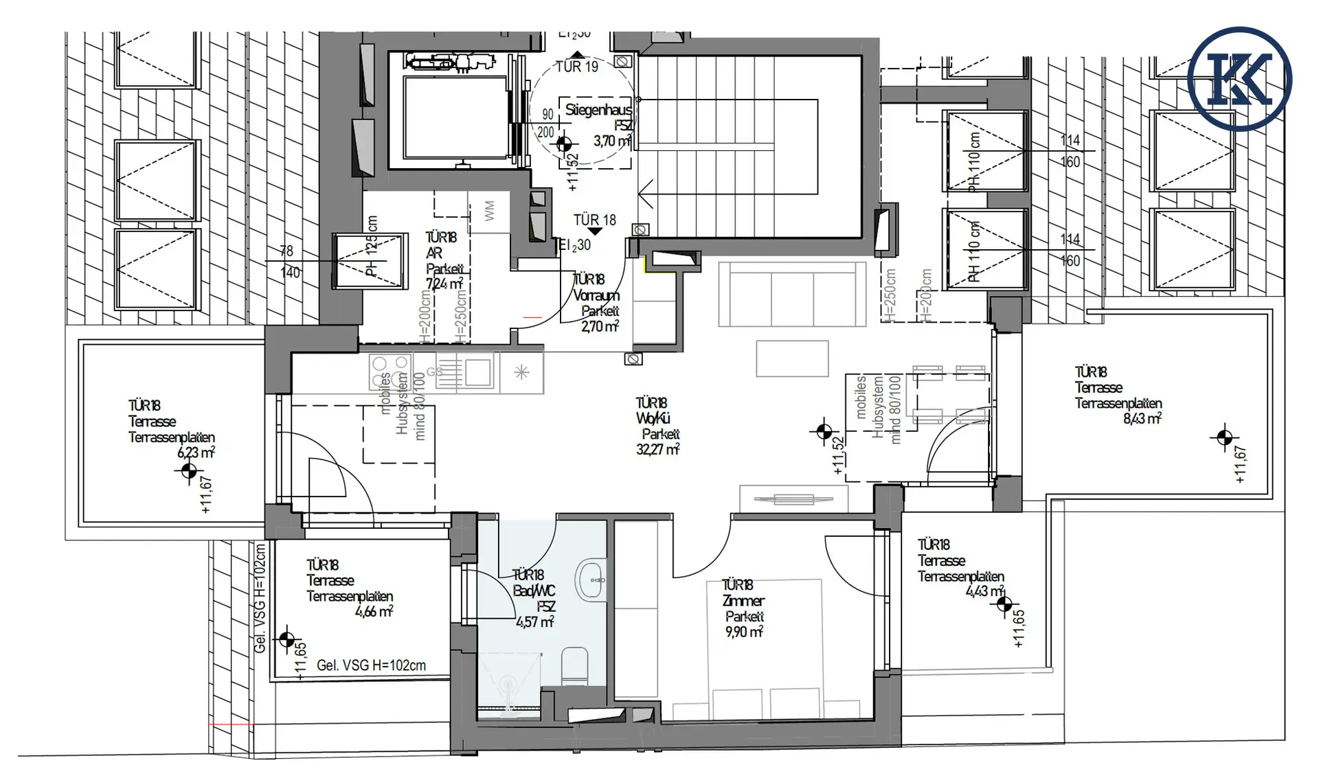
56,68 m²
Zimmer:
2
Schlafzimmer:
1
Badezimmer:
1
Baujahr:
2025
Zustand:
Erstbezug
Verfügbarkeit:
Verfügbar

Beschreibung

Diese Wohnung ist das Kronjuwel der Dachgeschosseinheiten: Sie bietet im 2. Dachgeschoss ein unvergleichliches Wohngefühl. Die Wohnfläche beträgt 56,68 m², doch das wahre Erlebnis ist die sensationelle, 23,75 m² große Dachterrasse. Diese riesige Freifläche bietet maximale Privatsphäre, Platz für große Gartenmöbel und einen fantastischen Blick – echtes Penthouse-Feeling inklusive! Der Grundriss ist optimal auf zwei Zimmer ausgelegt und maximiert die Lichtausbeute. Zur Premium-Ausstattung im Neubau gehören eine energiesparende Fußbodenheizung und eine Klimavorbereitung. Durch die Lage im obersten Geschoss und die exklusive Terrassengröße ist diese Immobilie ein einzigartiges Angebot in Eßling. Sichern Sie sich diesen außergewöhnlichen Erstbezug ab Anfang Februar 2026.
Beschreibung weiterlesen

Lage und Verkehrsanbindung

Die Wohnung in Essling bietet Familien eine idyllische Umgebung, umgeben von grünen Bereichen und ideal für Naturliebhaber. Die Anlage ist von Einfamilienhäusern umgeben und bietet ein angenehmes Klientel. In der Nähe gibt es eine Vielzahl von Annehmlichkeiten, die für Familien besonders nützlich sind.

In wenigen Minuten erreicht man Bäckereien, Supermärkte und Restaurants, die eine große Auswahl an Lebensmitteln und Mahlzeiten bieten. Für Familien mit Kindern gibt es in der Nähe Kinderbetreuungseinrichtungen, Schulen und Ärzte für Allgemeinmedizin. Zahnärzte und Apotheken sind ebenfalls in der Nähe.

Öffentliche Verkehrsmittel wie Busse, U-Bahnen und Straßenbahnen erleichtern es, von einem Ort zum anderen zu gelangen. Mit all diesen Annehmlichkeiten in der Nähe kann die Wohnung in Essling ein idealer Ort für Familien sein, die Natur, Ruhe und eine gute Anbindung an

Bäckerei

•Othmar Müller GmbH (470 m)
•Robert Fibi KG (1,92 km)
•Karl Riederich Gesellschaft (1,65 km)

Supermarkt
•Lidl (290 m)
•Spar (290 m)
•Billa (850 m)

Restaurant
•Pozi's (340 m)
•Queen Eßling (390 m)
•Yu Yu (500 m)

Fast Food / Snack
•My Kebapizza (480 m)
•McDonald's (800 m)
•See Crepes (1,5 km)

Kinderbetreuung
•Kindergarten Eßlinger Hauptstraße 77 (520 m)
•Kindergarten Eßlinger Hauptstraße 79 (550 m)
•Kindergarten Großerweg 8 (830 m)

Volksschule
•VS Viktor-Wittner-Gasse (340 m)
•VS Eßlinger Hauptstraße (860 m)
•VS Hannah-Arendt Platz (1,4 km)

Ärzte für Allgemeinmedizin
•Dr. Reza Valipour (690 m)
•Dr. Sepideh Khalilzadeh Moghaddam (690 m)
•Dr. Judit Esther Balogh (700 m)

Zahnärzte
•Dr. Bamer Johannes (610 m)
•Dr. Schiedlbauer Andreas (920 m)
•DDr. Schmuth Thomas (1,7 km)

Apotheken
•Auwald-Apotheke (270 m)
•Raphael-Donner-Apotheke (700 m)
•Seestadt Apotheke (1,6 km)

Öffentliche Nahversorger

• Bus - 98A, 88A, 88B
• U-Bahn - U2 Seestadt, Aspern Nord
• Straßenbahn - 25 (Aspern)

Energieeffizienz

HWB:
40,2 kWh/(m²*a)
HWB Klasse:
B
fGEE:
0,7
fGEE Klasse:
A+
Gebäudeart:
listing.status.epcBuildingType_wohn
Ausstellung:
ab dem 1.5.2014
Gültig bis:
09.03.2032

Lageplan

1220 Wien | Wien 22., Donaustadt

Lade...
Katharina Klasan

Katharina Klasan

KLASAN & Partner Immobilien GmbH & Co KG

Virtuelle Tour

Anrufen
Lade...

Fotomix

Gebäude Gebäude Gebäude Eingangsbereich Abstellraum Flur Terrasse Terrasse Terrasse Flur Badezimmer Badezimmer Terrasse Terrasse Flur Schlafzimmer Schlafzimmer Wohnküche Wohnküche Wohnküche Wohnküche Dachgeschoss Dachgeschoss Gebäude Gebäude Gebäude Gebäude Gebäude Gebäude Gebäude Energieskala