NEU - 2-Zimmer-Wohnung mit Eigengarten und Terrasse!

Wohnung zur Miete in 1210 Wien - Gesamtmiete: 1.129,00 € / Objektnummer: 91473
Ausstattung: Boden Fahrstuhl Wohnküche / offene Küche Bad Fußbodenheizung Terrasse Garten
Hausansicht

Preisinformationen

Gesamtmiete:
1.129,00 € / Monat
Betriebskosten netto:
149,60 € / Monat
Umsatzsteuer:
102,64 €
Kaution:
3.387,00 €
Provision:
Gemäß Erstauftraggeberprinzip bezahlt der Abgeber die Provision.

Fakten

Objektnummer:
91473
Objekttyp:
Wohnung
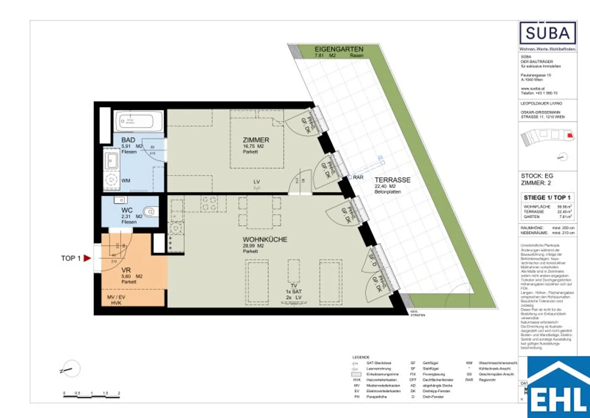
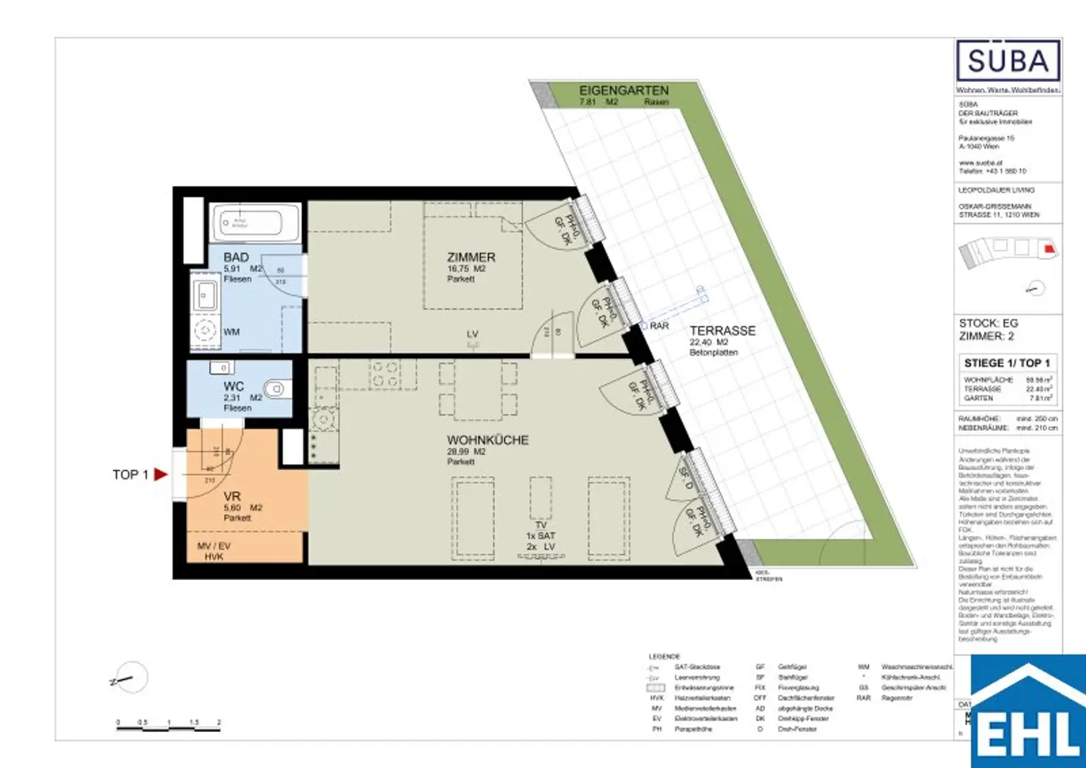
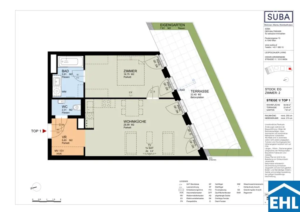
Terrasse:
1
Wohnfläche:
59,56 m²
Gartenfläche:
7,81 m²
Zimmer:
2
Badezimmer:
1
Toilette:
1
Neubau:
Ja
Zustand:
Gepflegt
Verfügbarkeit:
Verfügbar

Beschreibung

2-Zimmer-Wohnung mit Eigengarten und Terrasse!
Diese optimal geschnittene 2-Zimmerwohnung liegt im Erdgeschoss und unterteilt sich in ein geräumiges Wohnzimmer mit Küchenzeile, ein separat begehbares Schlafzimmer, ein Badezimmer mit Wanne und Waschmaschinenanschluss, ein separates WC, sowie einen Vorraum. Zudem verfügt die Wohnung über südseitigen Eigengarten mit großer Terrasse!

Bei den Fotos handelt es sich um Musterfotos!

Die Wohnung ist wie folgt ausgestattet:

* Vollausgestattete EWE Einbauküche mit Markengeräten
* Badezimmer mit Wanne und Waschmaschinenanschluss 
* Eichenparkettboden in allen Wohnräumen
* Mit Feinsteinzeug ausgestattete Sanitärräume
* Videogegensprechanlage

Das Haus verfügt über:

* Tiefgaragenplätze
* Kinderwagen- und Fahrradabstellraum
* Kellerabteile
* Personenaufzug

Das Projekt und die Lage:
Die Lage des Wohnhauses Oskar-Grissemann-Straße 11 besticht vor allem durch seine Vielfältigkeit. Neben Geschäften des täglichen Bedarfs und einer optimales Infrastruktur befindet sich auch der Karl-Seidl-Park, sowie der Theresa-Tauscher-Park in unmittelbarer Nähe. In nur 20 Minuten erreicht man das Erholungs- und Freizeitgebiet Alte Donau und in 15 Minuten das Donauzentrum und das Citygate. 

Öffentliche Verkehrsanbindung

* U1 Aderklaaer Straße, Rennbahnweg
* Buslinie 27A, 29A, 31A

Heizung und Warmwasser werden nach Verbrauch gerechnet.

zzgl. Kaltwasser 20,35 EUR netto + USt. 2,04 EUR = 22,39 brutto
zzgl. Heizung 56,72 EUR netto + USt. 11,34 EUR = 68,06 brutto
zzgl. Warmwasser 42,27 EUR netto + USt. 8,45 EUR = 50,72 brutto

Befristung: 5 Jahre, 1 Jahr Kündigungsverzicht, 3 Monate Kündigungsfrist

Nebenkosten
3 BMM Kaution, Vertragserrichtungsgebühr

Wir weisen darauf hin, dass zwischen dem Vermittler und dem zu vermittelnden Dritten ein familiäres oder wirtschaftliches Naheverhältnis besteht.

Der Immobilienmakler erklärt, dass er – entgegen dem in der Immobilienwirtschaft üblichen Geschäftsgebrauch des Doppelmaklers – einseitig nur für den Vermieter tätig ist.

Infrastruktur / Entfernungen

Gesundheit
Arzt <250m
Apotheke <250m
Klinik <2.750m
Krankenhaus <2.500m

Kinder & Schulen
Schule <500m
Kindergarten <250m
Universität <1.000m
Höhere Schule <1.500m

Nahversorgung
Supermarkt <250m
Bäckerei <500m
Einkaufszentrum <1.250m

Sonstige
Geldautomat <1.000m
Bank <1.250m
Post <250m
Polizei <1.250m

Verkehr
Bus <250m
U-Bahn <1.000m
Straßenbahn <1.500m
Bahnhof <1.000m
Autobahnanschluss <2.750m

Angaben Entfernung Luftlinie / Quelle: OpenStreetMap
Beschreibung weiterlesen

Lage und Verkehrsanbindung

U1 Aderklaaer Straße

Energieeffizienz

HWB:
29,8 kWh/(m²*a)
HWB Klasse:
B
fGEE:
0,77
fGEE Klasse:
A
Energieausweisart:
Energiebedarfs-ausweis
Gültig bis:
16.02.2028

Dokumente

Grundriss

Lageplan

1210 Wien | Wien 21., Floridsdorf

Lade...
Helena Rohrauer

Helena Rohrauer

EHL Wohnen GmbH

Lade...

Fotomix

Bild 1 Bild 2 Bild 3 Bild 4 Hausansicht