NEU - 2-Zimmer-Wohnung mit guter Infrastruktur und 2 Parkplätzen in Bärnbach

Wohnung zur Miete in 8572 Bärnbach - Gesamtmiete: 675,66 € / Objektnummer: 1793
Ausstattung: Kabel/Satelliten-TV Parkplatz Außenparkplatz Zentralheizung
Wohn- und Essbereich
Küche
Wohn- und Essbereich1
Schlafzimmer
Bad
WC
Flur
Kellerabteil außen
Kellerabteil innen
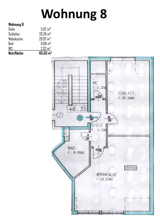
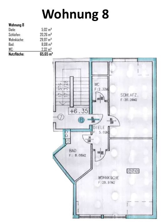
Grundrissplan

Preisinformationen

Gesamtmiete:
675,66 € / Monat
Betriebskosten netto:
240,00 € / Monat
Heizkosten netto:
70,00 €
Umsatzsteuer:
68,79 €
Kaution:
2.026,98 €

Fakten

Objektnummer:
1793
Objekttyp:
Wohnung
Wohnfläche:
65,65 m²
Zimmer:
2
Schlafzimmer:
1
Badezimmer:
1
Toilette:
1
Stockwerk:
2
Baujahr:
1969
Zustand:
Gepflegt
Verfügbarkeit:
Verfügbar

Beschreibung

2-Zimmer-Dachgeschosswohnung mit guter Infrastruktur und 2 Parkplätzen in Bärnbach

Diese 2-Zimmer-Mietwohnung im Dachgeschoss bietet ca. 65 m² Wohnfläche und eine praktische Aufteilung für Singles oder Paare. Die Lage überzeugt durch kurze Wege zu Einkaufsmöglichkeiten, Kindergarten, Gastronomie und weiteren Einrichtungen des täglichen Bedarfs.

Raumaufteilung
• Wohn- und Essbereich mit integriertem Küchenbereich
• Schlafzimmer
• Großzügiges Badezimmer mit Badewanne
• Separates WC
• Kellerabteil und gemeinschaftlicher Trockenraum

Besonderheiten
• 2 Parkplätze direkt gegenüber dem Haus
• Gute Infrastruktur in fußläufiger Entfernung
• Gepflegtes Wohnhaus mit nur 9 Wohneinheiten

Lage

Die Wohnung liegt in einem ruhigen Wohnumfeld nahe dem Zentrum von Bärnbach. Kinderbetreuung, Einkauf, Gastronomie, Freizeitangebote sowie öffentliche Verkehrsmittel sind in rund 10 Gehminuten erreichbar. Eine ideale Kombination aus ruhigem Wohnen und guter Erreichbarkeit.
Angaben gemäß gesetzlichem Erfordernis:
Miete 366,87 zzgl 10% USt.
Betriebskosten 119 zzgl 10% USt.
Heizkosten 70 zzgl 20% USt.
Kanal 40 zzgl 10% USt.
Autoabstellplatz 11 zzgl 20% USt.
Umsatzsteuer 68,79
---------------------------------
Gesamtbetrag 675,66
---------------------------------
Heizwärmebedarf: 79.9 kWh/(m²a)
Klasse Heizwärmebedarf: C
Faktor Gesamtenergieeffizienz: 1.19
Klasse Faktor Gesamtenergieeffizienz: C

RE/MAX More – Ihr Immobilienbüro in der Weststeiermark

Wir begleiten Sie beim Kauf, Verkauf und der Vermietung von Immobilien.
Als Teil des größten Immobiliennetzwerks RE/MAX verbinden wir internationale Reichweite mit regionaler Marktkenntnis in Voitsberg und Umgebung.

Kontakt:
RE/MAX More | Conrad-von-Hötzendorf-Straße 16, 8570 Voitsberg
Tel.: +43 3142 28 0 20 | office@remax-more.at

Impressum:
Mollismerx GmbH, Tobisegg 42, 8503 St. Josef
FN 655412 t | LG ZRS Graz | UID: ATU82208308
Geschäftsführung: Roberto Deutschmann

Hinweis: Jedes RE/MAX-Büro ist rechtlich und wirtschaftlich eigenständig.
Alle Angaben ohne Gewähr. Irrtümer vorbehalten.
Datenschutz: https://www.remax.at/datenschutz
Beschreibung weiterlesen

Energieeffizienz

HWB:
79,9 kWh/(m²*a)
HWB Klasse:
C
fGEE:
1,19
fGEE Klasse:
C
Energieausweisart:
Energiebedarfs-ausweis

Dokumente

Lageplan

8572 Bärnbach | Voitsberg

Lade...
Tamara Terschan-Ganotz

Tamara Terschan-Ganotz

RE/MAX More

Anrufen
Lade...

Fotomix

Wohn- und Essbereich Küche Wohn- und Essbereich1 Schlafzimmer Bad WC Flur Kellerabteil außen Kellerabteil innen Grundrissplan