NEU - 2 Zimmer Wohnung mit Loggia im 7. Stock ab MÄRZ 2026

Wohnung zur Miete in 1220 Wien - Gesamtmiete: 899,10 € / Objektnummer: 3937
Ausstattung: Rollstuhlgerecht Boden Fahrstuhl Wohnküche / offene Küche Bad Kabel/Satelliten-TV Klimaanlage Fahrradraum Fußbodenheizung Loggia
ZHS22_66

Preisinformationen

Gesamtmiete:
899,10 € / Monat
Betriebskosten netto:
88,36 € / Monat
Umsatzsteuer:
81,74 €
Kaution:
2.700,00 €
Provision:
Gemäß Erstauftraggeberprinzip bezahlt der Abgeber die Provision.

Fakten

Objektnummer:
3937
Objekttyp:
Wohnung
Loggia:
1
Keller Fläche:
3 m²
Wohnfläche:
46,28 m²
Loggia Fläche:
5,03 m²
Zimmer:
2
Badezimmer:
1
Toilette:
1
Stockwerk:
7
Baujahr:
2022
Neubau:
Ja
Zustand:
Neuwertig
Verfügbarkeit:
Verfügbar

Beschreibung

2-ZIMMER-WOHNUNG MIT LOGGIA AUF 10 JAHRE MIT OPTION AUF VERLÄNGERUNG!

 

Die Wohnhausanlage befindet sich im 22. Wiener Bezirk, nahe dem Hirschstettner Badeteich und den Blumengärten Hirschstetten.

Die ca. 46 m² große Wohnung plus 5 m² Freifläche (Loggia), sucht einen neuen Nachmieter ab März! 

 

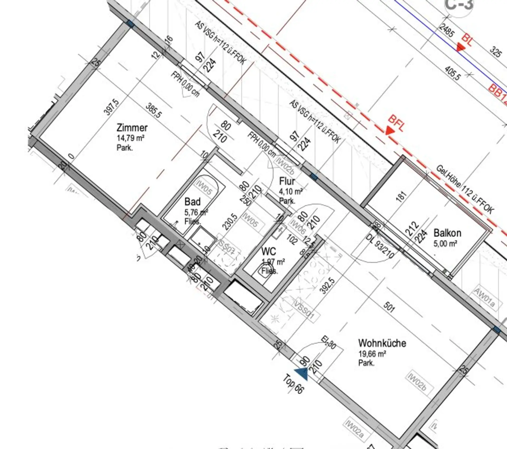
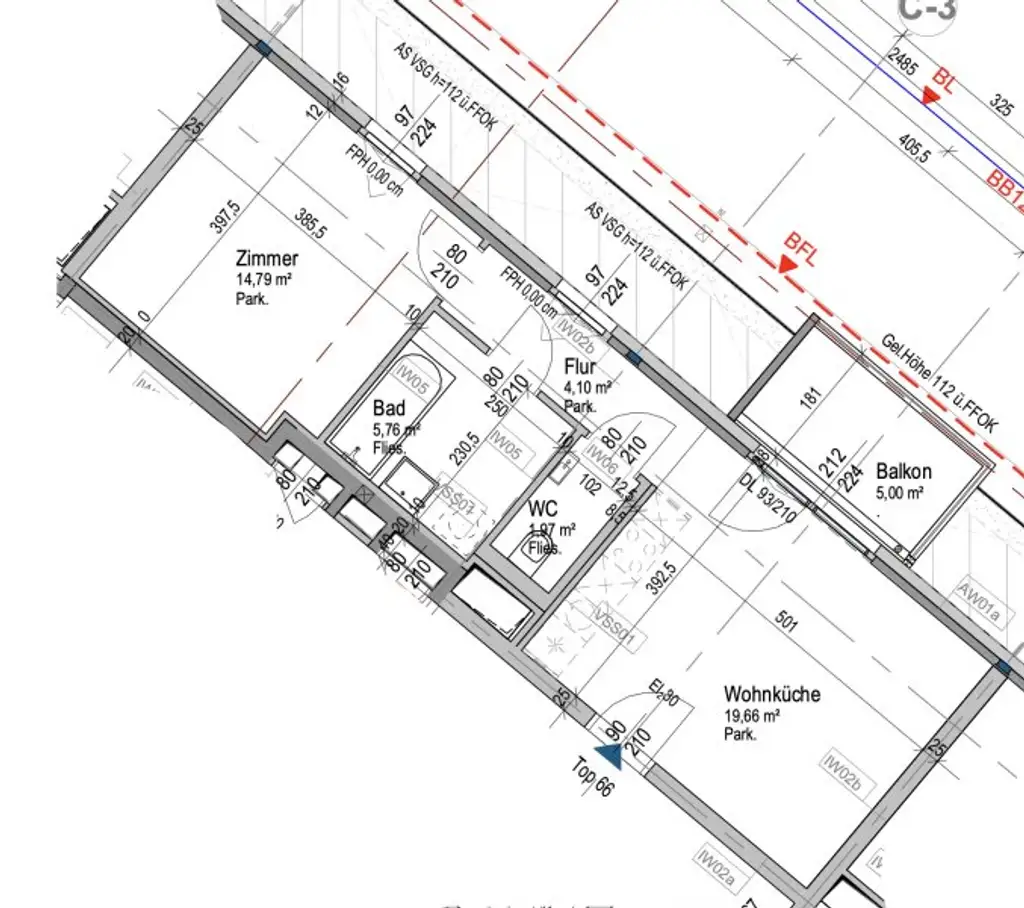
Beim Betreten der Wohnung gelangen Sie durch die Eingangstür in einen einladenden Flur, welcher Sie direkt mit der offenen Wohnküche und dem geräumigen Wohnbereich empfängt. Die Küche ist mit modernen Geräten ausgestattet und bietet Ihnen alles, was Sie für den täglichen Gebrauch benötigen. Von hier aus haben Sie ebenfalls Zugang zu der gemütlichen Loggia mit Weitblick!

Folgt man dem Flur nach links, gelangen Sie zum Badezimmer, welches mit einer Badewanne, einem Waschbecken und einem Waschmaschinenanschluss ausgestattet ist, sowie zum separat liegendes WC inkl. Handwaschbecken. Die letzte Tür führt Sie schlussendlich in das abgetrennte Schlafzimmer.

 

Geheizt wird in der Anlage mittels Fernwärme. Ein geräumiges Kellerabteil wir dem Mieter für die Mietdauer zur Verfügung gestellt. Ein Aufzug ist natürlich auch vorhanden. Die Hausanlage verfügt außerdem über einen Kinderwagen- und einen Fahrradabstellraum, sowie einem Party- bzw. Kinderspielraum und einer Waschküche.

Ein Autostellplatz kann in der Tiefgarage bei Bedarf und Verfügbarkeit separat angemietet werden.

 

HINWEIS:

Die abgebildeten Fotos sind Aufnahmen einer ähnlichen Wohnung in der Anlage! Dementsprechend sind diese gut als Vergleich heranzuziehen! 

Aufbau gemäß dem Grundrissplan.

 

AUSSTATTUNG:

Parkettböden in den Wohnräumen, Fußbodenheizung, elektrische Außenjalousien, Internet- und Kabel-Anschlüsse, Gegensprechanlage; Sicherheitstür; Deckenkühlung

 

KONDITIONEN:

Vermietet wird auf 10 Jahre ab März; mit Option auf Verlängerung

Kündigungsverzicht: 1 Jahr; Kündigungsfrist: 3 Monate;

Gesamtmiete (inkl. BK und Steuern): € 899,10

Kaution: € 2.700,- // Vertragserrichtung: € 360, - // provisionsfrei für den Mieter!

 

Strom wird auf den Mieter umgemeldet. Heizung (Fernwärme und Wasser) wird direkt über Wien Energie verrechnet und auf den Mieter umgeschrieben.

TV und Internet sind nach Bedarf selbst an- und wieder abzumelden.

Ein Abschluss einer Haushaltsversicherung wird vor dem Einzug empfohlen.

 

 

Kontakt:

Bitte beachten Sie, dass wir aufgrund der Nachweispflicht gegenüber dem Eigentümer nur Anfragen mit vollständiger Angabe der Anschrift bearbeiten können.

Anfragen bitte daher mit vollständiger Angabe der personenbezogenen Daten: (Name, Nachname, Anschrift, E-mail und Telefonnummer) an: stifter@pr-immobilien.at

Ihre möglichen Terminvorschläge wären dafür sehr hilfreich! 

 

Bei weiteren Fragen können Sie sich ebenfalls jederzeit an die oben genannte E-Mail-Adresse wenden!

 

Wir freuen uns auf Ihre Antwort und verbleiben mit freundlichen Grüßen,

 

PR-Immobilien / REAL ESTATE

Frau Marissa Stifter (Maklerassistentin)

Mobil +43 / 676 590 02 80 [tel:+436602052508]

WEB: www.pr-immobilien.at [http://www.pr-immobilien.at/]

E-Mail: stifter@pr-immobilien.at

Noch nichts gefunden? Wir informieren Sie über geeignete Immobilienangebote noch vor allen anderen.
Legen Sie jetzt Ihren individuellen Suchagenten unter folgendem Link an. Wir schicken Ihnen passende Immobilien exklusiv vorab zu.
Suchagent anlegen [https://pr-immobilien-real-estate.service.immo/registrieren/de] - https://pr-immobilien-real-estate.service.immo/registrieren/de

Der Immobilienmakler erklärt, dass er – entgegen dem in der Immobilienwirtschaft üblichen Geschäftsgebrauch des Doppelmaklers – einseitig nur für den Vermieter tätig ist.

Infrastruktur / Entfernungen

Gesundheit
Arzt <250m
Apotheke <500m
Klinik <1.500m
Krankenhaus <2.250m

Kinder & Schulen
Schule <500m
Kindergarten <500m
Universität <3.000m
Höhere Schule <3.000m

Nahversorgung
Supermarkt <250m
Bäckerei <750m
Einkaufszentrum <1.500m

Sonstige
Bank <250m
Geldautomat <250m
Post <750m
Polizei <250m

Verkehr
Bus <250m
U-Bahn <1.000m
Straßenbahn <500m
Bahnhof <1.000m
Autobahnanschluss <1.250m

Angaben Entfernung Luftlinie / Quelle: OpenStreetMap
Beschreibung weiterlesen

Lage und Verkehrsanbindung

Blumengärten Hirschstetten / Hirschstettner Badeteich

Blumengärten Hirschstetten / Hirschstettner Badeteich / Hausfeldstraße Bahnhof / Wien Aspern Nord / S2 Hirschstetten

Energieeffizienz

HWB:
22,28 kWh/(m²*a)
HWB Klasse:
A
fGEE:
0,76
fGEE Klasse:
A
Energieausweisart:
Energiebedarfs-ausweis
Gültig bis:
21.02.2032

Grundriss

Lageplan

1220 Wien | Wien 22., Donaustadt

Lade...
Marissa Stifter

Marissa Stifter
Immobilienmaklerassistentin

PR-IMMOBILIEN / REAL ESTATE

Lade...

Fotomix

Bild 1 Bild 2 Bild 3 Bild 4 Bild 5 Bild 6 Bild 7 Bild 8 Bild 9 Bild 10 Bild 11