NEU - 2-Zimmer Wohnung mit Terrasse nähe TU-Graz zu vermieten.

Wohnung zur Miete in 8010 Graz - Gesamtmiete: 640,00 € / Objektnummer: 6509
Ausstattung: Zentralheizung Terrasse
Wohnbereich
Küche
Küche
Bad
Bad
Wohnbereich
Schlafzimmer
Terrasse
Terrasse
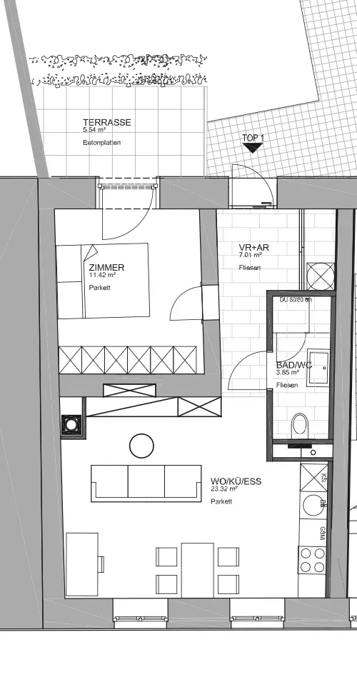
Grundriss

Preisinformationen

Gesamtmiete:
640,00 € / Monat
Umsatzsteuer:
41,82 €
Kaution:
1.920,00 €

Fakten

Objektnummer:
6509
Objekttyp:
Wohnung
Terrasse:
1
Wohnfläche:
46 m²
Zimmer:
1,5
Badezimmer:
1
Toilette:
1
Zustand:
Gepflegt
Verfügbarkeit:
Verfügbar

Beschreibung

Mietwohnung in Zentrumslage zu vermieten, auch ideal für Studenten.
Die Wohneinheit liegt im Erdgeschoss mit 46m² Wohnfläche, aufgeteilt in einen Wohn-Essbereich mit möblierter moderner Küche, Schlafzimmer mit Zugang auf die Innenhofterrasse, Sanitärbereich mit Dusche/WC und einen großzügigen Vorraumbereich. Bezug wäre jederzeit möglich. Die Betriebskosten sind bereits in der Miete inkludiert.
Angaben gemäß gesetzlichem Erfordernis:
Miete 418,18 zzgl 10% USt.
Betriebskosten 180
Umsatzsteuer 41,82
---------------------------------
Gesamtbetrag 640
---------------------------------
Heizwärmebedarf: 98.0 kWh/(m²a)
Klasse Heizwärmebedarf: B
Beschreibung weiterlesen

Energieeffizienz

HWB:
98 kWh/(m²*a)
HWB Klasse:
B
Energieausweisart:
Energiebedarfs-ausweis
Gerhard Berg

Gerhard Berg

IMMOXX. GmbH

Lade...

Fotomix

Wohnbereich Küche Küche Bad Bad Wohnbereich Bild 7 Bild 8 Schlafzimmer Terrasse Terrasse Grundriss