NEU - 2000-4000 m2 Bauland im Gewerbegebiet Himberg

Grundstück zum Kauf in 2325 Himberg - Kaufpreis: 1.180.000 € / Objektnummer: 6547/4142

Preisinformationen

Kaufpreis:
1.180.000 €
Kaufpreis/m²
297,90 €
Vermittlungsprovision:
Ja
Provision:
42.480,00 € inkl. 20% USt.

Fakten

Objektnummer:
6547/4142
Objekttyp:
Grundstück
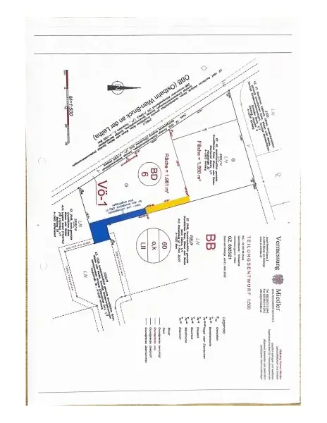
Grundstücksfläche:
3.961 m²
Verfügbarkeit:
Verfügbar

Beschreibung

Attraktives Gewerbegrundstück im Industriegebiet Himberg – bis zu 4.000 m² flexibel nutzbare Freifläche

 

Im südlichen Teil des etablierten Industriegebiets Himberg steht ab sofort ein vielseitig nutzbares Gewerbegrundstück in der Gewerbestraße 12 zur Verfügung. Die Gesamtfläche umfasst bis zu 4.000 m² Freigelände, die sich ideal für verschiedenste gewerbliche Nutzungen eignen – insbesondere für Betriebe aus den Bereichen Transport, Logistik, KFZ, Lagerwesen oder Hallenbebauung.

 

Wichtige Merkmale des Grundstücks:

 

* Bis zu 4.000 m² ebene, gut befahrbare Gewerbefläche
* Teilung möglich – auch 2.000 m² können separat erworben werden
* Optimal geeignet für Hallenneubauten, Logistikflächen, Abstell- oder Umschlagplätze
* Sehr gute Erreichbarkeit für LKW und Lieferverkehr
* Umgebende Unternehmen hauptsächlich aus der Transport- und Logistikbranche
* Kein Kellerbau möglich, Aufbauten (z. B. Hallen) jedoch problemlos realisierbar

 

 

Top-Lage im Industriegebiet:

 

* Hohe Frequenz durch nahegelegene Transport- und Industriebetriebe
* Direkte Anbindung an Einkaufsmöglichkeiten wie Hofer, Spar u. a.
* Apotheke und diverse Serviceangebote in unmittelbarer Umgebung
* Sehr gute Verkehrsanbindung in Richtung Wien und überregionale Verkehrswege

 

 

Dieses Grundstück bietet Unternehmen die ideale Gelegenheit, sich in einem stark frequentierten und dynamisch wachsenden Industriegebiet anzusiedeln. Dank flexibler Flächengestaltung eignet es sich sowohl für große als auch kleinere Betriebsstandorte

Der Vermittler ist als Doppelmakler tätig.

Infrastruktur / Entfernungen

Gesundheit
Arzt <1.000m
Apotheke <500m
Klinik <8.500m
Krankenhaus <10.000m

Kinder & Schulen
Kindergarten <2.000m
Schule <2.000m

Nahversorgung
Supermarkt <500m
Bäckerei <500m
Einkaufszentrum <1.000m

Sonstige
Bank <2.000m
Geldautomat <2.000m
Post <2.000m
Polizei <2.500m

Verkehr
Bus <500m
Straßenbahn <8.000m
Autobahnanschluss <5.500m
Bahnhof <1.500m
U-Bahn <9.000m
Flughafen <9.000m

Angaben Entfernung Luftlinie / Quelle: OpenStreetMap
Beschreibung weiterlesen

Lage und Verkehrsanbindung

Gewerbestraße, Himberg

Das Grundstück liegt im südlichen Industriegebiet Himberg, umgeben von Transport- und Logistikbetrieben. Einkaufsmöglichkeiten wie Hofer und Spar sowie eine Apotheke sind unmittelbar erreichbar. Die Verkehrsanbindung Richtung Wien und zu regionalen Hauptstraßen ist hervorragend.

Grundriss

Lageplan

2325 Himberg | Bruck an der Leitha

Lade...
Andreas Brauneder

Andreas Brauneder
Staatlich konzessionierter Immobilienmakler / Kooperationspartner

TRUE Immobilien GmbH & Co KG

Lade...

Fotomix

Bild 1 Bild 2 Bild 3 Bild 4 Bild 5 Bild 6