NEU - RENOVIERTER SOFORTBEZUG IN VELDENER ZENTRUMSNÄHE! MÖBLIERTES 3 ZIMMER-EIGENTUM MIT BALKON IN SÜD-WEST-LAGE.

Wohnung zum Kauf in 9220 Velden am Wörther See - Kaufpreis: 399.000 € / Objektnummer: 16866
Ausstattung: Boden Bad Möbliert Rollladen Abstellraum Zentralheizung Balkon

Preisinformationen

Kaufpreis:
399.000 €
Betriebskosten netto:
135,11 € / Monat
Vermittlungsprovision:
Ja
Provision:
3% des Kaufpreises zzgl. 20% USt.

Fakten

Objektnummer:
16866
Objekttyp:
Wohnung
Balkon:
1
Balkonfläche:
6,38 m²
Keller Fläche:
7,3 m²
Wohnfläche:
77,61 m²
Nutzfläche:
83,99 m²
Gesamtfläche:
91,29 m²
Zimmer:
3
Badezimmer:
1
Toilette:
1
Stockwerk:
1
Baujahr:
2001
Neubau:
Ja
Letzte Sanierung:
2022
Zustand:
Gepflegt
Verfügbarkeit:
Verfügbar
Verfügbar ab:
AB SOFORT

Beschreibung

WENIGE GEHMINUTEN BIS ZUM SEECORSO, SCHLOSS UND WÖRTHERSEE.

KOFFER AUSPACKEN UND WOHNEN! SOFORTÜBERGABE MÖGLICH.
VOLL MÖBLIERTE EIGENTUMSWOHNUNG!

HERRLICHE SÜD-WEST-RUHELAGE.
ZENTRAL BEGEHBARE ECKWOHNUNG! 3-ZIMMER UND BALKON.

ALLGEMEINES
Zum Verkauf gelangt eine 2022-2024 renovierte, TOP GEPFLEGTE Eigentumswohnung mit 3 Zimmern, Balkon und Einlagerungsabteil im Keller. Die Wohnung wird voll möbliert übergeben (siehe Fotos). Der Großteil des Mobiliars wurde 2022 gekauft und seitdem kaum benutzt.

Es handelt sich um eine helle, zentral begehbare Eckwohnung mit Orientierung in Richtung Süd-West, der Balkon befindet sich auf der Südseite.
Sie befindet sich in einem  Neubau aus 2001 mit Erdgeschoss und 2 Obergeschossen. Die Wohnung liegt im 1. Obergeschoss. Ein Aufzug ist nicht vorhanden. Im Gebäude gibt es 9 Einheiten.
Hervorzuheben ist der hervorragend gepflegte Zustand der Wohnung!

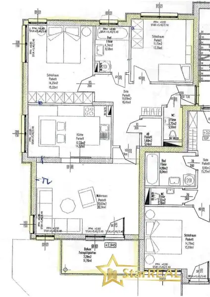
GRUNDRISS
- Wohnzimmer
- Küche
- 2 Schlafzimmer
- Badezimmer (mit Fenster) mit Wanne und Waschbecken
- Toilette
- Abstellraum

- Balkon
- Der Wohnung ist ein 7,3m² großes Kellerabteil zugeordnet.

AUSSTATTUNG
- Außenbeschattung mit Rollläden
- Insektenschutz
- Markise für den südseitig gelegenen Balkon
- Fenster von Opitz (heute Katzbeck)
- Parkettboden (Eiche) und Fliesen
- Wasserboiler mit 117 Litern Fassungsvermögen

KOMPLETTMÖBLIERUNG/-AUSSTATTUNG
Die Wohnung wird komplett ausgestattet verkauft (siehe Fotos - wenige persönliche Gegenstände werden noch geräumt).
_Küche_
- Dan-Küche inklusive Geräten (Cerankochfeld+Dunstabzug, Kühlschrank mit Gefrierfach, Backrohr, Geschirrspüler - Geräte von ZANUSSI und LIEBHERR)
- Esstisch und 4 Sessel
_Wohnzimmer_
- Sofa
- Fernsehsessel
- antiker Vollholzschrank
- TV-Board mit Fernseher
_Zwei Schlafzimmer_
- Boxspring-Betten tw. mit Nachtkästchen
- Schränke (teilweise mit Beleuchtung)
_Badezimmer_
- Schrank
- Waschtrockner
_WC_
- 2 Hängeschränke
_Vorraum_
- Vorzimmerregal
_Balkon_
- Tisch mit Klappstühlen
- Sofa
_Sonstiges_
- diverses Kleinmobiliar in der ganzen Wohnung
- komplette Ausstattung mit Lampen, Vorhängen wie auf den Fotos sichtbar und Inventar

HINWEIS: Die Wohnung wurde seit der Renovierung 2022 kaum genutzt!

VELDENER ZENTRUMSLAGE
Die Lage ist ausgezeichnet, es handelt sich um absolute Veldener Ruhelage.
Binnen 10-15 Gehminuten erreichen Sie den Wörthersee, den Seecorso, das Casino Velden und das Schlosshotel Velden.
Einkaufsmöglichkeiten, Gastronomie, Ärzte und Schulen/Kindergarten befinden sich in direkter Umgebung und sind binnen 5-10 Minuten fußläufig erreicht.

BETRIEBSKOSTEN

Wohnung
Die Betriebskosten belaufen sich auf ca. € 149,- (brutto), Reparaturrücklage ca. € 93.- somit derzeit insgesamt ca. € 242,-/Monat (brutto).
Wasser- und Heizkosten (Öl) werden über die Hausverwaltung abgerechnet und betragen aktuell € 47.-/Monat.

Stellplatz
Die Betriebskosten belaufen sich auf ca. € 4,- (brutto), Reparaturrücklage ca. € 2,- somit derzeit insgesamt ca. € 6,-/Monat (brutto).

Der Kaufpreis für die Eigentumswohnung beträgt € 399.000.-.
Der Kaufpreis für den direkt vor dem Hauseingang gelegenen KFZ-Abstellplatz beträgt € 21.000.-.
GESAMTKAUFPREIS MÖBLIERTE WOHNUNG + KFZ-ABSTELLPLATZ: € 420.000.-.

Für nähere Informationen oder zur Vereinbarung eines Besichtigungstermins erreichen Sie Frau Maria Deutschbauer unter 0699/106 36 585 bzw. unser Büro unter 01/997 28 81.

Wir weisen darauf hin, dass zwischen dem Vermittler und dem zu vermittelnden Dritten ein familiäres oder wirtschaftliches Naheverhältnis besteht.

Der Vermittler ist als Doppelmakler tätig.

Infrastruktur / Entfernungen

Gesundheit
Arzt <500m
Apotheke <500m

Kinder & Schulen
Schule <500m
Kindergarten <500m

Nahversorgung
Supermarkt <500m
Bäckerei <1.000m

Sonstige
Bank <1.000m
Geldautomat <1.000m
Post <1.000m
Polizei <500m

Verkehr
Bus <500m
Autobahnanschluss <2.000m
Bahnhof <1.500m

Angaben Entfernung Luftlinie / Quelle: OpenStreetMap
Beschreibung weiterlesen

Lage und Verkehrsanbindung

Schlosshotel, Zentrum Velden

Energieeffizienz

HWB:
55,42 kWh/(m²*a)
HWB Klasse:
C
fGEE:
1,04
fGEE Klasse:
C
Energieausweisart:
Energiebedarfs-ausweis
Gültig bis:
24.06.2032

Grundrisse

Lageplan

9220 Velden am Wörther See | Klagenfurt Land

Lade...
Maria Grace Deutschbauer

Maria Grace Deutschbauer
Geschäftsführerin

StarREAL OG

Lade...

Fotomix

Wohnzimmer Küche Balkon Seecorso Wörthersee Ansicht Ansicht Ansicht Ansicht Wohnzimmer Wohnzimmer Wohnzimmer Wohnzimmer Balkon Balkon Ausblick Ausblick Küche Küche Küche Schlafzimmer 1 Schlafzimmer 1 Schlafzimmer 1 Schlafzimmer 1 Schlafzimmer 1 Badezimmer Badezimmer Badezimmer Toilette Schlafzimmer 2 Schlafzimmer 2 Schlafzimmer 2 Vorraum/Abstellraum Gang Vorraum Gang Wohnungstür Hauseingang Hauseingang Kellerabteil Kellerabteil Ansicht Ansicht Ansicht Ansicht Schlosshotel Wörthersee