NEU - 3,5 Zimmer Altbau-Erstbezug in der Kaiserstraße! Top Lage!

Wohnung zum Kauf in 1070 Wien - Kaufpreis: 539.000 € / Objektnummer: 629
Ausstattung: Boden Fahrstuhl Etagenheizung

Preisinformationen

Kaufpreis:
539.000 €
Betriebskosten netto:
250,00 € / Monat
Vermittlungsprovision:
Ja
Provision:
3% des Kaufpreises zzgl. 20% USt.

Fakten

Objektnummer:
629
Objekttyp:
Wohnung
Wohnfläche:
82,66 m²
Zimmer:
3,5
Badezimmer:
1
Toilette:
1
Stockwerk:
3
Baujahr:
1900
Altbau:
Ja
Letzte Sanierung:
2025
Zustand:
Erstbezug
Verfügbarkeit:
Verfügbar

Beschreibung

Zum Verkauf gelangt eine wunderschöne, komplett sanierte 3,5-Zimmer-Wohnung in beliebter Lage des 7.Bezirks.
Perfekt für ein Pärchen, eine WG oder eine Jungfamilie.

Das schöne Jahrhundertwendehaus befindet sich in unmittelbarer Nähe zur Lerchenfelderstraße und der U6-Station Thaliastraße.

Die Wohnung liegt im 3.Liftstock und verzaubert durch ihre praktische Aufteilung und die hochwertige Ausstattung, bei der man die Liebe für Details sofort erkennt. Die Echtholz Eichen-Dielen, die neuen Holz-Türen, sowie die ebenerdige Dusch sind nur ein Auszug der qualitativen Ausstattung.

Nurmehr selten gibt es hochwertig sanierte Altbau-Wohnungen in dieser zentralen Lage zu fairen Preisen.

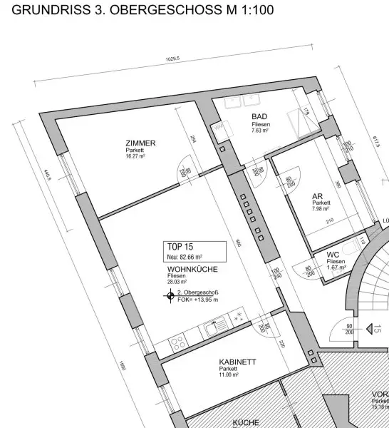
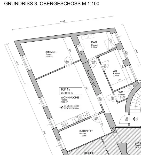
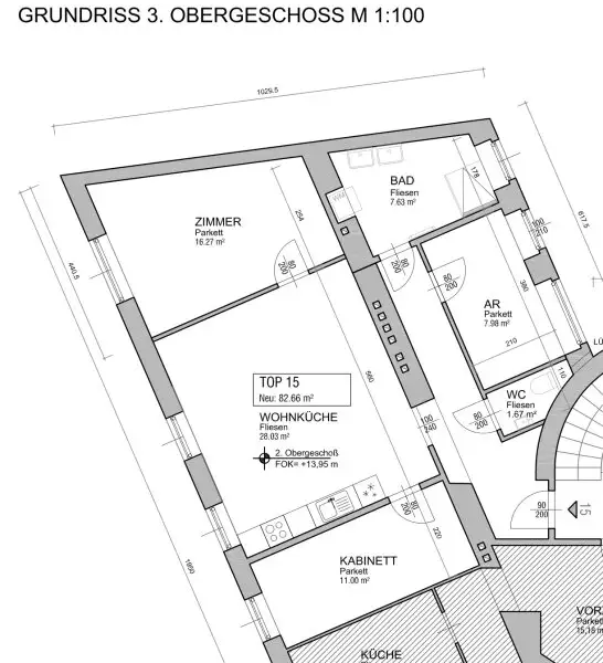
Aufteilung 

- Vorraum/Gang: 10,08m2 

- Wohnzimmer: 28,03m2 (mit Anschlüssen für Wohnküche)

- Schlafzimmer 1: 16,27m2 
- Schlafzimmer 2: 11m2 
- Abstellraum: 7,98m2

- Bad: 7,63m2 mit Dusche und Waschmaschinen-Anschluss

- Wc: 1,67m2

 

Lage:

Das Haus befindet sich in ruhiger Hoflage 1 Gehminute von der U6-Station Thaliastraße entfernt mit sehr guter öffentlicher Anbindung.

In unmittelbarer Nähe befinden sich Lebensmittelgeschäfte sowie Restaraunts und Cafés.

Bewohner dieses "Grätzels" möchten die vielen Vorteile dieser Lage nichtmehr missen. Nutzen Sie diese seltene Gelegenheit und vereinbaren Sie einen Besichtigungstermin.

Bei Interesse an dem Objekt freuen wir uns auf Ihre Anfrage. Der Ordnung halber halten wir fest, dass nur vollständige Anfragen mit Vor-und Zunamen, sowie mit gültiger Mobilnummer beantwortet werden.

 

Kontaktieren Sie uns & überzeugen Sie sich selbst von der Qualität dieser Immobilie. 

Gerne senden wir Ihnen auf Anfrage alle weiteren Informationen zu.

Wir weisen darauf hin das zu sämtlichen Abgebern ein wirtschaftliches Nahverhältnis besteht. Eine Garantie auf Richtigkeit und Vollständigkeit können wir nicht übernehmen.

Wir weisen darauf hin, dass zwischen dem Vermittler und dem zu vermittelnden Dritten ein familiäres oder wirtschaftliches Naheverhältnis besteht.

Der Vermittler ist als Doppelmakler tätig.

Infrastruktur / Entfernungen

Gesundheit
Arzt <500m
Apotheke <500m
Klinik <500m
Krankenhaus <1.000m

Kinder & Schulen
Schule <500m
Kindergarten <500m
Universität <1.000m
Höhere Schule <500m

Nahversorgung
Supermarkt <500m
Bäckerei <500m
Einkaufszentrum <1.000m

Sonstige
Geldautomat <500m
Bank <500m
Post <500m
Polizei <500m

Verkehr
Bus <500m
U-Bahn <500m
Straßenbahn <500m
Bahnhof <500m
Autobahnanschluss <4.000m

Angaben Entfernung Luftlinie / Quelle: OpenStreetMap
Beschreibung weiterlesen

Lage und Verkehrsanbindung

Lerchenfelderstraße und U6-Station Thaliastraße

Lerchenfelder Straße, Kaiserstraße

Energieeffizienz

HWB:
123,4 kWh/(m²*a)
HWB Klasse:
D
fGEE:
2,2
fGEE Klasse:
D
Energieausweisart:
Energiebedarfs-ausweis
Gültig bis:
15.12.2034

Grundriss

Lageplan

1070 Wien | Wien 7., Neubau

Lade...
Benedikt Graf

Benedikt Graf
Immobilienberater

WhiteBrick Immo GmbH

Lade...

Fotomix

Bild 1 Bild 2 Bild 3 Bild 4 Bild 5 Bild 6 Bild 7 Bild 8 Bild 9 Bild 10 Bild 11