NEU - 3-Zimmer-Neubauwohnung im grünen Amras – PROVISIONSFREI für den Käufer

Wohnung zum Kauf in 6020 Innsbruck - Kaufpreis: 710.000 € / Objektnummer: 11430
Visualisierung Algunder Straße Front
Visualisierung Algunder Straße Back
Visualisierung Algunder Straße DG
Nicola Dertnig #remax-recon
Visualisierung Algunder Straße EG
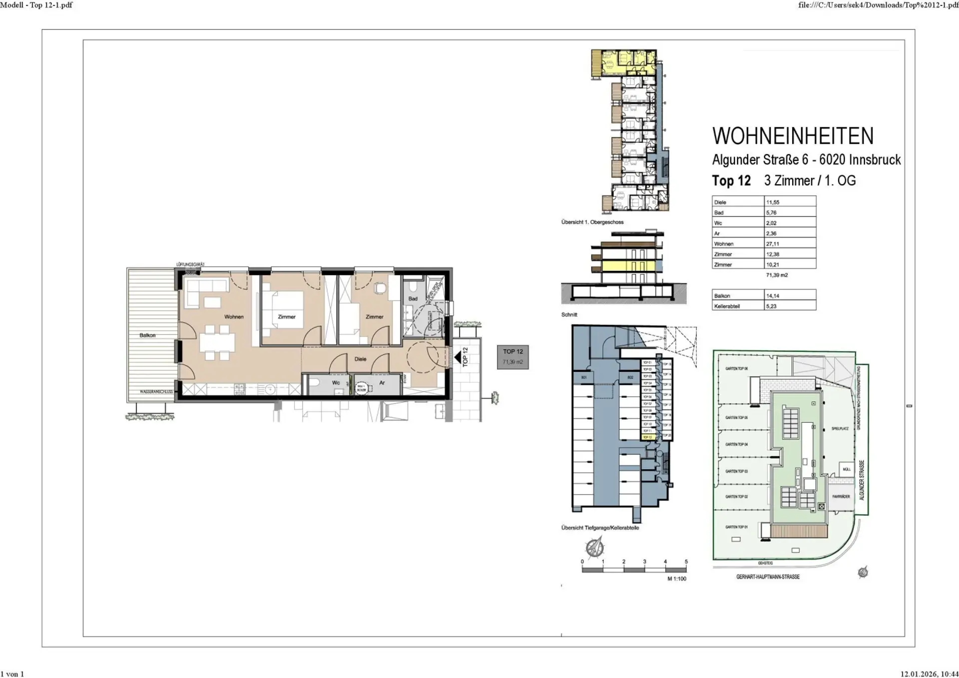
Top 12

Preisinformationen

Kaufpreis:
710.000 €
Preisinfos:
Verhandlungsbasis

Fakten

Objektnummer:
11430
Objekttyp:
Wohnung
Balkon:
1
Keller Fläche:
5,23 m²
Wohnfläche:
71,39 m²
Zimmer:
3
Badezimmer:
1
Toilette:
1
Stockwerk:
1
Baujahr:
ca. 2026
Zustand:
Erstbezug
Verfügbarkeit:
Verfügbar

Beschreibung

Neubauwohnungen im grünen Amras – PROVISIONSFREI für den Käufer

In begehrter Lage von Innsbruck-Amras entsteht ein modernes Neubauprojekt mit 20 hochwertigen Eigentumswohnungen. Die 2- bis 4-Zimmer-Wohnungen sind alle nach Südwesten ausgerichtet und verfügen über Garten, Terrasse oder Balkon.

Hochwertige Ausstattung, nachhaltige Energietechnik mit Luftwärmepumpe & Photovoltaik, Tiefgarage mit E-Lade-Vorbereitung sowie eine ausgezeichnete Infrastruktur mit Nähe zum DEZ, öffentlichen Verkehrsmitteln und vielfältigen Freizeitmöglichkeiten machen dieses Projekt besonders attraktiv.
Ideal für Eigennutzer und Anleger

Die gegenständliche 3-Zimmer-Wohnung befindet sich im 1. Obergeschoß. Sie verfügt über eine Wohnfläche von ca. 71,39 m² und eine Balkonfläche von ca. 14,14 m².

Für nähere Informationen zur Immobilie fordern Sie bitte ein Exposé an.
Wir bitten Sie um Verständnis, dass wir unserer Nachweispflicht nachkommen müssen und wir Anfragen nur unter Angabe der vollständigen Kontaktdaten (Name, Adresse, Telefonnummer, Email) beantworten können!
Nicht alle Immobilien sind auf der Webseite zu sehen. Sie können uns gerne Ihren Suchwunsch bekannt geben.
Angaben gemäß gesetzlichem Erfordernis:
Heizwärmebedarf: 38.0 kWh/(m²a)
Faktor Gesamtenergieeffizienz: 0.55

Weitere interessante Objekte finden Sie unter http://www.remax-recon.at/
Beschreibung weiterlesen

Energieeffizienz

HWB:
38 kWh/(m²*a)
fGEE:
0,55
Energieausweisart:
Energiebedarfs-ausweis

Dokumente

Nicola Dertnig

Nicola Dertnig

RE/MAX Recon 1

Lade...

Fotomix

Visualisierung Algunder Straße Front Visualisierung Algunder Straße Back Visualisierung Algunder Straße DG Nicola Dertnig #remax-recon Visualisierung Algunder Straße EG Top 12