NEU - 3-ZIMMER-SONNENWOHNUNG 38 m² Dachterrasse Christkindl

Wohnung zum Kauf in 4400 Steyr - Kaufpreis: 331.200 € / Objektnummer: 48
Ausstattung: Kabel/Satelliten-TV Parkplatz Außenparkplatz Zentralheizung Terrasse
innen-v2
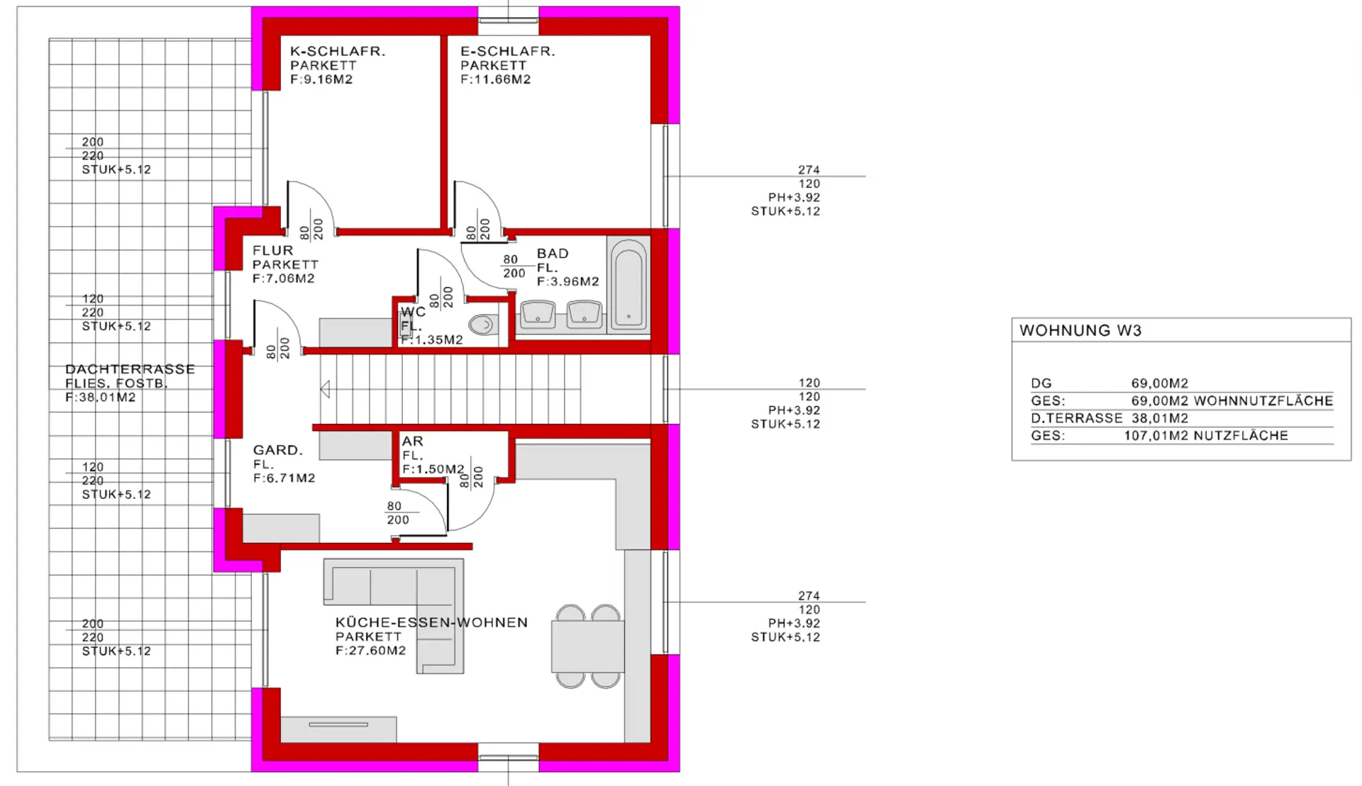
Wohnung 1OG_69 m²

Preisinformationen

Kaufpreis:
331.200 €
Preisinfos:
Fixpreis
Provision:
3.60 %

Fakten

Objektnummer:
48
Objekttyp:
Wohnung
Terrasse:
1
Wohnfläche:
69 m²
Zimmer:
3
Badezimmer:
1
Toilette:
1
Stockwerk:
1
Baujahr:
ca. 2027
Neubau:
Ja
Zustand:
Erstbezug
Verfügbarkeit:
Verfügbar

Beschreibung

Exklusives Wohnen in Steyr – Schlüsselfertige Eigentumswohnung im ersten Obergeschoss in Christkindl
Inmitten des idyllischen Stadtteils Christkindl in Steyr entsteht ein modernes Wohnprojekt, das stilvolles Design mit zeitgemäßer Technik vereint. Bis zum Frühjahr 2027 werden hier sechs Eigentumswohnungen in zwei Baukörpern errichtet – mit Wohnflächen zwischen ca. 53 und 69 m². Jede Einheit bietet eine private Terrasse und die Erdgeschosswohnungen verfügen zusätzlich über einen ca. 125 m² großen Eigengarten.

Durchdachte Architektur & Nachhaltigkeit
Die Gebäude werden nach aktuellen ÖNORM-Baustandards errichtet und mit modernster Technik ausgestattet. Eine zentrale Luftwärmepumpe mit Warmwasseraufbereitung sorgt in Kombination mit einer Fußbodenheizung für ein angenehmes Raumklima.




Ihre Vorteile auf einen Blick:

+ schlüsselfertig
+ Wohnflächen zwischen ca. 53 und 69 m² (zuzüglich Terrassenflächen)
+ große Terrassen
+ Luftwärmepumpe & Fußbodenheizung
+ Dreifach verglaste Fenster
+ bis zu zwei KFZ-Stellplätze pro Einheit
+ Fertigstellung 2027




Erleben Sie modernes Wohnen in einer der begehrtesten Wohngegenden von Steyr.

Sichern Sie sich jetzt Ihr Eigenheim in Christkindl!

Auf Anfrage erhalten Sie von mir weitere Informationen zu den Preisen und Flächen der einzelnen Einheiten. Gerne stehe ich Ihnen für ein persönliches Beratungsgespräch zur Verfügung!

Ich freue mich darauf, Sie auf dem Weg zu Ihrem Wohntraum begleiten zu dürfen! 

Herzlichst,
Diana Hertl, MSc
Immobilientreuhänderin

DIANOR Estates GmbH, Leopold-Werndl-Straße 27, 4400 Steyr
0676/4422972, office@dianor.at
Beschreibung weiterlesen

Energieeffizienz

HWB:
40 kWh/(m²*a)
fGEE:
0,4
Energieausweisart:
Energiebedarfs-ausweis
Diana Hertl

Diana Hertl

DIANOR Estates GmbH

Anrufen
Lade...

Fotomix

innen-v2 Wohnung 1OG_69 m²