NEU - 3-Zimmer-Wohnung mit Loggia – Viel Potenzial in Toplage des 5. Bezirks

Wohnung zum Kauf in 1050 Wien - Kaufpreis: 359.000 € / Objektnummer: 1718/1746670
Ausstattung: Boden Bad Loggia

Preisinformationen

Kaufpreis:
359.000 €
Betriebskosten netto:
153,28 € / Monat
Vermittlungsprovision:
Ja
Provision:
3% des Kaufpreises zzgl. 20% USt.

Fakten

Objektnummer:
1718/1746670
Objekttyp:
Wohnung
Loggia:
1
Keller Fläche:
2,24 m²
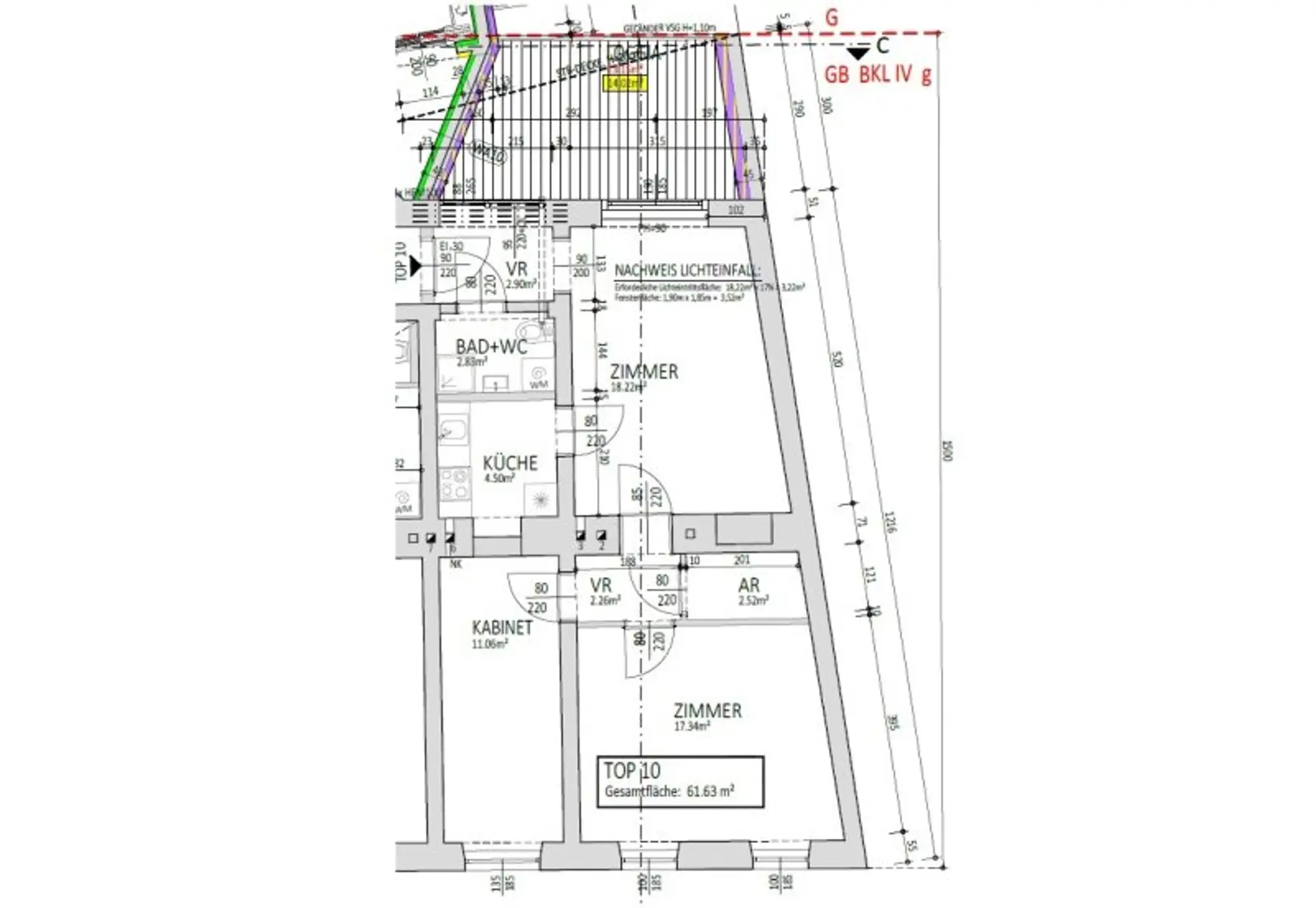
Wohnfläche:
61,63 m²
Loggia Fläche:
13,15 m²
Nutzfläche:
74,68 m²
Gesamtfläche:
74,68 m²
Zimmer:
3
Badezimmer:
1
Toilette:
1
Stockwerk:
2
Altbau:
Ja
Zustand:
Sanierungsbedürftig
Verfügbarkeit:
Verfügbar

Beschreibung

Zum Verkauf gelangt eine 3-Zimmer-Wohnung in der Castelligasse, 1050 Wien, in attraktiver und gut angebundener Lage nahe der U4 Pilgramgasse. Die Wohnung befindet sich in sanierungsbedürftigem Zustand und bietet dadurch ideale Voraussetzungen zur individuellen Gestaltung nach eigenen Vorstellungen.

Die schöne Raumaufteilung überzeugt mit gut proportionierten Zimmern und vielfältigen Nutzungsmöglichkeiten. Ein besonderes Highlight ist die bereits errichtete Loggia, die zusätzlichen Freiraum schafft.
Der Ausgang zur Loggia ist vom neuen Eigentümer noch herzustellen, das dafür benötigte Fensterportal ist bereits vorhanden und im Kaufpreis inkludiert.

Die Lage spricht für sich: Der lebendige 5. Bezirk bietet eine hervorragende Infrastruktur mit zahlreichen Einkaufsmöglichkeiten, Cafés und Restaurants. Die exzellente öffentliche Anbindung – insbesondere durch die nahegelegene U4 Pilgramgasse – ermöglicht eine schnelle Erreichbarkeit der Wiener Innenstadt und aller wichtigen Knotenpunkte.

 

Highlights im Überblick:

* 3 Zimmer mit durchdachter Raumaufteilung
* Sanierungsbedürftig – großes Wertsteigerungspotenzial
* Loggia bereits errichtet
* Fensterportal für Loggia-Ausgang im Preis inkludiert
* Top-Anbindung: U4 Pilgramgasse in Gehdistanz
* Zentrale Lage im beliebten 5. Bezirk

 

Diese Wohnung bietet eine seltene Gelegenheit, Wohnraum in sehr guter Lage nach eigenen Vorstellungen zu verwirklichen.

 

_Kaufpreis:_

Der Kaufpreis beläuft sich auf 359.000, - €.

Betriebskosten: 246,09 Euro inkl. Rücklage und Steuer

Provision: 3% des Kaufpreises zzgl. 20% USt.

 

 

Für Fragen bzw. Besichtigungen steht Ihnen Herr Kevin Gödel sehr gerne unter 0664 41 28 427 oder kevin.goedel@prime-immobilien.at zur Verfügung.

 

Die verwendeten Fotos weisen teilweise KI-generierte Inhalte auf.

Wir weisen darauf hin, dass zwischen dem Vermittler und dem zu vermittelnden Dritten ein familiäres oder wirtschaftliches Naheverhältnis besteht.

Der Vermittler ist als Doppelmakler tätig.

Infrastruktur / Entfernungen

Gesundheit
Arzt <500m
Apotheke <500m
Klinik <500m
Krankenhaus <500m

Kinder & Schulen
Schule <500m
Kindergarten <500m
Universität <500m
Höhere Schule <500m

Nahversorgung
Supermarkt <500m
Bäckerei <500m
Einkaufszentrum <1.000m

Sonstige
Geldautomat <500m
Bank <500m
Post <500m
Polizei <500m

Verkehr
Bus <500m
U-Bahn <500m
Straßenbahn <1.000m
Bahnhof <500m
Autobahnanschluss <3.500m

Angaben Entfernung Luftlinie / Quelle: OpenStreetMap
Beschreibung weiterlesen

Lage und Verkehrsanbindung

U4 Pilgramgasse, Castelligasse, Mariahilf

Grundriss

Lageplan

1050 Wien | Wien 5., Margareten

Lade...
Kevin Gödel

Kevin Gödel

RIMMO Prime Vermittlungs GmbH

Lade...

Fotomix

Bild 1 Bild 2 Bild 3 Bild 4 Bild 5 Bild 6 Bild 7 Bild 8 Bild 9 Bild 10