NEU - 3-Zimmer-Wohnung mit Potenzial | Nähe U1 & Favoritenstraße

Wohnung zum Kauf in 1100 Wien - Kaufpreis: 150.000 € / Objektnummer: 3127
Ausstattung: Etagenheizung
Wohnküche
Wohnküche
Wohnküche
Wohnküche
Zimmer
Schlafzimmer
Badezimmer
Toilette
Hauseingang
Innenhof
Hausansicht
Skizze
Gutschein
Lage
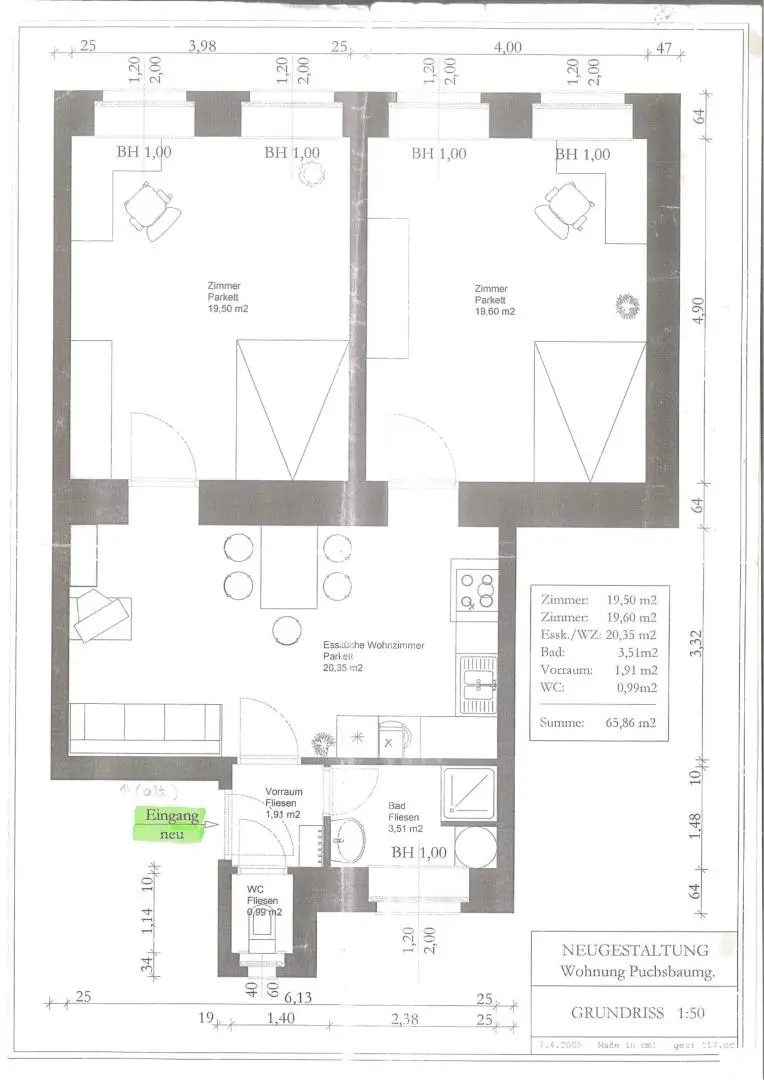
Grundriss

Preisinformationen

Kaufpreis:
150.000 €
Betriebskosten netto:
374,98 € / Monat
Preisinfos:
Fixpreis
Provision:
3.00 %

Fakten

Objektnummer:
3127
Objekttyp:
Wohnung
Wohnfläche:
65,86 m²
Zimmer:
3
Badezimmer:
1
Toilette:
1
Baujahr:
1900
Altbau:
Ja
Verfügbarkeit:
Verfügbar

Beschreibung

Nur wenige Gehminuten von der U1 entfernt gelangt diese 3-Zimmer-Wohnung mit Gestaltungspotenzial zum Verkauf. Die Wohnung befindet sich im Erdgeschoss eines klassischen Wiener Wohnhauses.

Die Wohnung wurde 2004 umfassend saniert und mehrere Jahre vom Eigentümer selbst genutzt. In den letzten Jahren war sie vermietet und befindet sich aktuell in einem gebrauchsbedingten, etwas abgewohnten Zustand, bietet jedoch eine solide Grundlage für eine Modernisierung nach eigenen Vorstellungen.

Dank des gut nutzbaren Grundrisses eignet sich die Wohnung ideal für Käufer, die ihr zukünftiges Zuhause individuell gestalten möchten.

Highlights auf einen Blick

* ca. 65,86 m² Wohnfläche
* 3 Zimmer
* Wohnküche als zentraler Wohnbereich
* zwei große Zimmer
* Badezimmer mit Fenster und Badewanne
* separates WC mit Fenster
* Altbau mit angenehmer Raumhöhe
* Wohnung wurde 2004 umfassend saniert
* zuletzt vermietet – aktuell gebrauchsbedingt abgewohnt
* Gestaltungs- und Modernisierungspotenzial
* nur wenige Gehminuten zur U1

Raumaufteilung

* Vorraum
* Wohnküche
* Zimmer
* Zimmer
* Badezimmer
* separates WC

Der zentrale Wohnbereich ist als Wohnküche gestaltet und bietet ausreichend Platz für einen Wohn- und Essbereich.

Zusätzlich stehen zwei gut geschnittene Zimmer zur Verfügung, die sich flexibel als Schlafzimmer, Kinderzimmer oder Arbeitszimmer nutzen lassen.

Das Badezimmer verfügt über ein Fenster und ist mit einer Badewanne ausgestattet. Ergänzt wird das Raumangebot durch ein separates WC.

Die Beheizung erfolgt über eine Gasetagenheizung.

 

Gebäude & Allgemeinflächen

Für zukünftige Erhaltungsarbeiten steht zudem eine Rücklage von rund € 60.000 zur Verfügung. Ein Teil der monatlichen Vorschreibung entfällt auf die Darlehensrückzahlung für die bereits erfolgte Dachsanierung. Diese läuft voraussichtlich bis 2028; danach reduziert sich die monatliche Vorschreibung um derzeit rund € 65.

Lagebeschreibung

Die Wohnung befindet sich in einem urbanen Wohngebiet mit sehr guter Infrastruktur.

In der näheren Umgebung befinden sich zahlreiche Einkaufsmöglichkeiten, Supermärkte, Bäckereien, Restaurants sowie diverse Dienstleistungsbetriebe, die den täglichen Bedarf bequem abdecken. Auch die Favoritenstraße, eine der wichtigsten Einkaufsstraßen des Bezirks, ist gut erreichbar und bietet ein vielfältiges Angebot an Geschäften und Gastronomie.

Die U-Bahn-Station Reumannplatz (U1) ist in etwa 3–4 Gehminuten erreichbar und ermöglicht eine rasche Verbindung in die Wiener Innenstadt sowie zu weiteren wichtigen Knotenpunkten der Stadt.

Ein beliebter Treffpunkt in der Umgebung ist der bekannte Eissalon Tichy, der seit Jahrzehnten zu den traditionsreichen Institutionen des Bezirks zählt. Ebenfalls nur wenige Minuten entfernt befindet sich das Amalienbad, eines der bekanntesten Wiener Hallenbäder.

Für Erholung im Grünen sorgt zudem der Puchsbaumpark, der ebenfalls in wenigen Gehminuten erreichbar ist.

Die Lage verbindet somit eine sehr gute Infrastruktur, öffentliche Verkehrsanbindung und eine lebendige Grätzl-Atmosphäre.

Besichtigung

Sie möchten mehr erfahren oder die Wohnung persönlich besichtigen? 

Hier Termin online buchen [https://www.remax.at/de/im/silvija-fijuljanin-p263549/1662-3126#terminanfrage-messages]

 

Beim angebotenen Preis handelt es sich um einen Richtpreis. Der tatsächliche Kaufpreis kann über oder unter diesen Preis liegen. Wir behalten uns das Recht vor, bei entsprechender Nachfrage den Verkauf über ein digitales Angebotsverfahren abzuwickeln. *) Näheres zu DAVE auf www.remax.at/dave

Der Vermittler ist als Doppelmakler tätig.
Überlegen Sie den Verkauf Ihrer Wohnung, Ihres Grundstücks oder Ihres
Hauses bzw. kennen Sie jemanden der eine Immobilie verkaufen möchte?
Die Beratung ist unverbindlich und die Wertermittlung kostenlos!
Wir bitten um Verständnis, dass auf Grund der Nachweispflicht gegenüber dem Eigentümer nur Anfragen mit vollständigen Kontaktdaten (Name, Adresse, Tel., Email) beantwortet werden können.
Ordnungsgemäß verweisen wir auf unsere Funktion als Doppelmakler.
Es gelten die Allgemeinen Bestimmungen des Maklergesetzes -> für Details siehe Nebenkostenübersicht.
Für weitere Fragen bzw. zur Vereinbarung eines Besichtigungstermins steht Ihnen Silvija Fijuljanin unter 0699 1976 24 12 bzw. sf@remax-4you.at zur Verfügung.
Beschreibung weiterlesen

Energieeffizienz

HWB Klasse:
D
fGEE Klasse:
D
Energieausweisart:
Energiebedarfs-ausweis

Lageplan

1100 Wien | Wien 10., Favoriten

Lade...
Silvija Fijuljanin

Silvija Fijuljanin

RE/MAX 4You in Wien-Hernals

Lade...

Fotomix

Wohnküche Wohnküche Wohnküche Wohnküche Zimmer Schlafzimmer Badezimmer Toilette Hauseingang Innenhof Hausansicht Skizze Gutschein Lage Grundriss