NEU - 34,24 m² | ca. 37 m² Terrasse | 1. OG | Bezug nach Vereinbarung

Wohnung zur Miete in 3100 St. Pölten - Gesamtmiete: 549,00 € / Objektnummer: 5773
Ausstattung: Barrierefrei Boden Fahrstuhl Wohnküche / offene Küche Bad Kabel/Satelliten-TV Sicherheitskamera Fahrradraum Zentralheizung Terrasse
Einzelwohnraum
Einzelwohnraum
Kochnische / KI-bearbeitet
Kochnische Detailansicht
Badezimmer / WC
Terrasse
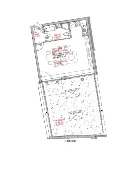
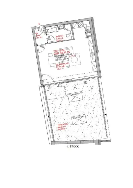
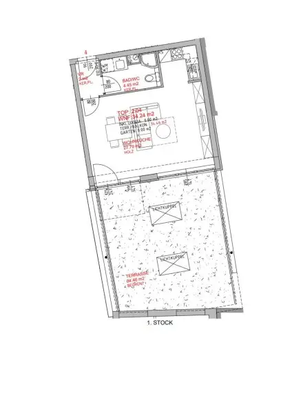
Grundrissskizze

Preisinformationen

Gesamtmiete:
549,00 € / Monat
Betriebskosten netto:
128,40 € / Monat
Umsatzsteuer:
49,91 €
Kaution:
4 Bruttomonatsmieten
Provision:
Gemäß Erstauftraggeberprinzip bezahlt der Abgeber die Provision.

Fakten

Objektnummer:
5773
Objekttyp:
Wohnung
Terrasse:
1
Keller Fläche:
2 m²
Wohnfläche:
34,24 m²
Zimmer:
1
Badezimmer:
1
Stockwerk:
1
Neubau:
Ja
Zustand:
Gepflegt
Verfügbarkeit:
Verfügbar

Beschreibung

34,24 m² Wohnfläche + ca. 37 m² Terrasse 
1. OG - Bezug nach Vereinbarung  

Raumaufteilung: Vorzimmer, Einzelwohnraum mit Kochnische, Terrasse, Badezimmer mit Dusche und Badewanne und WC

Miete gesamt: € 549,- inkl. BK/USt.

Kaution: 4 BMM

Wir weisen darauf hin, dass zwischen dem Vermittler und dem zu vermittelnden Dritten ein familiäres oder wirtschaftliches Naheverhältnis besteht.

Der Immobilienmakler erklärt, dass er – entgegen dem in der Immobilienwirtschaft üblichen Geschäftsgebrauch des Doppelmaklers – einseitig nur für den Vermieter tätig ist.

Infrastruktur / Entfernungen

Gesundheit
Arzt <250m
Apotheke <250m
Klinik <750m
Krankenhaus <1.250m

Kinder & Schulen
Schule <250m
Kindergarten <250m
Universität <1.000m
Höhere Schule <250m

Nahversorgung
Supermarkt <250m
Bäckerei <250m
Einkaufszentrum <250m

Sonstige
Bank <250m
Geldautomat <250m
Polizei <250m
Post <250m

Verkehr
Bus <250m
Bahnhof <500m
Autobahnanschluss <3.000m
Flughafen <6.000m

Angaben Entfernung Luftlinie / Quelle: OpenStreetMap
Beschreibung weiterlesen

Lage und Verkehrsanbindung

Inmitten der Fußgängerzone
2 Minute vom Hauptbahnhof & P+R ÖBB entfernt
2 Minuten vom Rathausplatz gelegen
6 Minuten zum Universitätsklinikum St. Pölten
27 Minuten mit dem Zug zum Wien Hauptbahnhof
55 Minuten mit dem Zug zum Flughafen Wien

Domplatz, Kremser Gasse

Energieeffizienz

HWB:
77,4 kWh/(m²*a)
HWB Klasse:
C
fGEE:
1,21
fGEE Klasse:
B
Energieausweisart:
Energiebedarfs-ausweis
Gültig bis:
13.04.2030

Grundriss

Lageplan

3100 St. Pölten | Sankt Pölten (Stadt)

Lade...
Marion Kleebinder

Marion Kleebinder
Immobilienvermittlung

IMMOCENTRAL Immobilientreuhand GmbH

Lade...

Fotomix

Einzelwohnraum Einzelwohnraum Kochnische / KI-bearbeitet Kochnische Detailansicht Badezimmer / WC Terrasse