NEU - 360 TOUR //DACHGESCHOSSWOHNUNG NAHE JÖRGERBAD

Wohnung zur Miete in 1170 Wien - Gesamtmiete: 1.799,05 €

Preisinformationen

Gesamtmiete:
1.799,05 € / Monat
Vermittlungsprovision:
Ja

Fakten

Objekttyp:
Wohnung
Balkon:
1
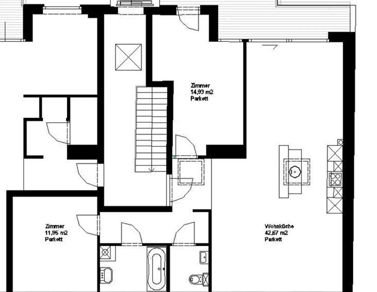
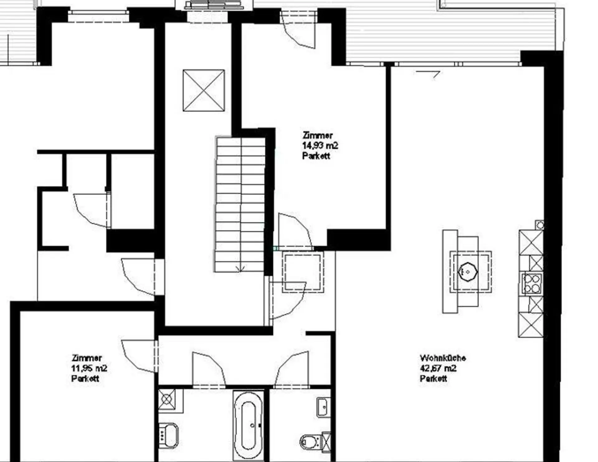
Nutzfläche:
84 m²
Zimmer:
3
Neubau:
Ja
Verfügbarkeit:
Verfügbar

Beschreibung

DACHGESCHOSSWOHNUNG NAHE JÖRGERBAD Nutzfläche: ca. 84,84m² Balkon: ca. 12,40m² Keller: ca. 3,00m² Raumhöhe von ca. 3,50 Metern  Raumaufteilung: großzügigen 42m² Wohnzimmer.  hochwertige Küche, Balkon mit 12,40m² i…

KALANDRA Immobilien Robert Kalandra e.U.

Lade...

Fotomix

Bild 1 Bild 2 Bild 3 Bild 4 Bild 5 Bild 6