NEU - 4 Zimmer - DG - Wohnung mit 2 Bädern und 8m² Terrasse! Weitblick! Hochwertige Ausstattung!

Wohnung zur Miete in 1060 Wien - Gesamtmiete: 2.695,00 € / Objektnummer: 8244
Ausstattung: Fahrstuhl Klimaanlage Sicherheitskamera Zentralheizung Terrasse
Wohnzimmer
sonnige Terrasse
Wohnzimmer - Blick zur Küche
Küche
Master-Schlafzimmer mit en suite Badezimmer
en suite Badezimmer
Zimmer (2)
Zimmer (3)
sonnige Terrasse
Badezimmer
WC
zentrales Vorzimmer
Vorraum
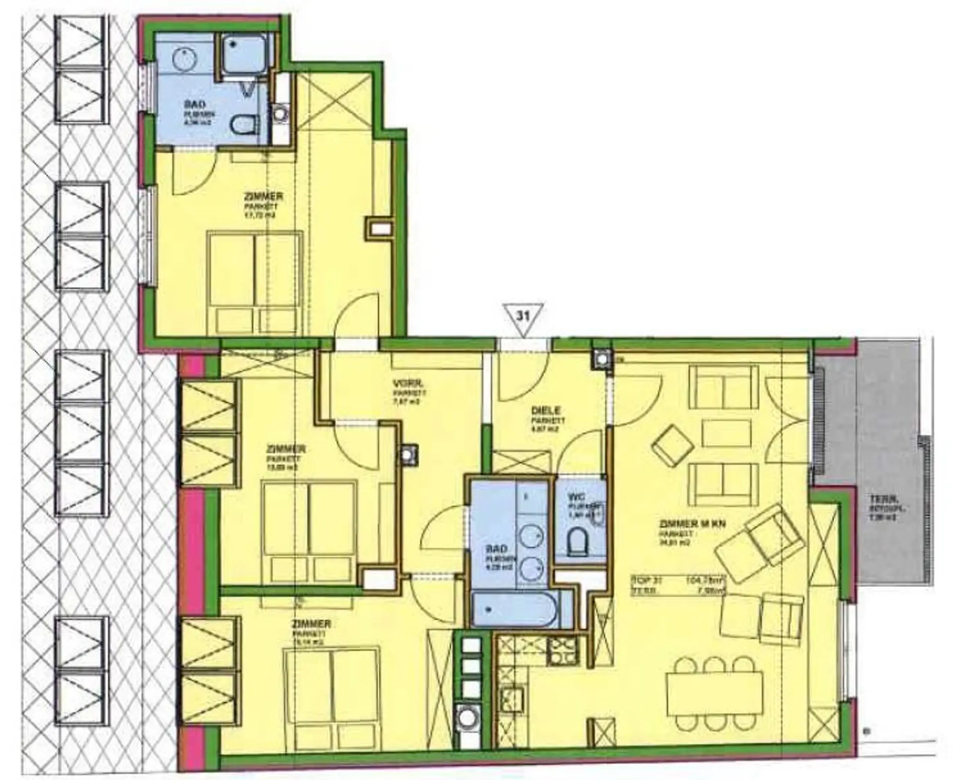
GRUNDRISS Top M31
Waschküche und Garage
Fahrradabstellraum
Lageplan und Öffis
Immy

Preisinformationen

Gesamtmiete:
2.695,00 € / Monat
Betriebskosten netto:
235,76 € / Monat
Umsatzsteuer:
245,00 €
Kaution:
8.100,00 €

Fakten

Objektnummer:
8244
Objekttyp:
Wohnung
Terrasse:
1
Wohnfläche:
105 m²
Zimmer:
4
Schlafzimmer:
3
Badezimmer:
2
Toilette:
2
Stockwerk:
6
Neubau:
Ja
Zustand:
Gepflegt
Verfügbarkeit:
Verfügbar

Beschreibung

AB SOFORT ZUR VERMIETUNG - MODERNE 4-Zimmer-WOHNUNG - MOLLARDGASSE - Dachgeschoß - 2 Badezimmer / 2 WCs

4 Zimmer - DG - Neubauwohnung (104,78m²) mit 7,98m² Terrasse auf Wohnebene im 6. Bezirk in der beliebten Mollardgasse, Nähe Pilgramgasse und Naschmarkt.

BEI DEN FOTOS HANDELT ES SICH UM REFERENZFOTOS einer ausstattungsgleichen Wohnung aus dem selben Haus - ebenfalls im Dachgeschoß. Das heißt, Ausstattung und Optik der Küche, vom Bad/WC, sowie Böden… alles ist absolut ident. Nur die Raumaufteilung ist etwas anders.
Original - Fotos werden ehestmöglich nachgereicht.

RAUMAUFTEILUNG IN STICHWORTEN
• Vorraum und Diele
• großzügiges Wohnzimmer mit
• halboffener Küche
• ostseitige Terrasse (vom Wohnzimmer erreichbar)
• 3 Schlafzimmer
• Bad1 mit Badewanne, Doppelwaschbecken und Waschmaschinenanschluss
• Bad2 mit Dusche, Waschbecken und WC
• separates WC mit Waschbecken
• Kellerabteil

BESONDERHEITEN DES OBJEKTS
• Dachgeschoß
• tolle Raumaufteilung
• Parkettboden
• Außenjalousien
• hochwertige Ausstattung
• 2 Badezimmer, 2 WCs
• tolle Lage
• optimale Infrastruktur
• Geschäfte für den täglichen Bedarf fußläufig erreichbar

SEHR GUTE ÖFFENTLICHE VERKEHRSANBINDUNG
• Autobuslinien: 12A, 13A, 14A, 57A, 59A
• U4 Pilgramgasse

ZUSÄTZLICHE MONATLICHE KOSTEN
• Heizung, Wasser - werden direkt mit dem Energiedienstleister abgerechnet
• Strom - wird direkt mit dem Energiedienstleister abgerechnet
• ggf. TV/Internet, Haushaltsversicherung, GIS, o.Ä.

ERSTZAHLUNG
• Kaution: 3 Monatsmieten
• Erste Monatsmiete
• Bearbeitungsgebühr Hausverwaltung € 160,- bto

VERTRAGSBEDINGUNGEN
• Befristung: 5 Jahre
• Kündigungsverzicht: 12 Monate
• Kündigungsfrist: 3 Monate
• benötigtes Mindestnettoeinkommen (Haushalt): doppelte Monatsmiete
• der Mietzins ist gemäß VPI wertgesichert

BENÖTIGTE UNTERLAGEN FÜR ANMIETUNG
• Mietanbot (erhalten Sie von uns)
• Selbstauskunft (erhalten Sie von uns)
• Lichtbildausweis
• 3 aktuelle in Österreich oder der EU ausgestellte Lohnzettel oder ein offizieller Einkommenssteuerbescheid vom zuständigen Finanzamt

Falls Sie Fragen haben oder einen Besichtigungstermin vereinbaren möchten, stehe ich Ihnen selbstverständlich gerne zur Verfügung. Ich freue mich auf Ihre Kontaktaufnahme!

__
Angaben gemäß gesetzlichem Erfordernis:
Miete 2214,24 zzgl 10% USt.
Betriebskosten 235,76 zzgl 10% USt.
Umsatzsteuer 245
---------------------------------
Gesamtbetrag 2695
---------------------------------
Heizwärmebedarf: 37.29 kWh/(m²a)
Klasse Heizwärmebedarf: B
Beschreibung weiterlesen

Energieeffizienz

HWB:
37,2 kWh/(m²*a)
HWB Klasse:
B
Energieausweisart:
Energiebedarfs-ausweis

Dokumente

Kerstin Fried

Kerstin Fried

Hubner Immobilien GmbH

Lade...

Fotomix

Wohnzimmer sonnige Terrasse Wohnzimmer - Blick zur Küche Küche Master-Schlafzimmer mit en suite Badezimmer en suite Badezimmer Zimmer (2) Zimmer (3) sonnige Terrasse Badezimmer WC zentrales Vorzimmer Vorraum GRUNDRISS Top M31 Waschküche und Garage Fahrradabstellraum Lageplan und Öffis Immy