NEU - 4-ZIMMER SCHÖNE GROSSE TERRASSENWOHNUNG mit Fernblick

Wohnung zur Miete in 1120 Wien - Gesamtmiete: 2.030,74 € / Objektnummer: 4665
Ausstattung: Fahrstuhl Kabel/Satelliten-TV Zentralheizung Terrasse

Preisinformationen

Gesamtmiete:
2.030,74 € / Monat
Betriebskosten netto:
174,00 € / Monat
Heizkosten netto:
182,12 €
Umsatzsteuer:
164,74 €
Kaution:
6.100,00 €
Provision:
Gemäß Erstauftraggeberprinzip bezahlt der Abgeber die Provision.

Fakten

Objektnummer:
4665
Objekttyp:
Wohnung
Terrasse:
1
Wohnfläche:
107 m²
Zimmer:
4
Badezimmer:
2
Toilette:
2
Baujahr:
2001
Zustand:
Neuwertig
Verfügbarkeit:
Verfügbar

Beschreibung

Sehr helle, ruhige Terrassenwohnung im Dachgeschoß eines gepflegten Neubaus nächst Philadelphiabrücke mit insgesamt vier Zimmer, ca 107m² Wohnnutzfläche sowie 10,83m² Westterrasse.
Die Wohnung wird beidseitig belichtet und hat Schrägen mit hohem Kniestock. Die Glastüren zur Terrasse im Wohnzimmer können zu Gänze geöffnet werden (faltbar), sodaß im Sommer die Terrasse als erweitertes Wohnzimmer genutzt werden kann. Jedes der 3 Schlafzimmer verfügt über ein eigenes Bad, davon 2 Wannenbäder mit Dusche und WC, eines nur mit Dusche. Sämtliche Dachschrägenfenster verfügen über innenliegenden Sonnenschutz und die Terrassentüren über Jalousien.
Verkehrstechnisch liegt die Wohnung optimal, die U-Bahnstation (U-6) erreichen Sie in 3 Gehminuten, ebenso ist die Meidlinger Hauptstraße mit sehr guter Infrastruktur in wenigen Minuten zu erreichen und der gesamte Wienerberg mit seinen Bürotürmen verfügt ebenfalls über Geschäfte und Lokale. Der ÖBB-Bahnhof Meidling (Südbahn) ist ebenfalls in unmittelbarer Nähe, zur Süd-Autobahn A1 sind es ebenfalls nur wenige Minuten.

Ein Garagenplatz kann in der hauseigenen Tiefgarage um € 120,- inkl. BK und UST. angemietet werden. Ein Honorar für Übergabe und Bearbeitung in der Höhe von € 240,- inkl. UST wird von der Hausverwaltung incl eingehoben.
Zum angegebenen Mietpreis kommt monatlich eine Fernwärme-Pauschale von €218.54,- inkl. UST. hinzu
Die anfallenden Stromkosten werden über den Mieter oder Mieterin selbst getragen.
Die zwei Warmwasserboiler werden mit Strom betrieben und ebenfalls mit der Stromrechnung beglichen.

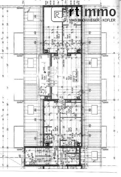
RAUMAUFTEILUNG:
Wohneinheit 1:
- Zimmer 11,60m²
- kleines Bad 1,75m²
- WC am Gang 1,56m²

Wohneinheit 2:
- Zimmer 11,00m²
- großes Bad 7,49m²

Wohneinheit 3:
- Zimmer 11,0 m²
- großes Bad 7,45m²

- Wohnraum 32,82m²
- Terrasse 10,83m²
- Küche 6,29m²
- Vorraum / Essdiele 15,85m²
- Abstellraum 1,00m²

 

ACHTUNG: der erste Plan ist eine Skizze, es gibt nicht vier sondern nur drei Bäder und die rechte "Wohneinheit" hat statt zwei Bädern ein größeres Zimmer.
AUSSTATTUNG:
Parketten, Jalousien, Sanitärbereiche und Küche Fliesen

 

KOSTEN einmalig:

€6.100,- Kaution

€240,- Servicepauschale HW Übergabe und Bearbeitung

 

KOSTEN monatlich:

€1.599,11,- Miete

€191,40,- Betriebskosten

€21,69,- Liftkosten

€218,54,- Heizkosten

Ein Kellerabteil ist vorhanden.
BITTE HABEN SIE DAFÜR VERSTÄNDNIS, DASS WIR NUR VOLLSTÄNDIG AUSGEFÜLLTE ANFRAGEN (NAME, ANSCHRIFT, TEL.NR.) BEARBEITEN KÖNNEN!

 

Der Immobilienmakler erklärt, dass er – entgegen dem in der Immobilienwirtschaft üblichen Geschäftsgebrauch des Doppelmaklers – einseitig nur für den Vermieter tätig ist.

BITTE HABEN SIE DAFÜR VERSTÄNDNIS, DASS WIR NUR VOLLSTÄNDIG AUSGEFÜLLTE ANFRAGEN (NAME, PLZ, ANSCHRIFT, TEL.NR.) BEARBEITEN KÖNNEN!

Infrastruktur / Entfernungen

Gesundheit
Arzt <500m
Apotheke <500m
Klinik <500m
Krankenhaus <1.000m

Kinder & Schulen
Schule <500m
Kindergarten <500m
Universität <1.500m
Höhere Schule <500m

Nahversorgung
Supermarkt <500m
Bäckerei <500m
Einkaufszentrum <500m

Sonstige
Geldautomat <500m
Bank <500m
Post <500m
Polizei <1.000m

Verkehr
Bus <500m
U-Bahn <500m
Straßenbahn <500m
Bahnhof <500m
Autobahnanschluss <2.000m

Angaben Entfernung Luftlinie / Quelle: OpenStreetMap
Beschreibung weiterlesen

Lage und Verkehrsanbindung

PHILADELPHIABRÜCKE / WIENERBERG

Energieeffizienz

HWB:
45,1 kWh/(m²*a)
HWB Klasse:
C
fGEE:
1,77
Energieausweisart:
Energiebedarfs-ausweis
Gültig bis:
09.07.2033

Dokumente

Grundrisse

Lageplan

1120 Wien | Wien 12., Meidling

Lade...
Oleg Gumeniuk

Oleg Gumeniuk

RT Immobilien Mag. Buchwieser & Kofler GmbH

Virtuelle Tour

Anrufen
Lade...

Fotomix

Bild 1 Bild 2 Bild 3 Bild 4 Bild 5 Bild 6 Bild 7 Bild 8 Bild 9 Bild 10 Bild 11 Bild 12 Bild 13 Bild 14 Bild 15 Bild 16 Bild 17 Bild 18 Bild 19 Bild 20 Bild 21