NEU - 42522 m² Landwirtschaftsfläche in Oberchristkindl € 10/m²

Landwirtschaft zum Kauf in 4400 Steyr - Kaufpreis: 425.220 € / Objektnummer: 3190
Ortho Grund
Fläwi
GB Auszug
Ortho Adressen
Ortho Kataster

Preisinformationen

Kaufpreis:
425.220 €
Preisinfos:
Fixpreis
Provision:
3.60 %

Fakten

Objektnummer:
3190
Objekttyp:
Landwirtschaft
Grundstücksfläche:
42.522 m²
Verfügbarkeit:
Verfügbar

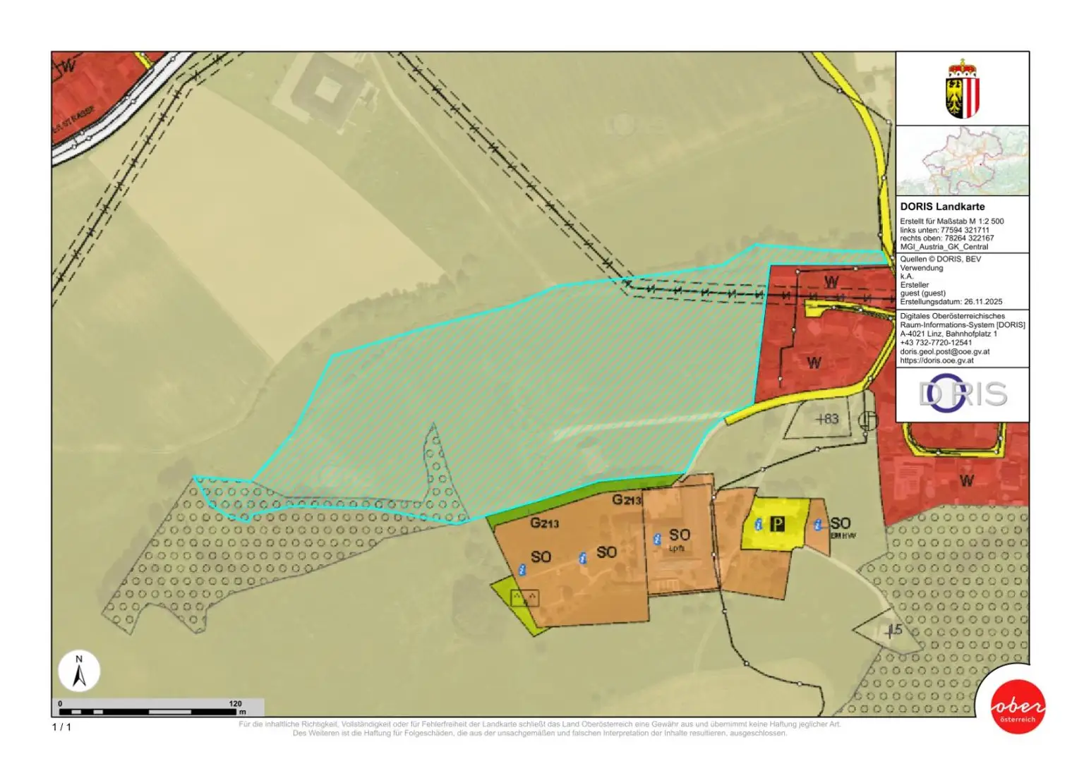
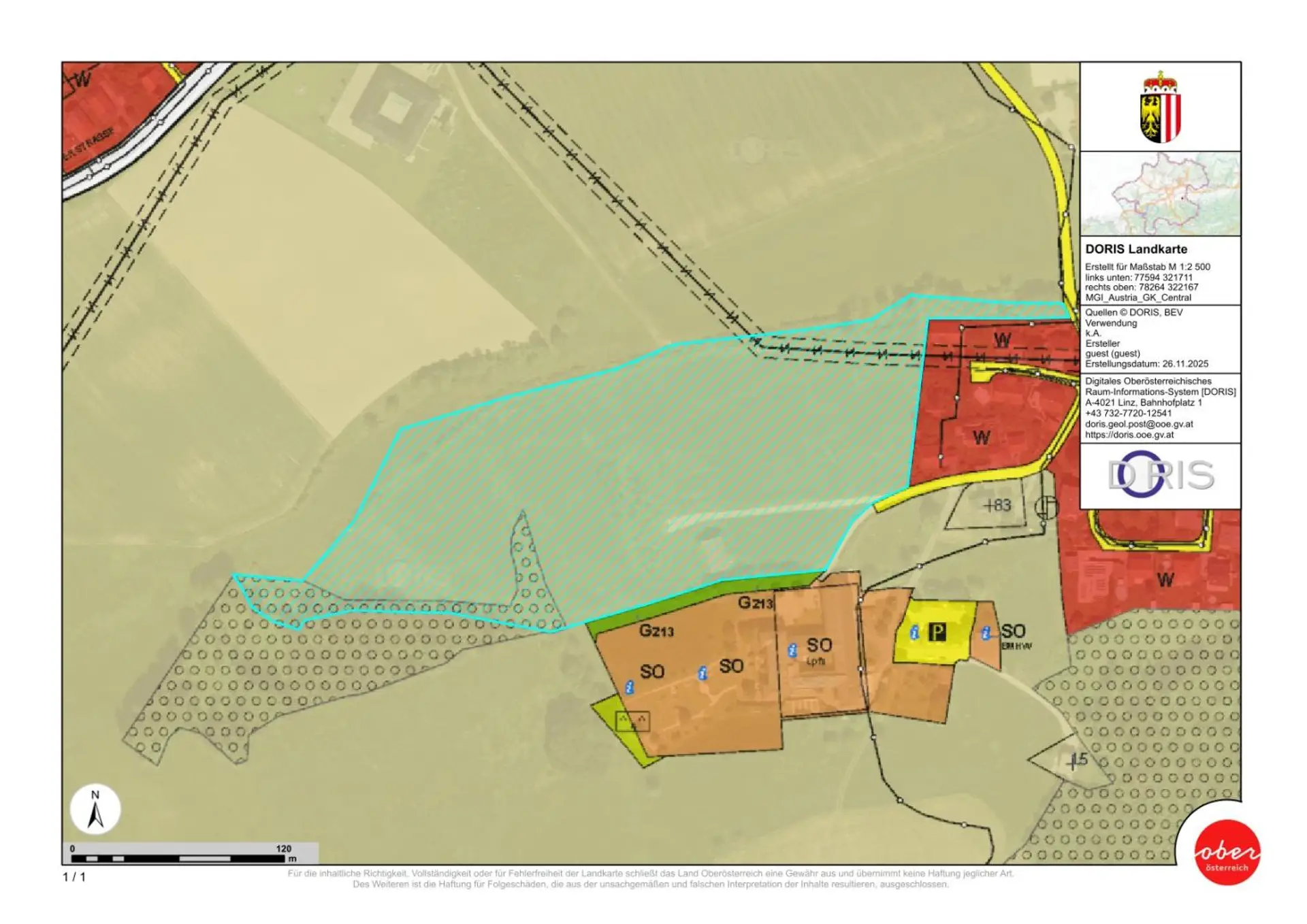
Beschreibung

Diese Landwirtschaftliche Fläche besteht aus:


G GST-Fläche * 42522 m²
Bauf.(10) 184 m²
Landw(10) 38717 m²
Landw(30) 1821 m²
Wald(10) 1800 m²
Legende:
G: Grundstück im Grenzkataster
*: Fläche rechnerisch ermittelt
Bauf.(10): Bauflächen (Gebäude)
Landw(10): landwirtschaftlich genutzte Grundflächen (Äcker, Wiesen oder Weiden)
Landw(30): landwirtschaftlich genutzte Grundflächen (Verbuschte Flächen)
Wald(10): Wald (Wälder)

Der Preis versteht sich als Mischpreis für das gesamte Grundstück.

Kaufnebenkosten:
Ca. 10 % vom tatsächlichen Kaufpreis (3,5% Grunderwerbssteuer, 1,1 % Grundbucheintragungsgebühr,
1,2 % Vertragserrichtungskosten, Makler 3,6 %). Die Informationen und Angaben beruhen auf Unterlagen
des Auftraggebers und sind ohne Gewähr.
Beschreibung weiterlesen

Lageplan

4400 Steyr | Steyr-Land

Lade...
Jochen Beranek

Jochen Beranek

RE/MAX Alpha in Steyr

Anrufen
Lade...

Fotomix

Ortho Grund Fläwi GB Auszug Ortho Adressen Ortho Kataster