NEU - 4400 Steyr, Blumauergasse 26 - Studentenwohnheim

Wohnung zur Miete in 4400 Steyr - Gesamtmiete: 672,00 € / Objektnummer: 3070/13831
20220825_120353_Top20
IMG_0288_Top_20
Vis_Stuwo_Steyr_WHG_Typ20_02
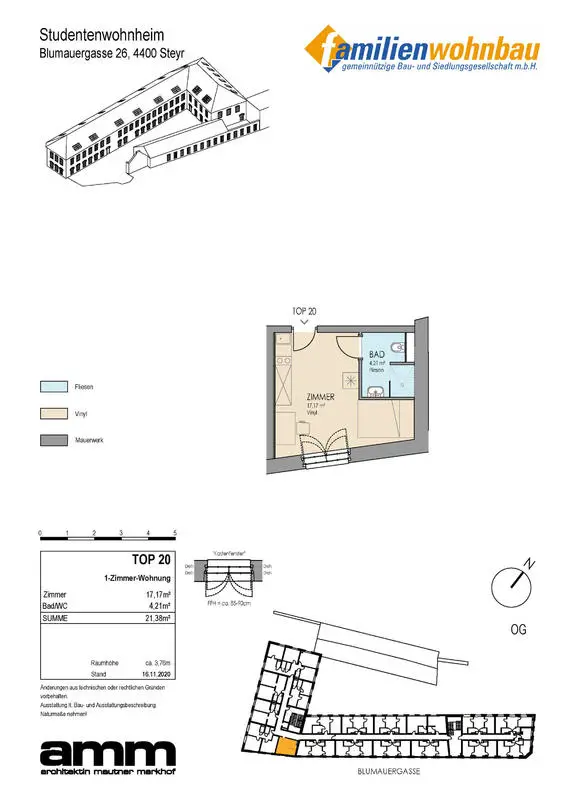
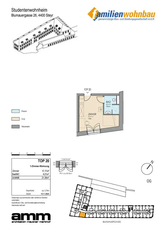
amm1104_StudentenwohnheimSteyr_Verkaufsplaene_Top20
20210924_094635_Ansicht_Baum
20210924_090347_Ansicht
Ansicht_Eingangstuer
_Z2A0949_Stiegenhaus_Eingang
20211124_105235_Kueche_Aufenthaltsraum
20211124_114205_Fernsehlounge

Preisinformationen

Gesamtmiete:
672,00 € / Monat
Nettomiete:
610,91 € / Monat
Umsatzsteuer:
61,09 €
Preisinfos:
inkl. Pauschale für Strom, Wasser und Heizung
Kaution:
2.015,00 €

Fakten

Objektnummer:
3070/13831
Objekttyp:
Wohnung
Wohnfläche:
21,38 m²
Gesamtfläche:
21,38 m²
Zimmer:
1
Stockwerk:
1
Neubau:
Ja
Verfügbarkeit:
Verfügbar

Beschreibung

MACH DIE FABRIK ZU DEINER HOMEBASE!

EINZELZIMMER ab sofort beziehbar!

Zimmer:

Einzelbett
Leselampe
Lattenrost
Matratze
Nachtboard
1 oder 2 Kleiderschränke mit je 2 Regalböden
Schreibtisch
Drehstuhl
Garderobenboard mit 4 Haken
Spiegel ca. 50 x 155 cm
Gegensprechanlage
Küchenzeile mit Ober- und Unterschränken: Cerankochfeld mit 2 Kochzonen, Mikrowelle mit Grillfunktion, Kühlschrank mit Gefrierkombination, Integrierte Arbeitsflächenbeleuchtung und Spüle mit darunterliegendem Müllauszug

BAD/WC:

Duscharmatur mit Schubstange verchromt
Spiegel in Fliesenebene
Etagere / Keramik unterhalb des Spiegels
Handtuchhaken
Toilettenpapierhalterung
WC-Bürstengarnitur

Großzügige Gemeinschaftsbereiche mit:

Foyer mit Gemeinschaftsküche und Barbereich
Gut ausgestatteter Fitnessraum
Freibereich im Atrium mit Tischtennis, Tischfußball
Lounge mit Sofa und Flatscreen im Dachgeschoss
Waschküche
Fahrradraum
Stellplätze im freien können zusätzlich angemietet werden
GRATIS WLAN

 

DEIN RÜCKZUGSORT im Einzelzimmer!

Du willst auf eigenen Beinen stehen?
Du studierst und suchst nach einer richtig coolen Bleibe?

Egal ob Du Dich für ein WG-Zimmer oder eine Garconiere entscheidest - jedes Zimmer ist möbliert und deckt mit Schreibtisch, Schreibtischsessel, Bett oder Hochbett und genügend Stauraum alle Bedürfnisse ab. Außerdem ist jede Wohneinheit mit einer eigenen Küche ausgestattet.

Du möchtest Deine eigenen 4 Wände haben aber dennoch nicht ganz alleine wohnen?

Gerade wenn wichtige Prüfungen anstehen, brauchst du Ruhe und Zeit für Dich, wo Du dich in Deinem Zimmer zurückziehen kannst!
Nach Prüfungswochen kannst Du dann gemeinsam mit Deinen Freunden aus der WG in der Lounge vor dem Flatscreen chillen, die Tischfussballrunde im Freien genießen oder dich im Fitnessraum auspowern.


Bei Interesse ruf uns einfach an und informiere dich. Wir freuen uns auf deinen Anruf!

 

 

 

 

Beschreibung weiterlesen

Energieeffizienz

Endenergiebedarf:
31,7 kWh/(m²*a)
HWB:
31,7 kWh/(m²*a)
HWB Klasse:
B
fGEE:
0,64
fGEE Klasse:
A+
Energieausweisart:
Energiebedarfs-ausweis

Dokumente

Sabrina Ecker

Sabrina Ecker

FAMILIENWOHNBAU gemeinnützige Bau- und Siedlungsges.m.b.H.

Lade...

Fotomix

20220825_120353_Top20 IMG_0288_Top_20 Vis_Stuwo_Steyr_WHG_Typ20_02 amm1104_StudentenwohnheimSteyr_Verkaufsplaene_Top20 20210924_094635_Ansicht_Baum 20210924_090347_Ansicht Ansicht_Eingangstuer _Z2A0949_Stiegenhaus_Eingang 20211124_105235_Kueche_Aufenthaltsraum 20211124_114205_Fernsehlounge