NEU - 4400 Steyr, Blumauergasse 26 - Studentenwohnheim

Wohnung zur Miete in 4400 Steyr - Gesamtmiete: 474,00 € / Objektnummer: 3070/13848
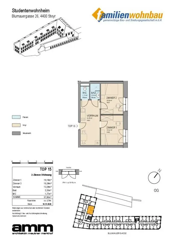
Grundriss_15_1
15_1a
15_Kueche
Grundriss_Top15_Zi1
20210924_094635_Ansicht_Baum
10211124_113655_Stiegenhaus
20211124_105554_Gang_Saeulen

Preisinformationen

Gesamtmiete:
474,00 € / Monat
Nettomiete:
430,91 € / Monat
Umsatzsteuer:
43,09 €
Preisinfos:
inkl. Pauschale für Strom, Wasser und Heizung
Kaution:
1.423,00 €

Fakten

Objektnummer:
3070/13848
Objekttyp:
Wohnung
Wohnfläche:
10,16 m²
Gesamtfläche:
10,16 m²
Zimmer:
1
Stockwerk:
1
Neubau:
Ja
Verfügbarkeit:
Verfügbar

Beschreibung

MACH DIE FABRIK ZU DEINER HOMEBASE!

beziehbar ab 01.02.2026


Zimmer:

Einzelbett
Leselampe
Lattenrost
Matratze
Nachtboard
1 oder 2 Kleiderschränke mit je 2 Regalböden
Schreibtisch
Drehstuhl

Aufenthaltsraum:

1 Esstisch
zwei Sessel
Garderobenboard mit 4 Haken
Spiegel ca. 50 x 155 cm
Gegensprechanlage
Küchenzeile mit Ober- und Unterschränken: Cerankochfeld mit 2 Kochzonen, Mikrowelle mit Grillfunktion, Kühlschrank mit Gefrierkombination, Integrierte Arbeitsflächenbeleuchtung und Spüle mit darunterliegendem Müllauszug

BAD:

Duscharmatur mit Schubstange verchromt
Spiegel in Fliesenebene
Etagere / Keramik unterhalb des Spiegels
Handtuchhaken

WC:

Toilettenpapierhalterung
WC-Bürstengarnitur

Großzügige Gemeinschaftsbereiche mit:

Foyer mit Gemeinschaftsküche und Barbereich
Gut ausgestatteter Fitnessraum
Freibereich im Atrium mit Tischtennis, Tischfußball
Lounge mit Sofa und Flatscreen im Dachgeschoss
Waschküche
Fahrradraum
Stellplätze im freien können zusätzlich angemietet werden
GRATIS WLAN

DEIN RÜCKZUGSORT

Du willst auf eigenen Beinen stehen?
Du studierst und suchst nach einer richtig coolen Bleibe?

Egal ob Du Dich für ein WG-Zimmer oder eine Garconniere entscheidest - jedes Zimmer ist möbliert und deckt mit Schreibtisch, Schreibtischsessel, Bett oder Hochbett und genügend Stauraum alle Bedürfnisse ab. Außerdem ist jede Wohneinheit mit einer eigenen Küche ausgestattet.

Du möchtest Deine eigenen 4 Wände haben aber dennoch nicht ganz alleine wohnen?

Gerade wenn wichtige Prüfungen anstehen, brauchst du Ruhe und Zeit für Dich, wo Du dich in Deinem Zimmer zurückziehen kannst!
Nach Prüfungswochen kannst Du dann gemeinsam mit Deinen Freunden aus der WG in der Lounge vor dem Flatscreen chillen, die Tischfussballrunde im Freien genießen oder dich im Fitnessraum auspowern.


Bei Interesse ruf uns einfach an und informiere dich. Wir freuen uns auf deinen Anruf!

Beschreibung weiterlesen

Energieeffizienz

Endenergiebedarf:
31,7 kWh/(m²*a)
HWB:
31,7 kWh/(m²*a)
HWB Klasse:
B
fGEE:
0,64
fGEE Klasse:
A+
Energieausweisart:
Energiebedarfs-ausweis

Dokumente

Sabrina Ecker

Sabrina Ecker

FAMILIENWOHNBAU gemeinnützige Bau- und Siedlungsges.m.b.H.

Lade...

Fotomix

Grundriss_15_1 15_1a 15_Kueche Grundriss_Top15_Zi1 20210924_094635_Ansicht_Baum 10211124_113655_Stiegenhaus 20211124_105554_Gang_Saeulen