NEU - 4400 Steyr, Blumauergasse 26 - Studentenwohnheim

Wohnung zur Miete in 4400 Steyr - Gesamtmiete: 474,00 € / Objektnummer: 3070/12415
20211124_111346_Top9_Zi2
20211124_110407_Top9_Kueche_Essen
20211124_110109_WC
20211124_110024_BAD
Vis_Stuwo_Steyr_WHG_Typ1_01_preview_20201126
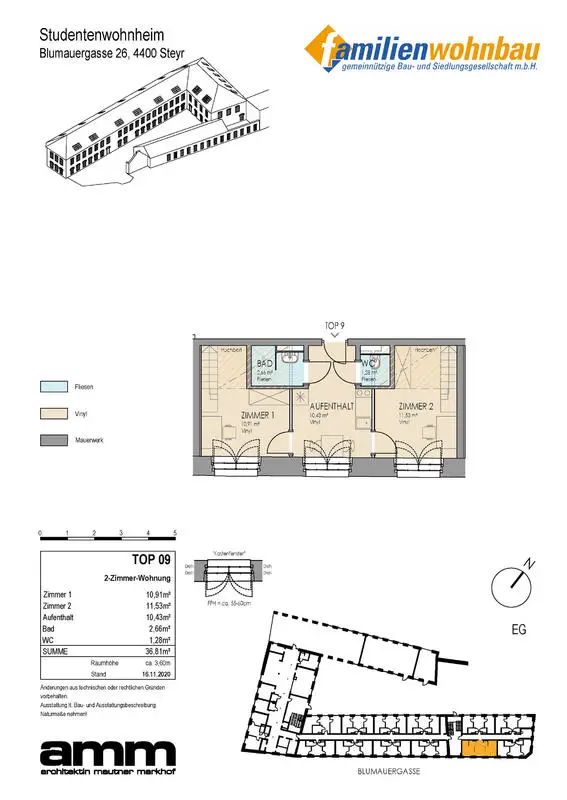
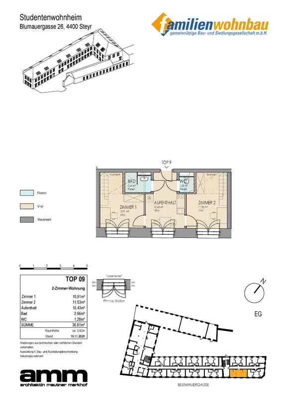
Grundriss_Top9_2
_Z2A0878_Ansicht_vonoben
_Z2A1022_Ansicht_Schild
20210924_090355_Ansicht
_Z2A0949_Stiegenhaus_Eingang
_Z2A0945_Aufenthaltsraum
_Z2A0948_Gang_Aufenthaltsraum
_Z2A0905_Blick_dreiBoegen_Aussenbereich
_Z2A0907_Aussenbereich

Preisinformationen

Gesamtmiete:
474,00 € / Monat
Nettomiete:
430,91 € / Monat
Umsatzsteuer:
43,09 €
Preisinfos:
inkl. Pauschale für Strom, Wasser und Heizung
Kaution:
1.423,00 €

Fakten

Objektnummer:
3070/12415
Objekttyp:
Wohnung
Wohnfläche:
11,53 m²
Gesamtfläche:
11,53 m²
Zimmer:
1
Neubau:
Ja
Verfügbarkeit:
Verfügbar

Beschreibung

MACH DIE FABRIK ZU DEINER HOMEBASE!

 Das Zimmer ist sofort beziehbar!

 

Zimmer:

Hochbett mit Aufstiegsmöglichkeit
18 variable Regalböden im Aufstiegsmöbel
Leselampe am Hochbett
Lattenrost
Matratze
Nachtboard
1 oder 2 Kleiderschränke mit je 2 Regalböden
Schreibtisch
Drehstuhl

Aufenthaltsraum:

1 Esstisch
zwei Sessel
Garderobenboard mit 4 Haken
Spiegel ca. 50 x 155 cm
Gegensprechanlage
Küchenzeile mit Ober- und Unterschränken: Cerankochfeld mit 2 Kochzonen, Mikrowelle mit Grillfunktion, Kühlschrank mit Gefrierkombination, Integrierte Arbeitsflächenbeleuchtung und Spüle mit darunterliegendem Müllauszug

BAD:

Duscharmatur mit Schubstange verchromt
Spiegel in Fliesenebene
Etagere / Keramik unterhalb des Spiegels
Handtuchhaken

WC:

Toilettenpapierhalterung
WC-Bürstengarnitur

Großzügige Gemeinschaftsbereiche mit:

Foyer mit Gemeinschaftsküche und Barbereich
Gut ausgestatteter Fitnessraum
Freibereich im Atrium mit Tischtennis, Tischfußball
Lounge mit Sofa und Flatscreen im Dachgeschoss
Waschküche
Fahrradraum
Stellplätze im freien können zusätzlich angemietet werden
GRATIS WLAN

 

DEIN RÜCKZUGSORT

Du willst auf eigenen Beinen stehen?
Du studierst und suchst nach einer richtig coolen Bleibe?

Egal ob Du Dich für ein WG-Zimmer oder eine Garconiere entscheidest - jedes Zimmer ist möbliert und deckt mit Schreibtisch, Schreibtischsessel, Bett oder Hochbett und genügend Stauraum alle Bedürfnisse ab. Außerdem ist jede Wohneinheit mit einer eigenen Küche ausgestattet.

Du möchtest Deine eigenen 4 Wände haben aber dennoch nicht ganz alleine wohnen?

Gerade wenn wichtige Prüfungen anstehen, brauchst du Ruhe und Zeit für Dich, wo Du dich in Deinem Zimmer zurückziehen kannst!
Nach Prüfungswochen kannst Du dann gemeinsam mit Deinen Freunden aus der WG in der Lounge vor dem Flatscreen chillen, die Tischfussballrunde im Freien genießen oder dich im Fitnessraum auspowern.


Bei Interesse ruf uns einfach an und informiere dich. Wir freuen uns auf deinen Anruf!

 

 

Beschreibung weiterlesen

Energieeffizienz

Endenergiebedarf:
31,7 kWh/(m²*a)
HWB:
31,7 kWh/(m²*a)
HWB Klasse:
B
fGEE:
0,64
fGEE Klasse:
A+
Energieausweisart:
Energiebedarfs-ausweis

Dokumente

Sabrina Ecker

Sabrina Ecker

FAMILIENWOHNBAU gemeinnützige Bau- und Siedlungsges.m.b.H.

Anrufen
Lade...

Fotomix

20211124_111346_Top9_Zi2 20211124_110407_Top9_Kueche_Essen 20211124_110109_WC 20211124_110024_BAD Vis_Stuwo_Steyr_WHG_Typ1_01_preview_20201126 Grundriss_Top9_2 _Z2A0878_Ansicht_vonoben _Z2A1022_Ansicht_Schild 20210924_090355_Ansicht _Z2A0949_Stiegenhaus_Eingang _Z2A0945_Aufenthaltsraum _Z2A0948_Gang_Aufenthaltsraum _Z2A0905_Blick_dreiBoegen_Aussenbereich _Z2A0907_Aussenbereich