NEU - 46,75 m² | Sofortbezug | Durchdachter Grundriss

Wohnung zur Miete in 3100 St. Pölten - Gesamtmiete: 649,00 € / Objektnummer: 5864
Ausstattung: Boden Fahrstuhl Wohnküche / offene Küche Bad Kabel/Satelliten-TV Sicherheitskamera Fahrradraum Abstellraum Zentralheizung
Wohnküche
Küche Detailansicht
Wohnküche
Wohnküche
Vorraum / Abstellraum
Schlafzimmer
Schlafzimmer
Badezimmer
Badezimmer / WC
Ausblick
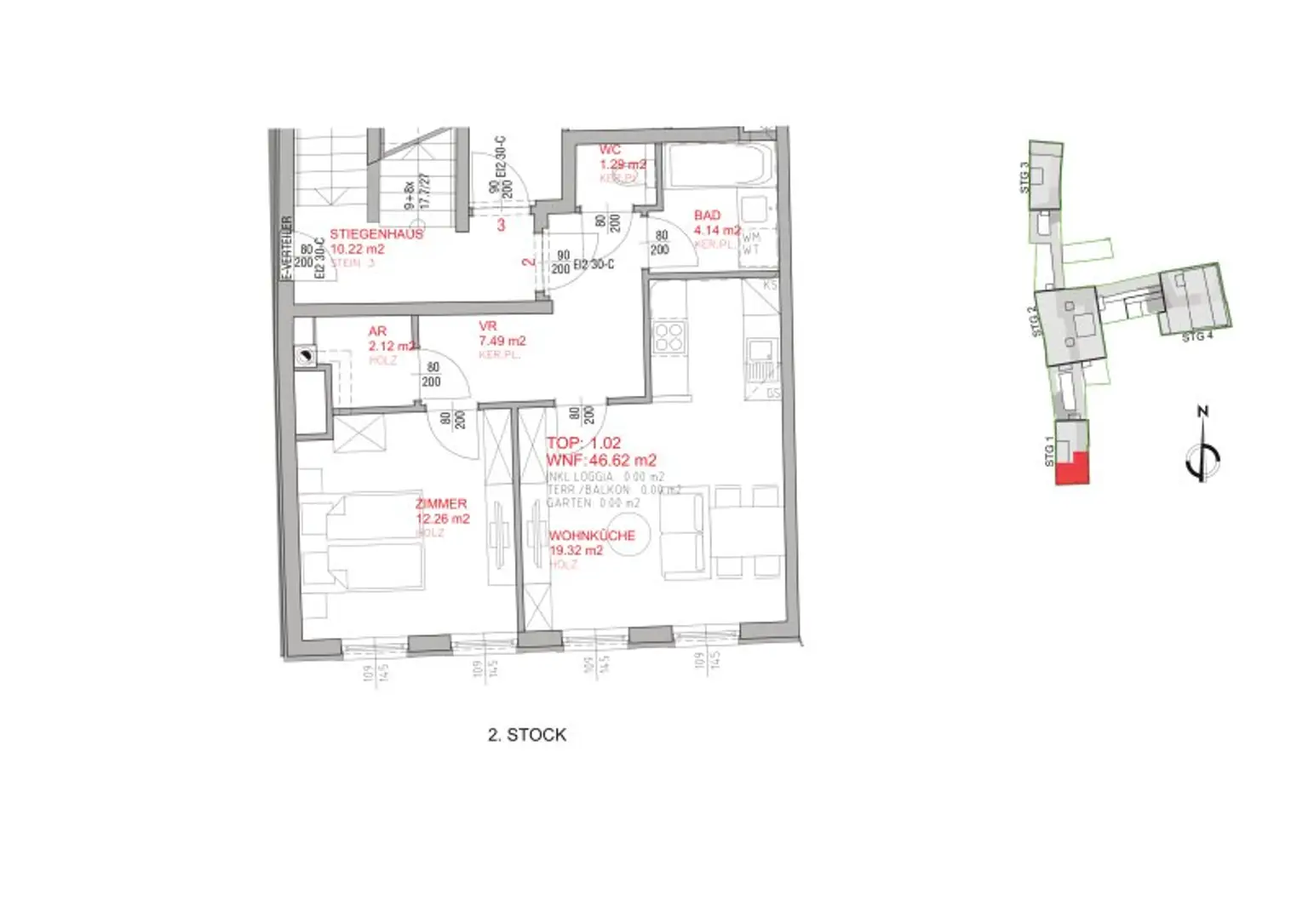
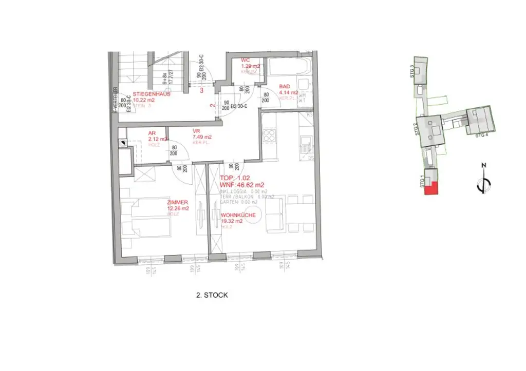
Grundrissskizze

Preisinformationen

Gesamtmiete:
649,00 € / Monat
Betriebskosten netto:
175,31 € / Monat
Umsatzsteuer:
59,00 €
Kaution:
4 Bruttomonatsmieten
Provision:
Gemäß Erstauftraggeberprinzip bezahlt der Abgeber die Provision.

Fakten

Objektnummer:
5864
Objekttyp:
Wohnung
Keller Fläche:
1 m²
Wohnfläche:
46,75 m²
Zimmer:
2
Badezimmer:
1
Toilette:
1
Stockwerk:
2
Neubau:
Ja
Letzte Sanierung:
2012
Zustand:
Neuwertig
Verfügbarkeit:
Verfügbar

Beschreibung

46,75 m² Wohnfläche 
2. OG ohne Lift – Sofortbezug 

Raumaufteilung: Vorraum, Wohnküche, Schlafzimmer, Bad, WC, Abstellraum

Miete gesamt: € 649,- inkl. BK/USt.

Kaution: 4 BMM 

 

Wir weisen darauf hin, dass zwischen dem Vermittler und dem zu vermittelnden Dritten ein familiäres oder wirtschaftliches Naheverhältnis besteht.

Der Immobilienmakler erklärt, dass er – entgegen dem in der Immobilienwirtschaft üblichen Geschäftsgebrauch des Doppelmaklers – einseitig nur für den Vermieter tätig ist.

Infrastruktur / Entfernungen

Gesundheit
Arzt <250m
Apotheke <250m
Klinik <1.000m
Krankenhaus <1.250m

Kinder & Schulen
Schule <250m
Kindergarten <250m
Universität <1.250m
Höhere Schule <250m

Nahversorgung
Supermarkt <250m
Bäckerei <250m
Einkaufszentrum <250m

Sonstige
Bank <250m
Geldautomat <250m
Polizei <250m
Post <250m

Verkehr
Bus <250m
Bahnhof <500m
Autobahnanschluss <3.000m
Flughafen <5.750m

Angaben Entfernung Luftlinie / Quelle: OpenStreetMap
Beschreibung weiterlesen

Lage und Verkehrsanbindung

Inmitten der Fußgängerzone
2 Minuten vom Rathausplatz und Domplatz gelegen
4 Minuten vom Hauptbahnhof & P+R ÖBB entfernt
8 Minuten zum Universitätsklinikum St. Pölten
27 Minuten mit dem Zug zum Wien Hauptbahnhof
55 Minuten mit dem Zug zum Flughafen Wien

Domplatz, Kremser Gasse, Rathausplatz

Energieeffizienz

HWB:
60,1 kWh/(m²*a)
HWB Klasse:
C
fGEE:
1,12
fGEE Klasse:
C
Energieausweisart:
Energiebedarfs-ausweis
Gültig bis:
13.04.2030

Grundriss

Lageplan

3100 St. Pölten | Sankt Pölten (Stadt)

Lade...
Marion Kleebinder

Marion Kleebinder
Immobilienvermittlung

IMMOCENTRAL Immobilientreuhand GmbH

Lade...

Fotomix

Wohnküche Küche Detailansicht Wohnküche Wohnküche Vorraum / Abstellraum Schlafzimmer Schlafzimmer Badezimmer Badezimmer / WC Ausblick