NEU - 51m² TERRASSE - 3 Zimmerwohnung mit Grünblick | ZELLMANN IMMOBILIEN

Wohnung zur Miete in 1230 Wien - Gesamtmiete: 1.072,40 € / Objektnummer: 24361
Ausstattung: Boden Wohnküche / offene Küche Bad Kabel/Satelliten-TV Abstellraum Zentralheizung Terrasse

Preisinformationen

Gesamtmiete:
1.072,40 € / Monat
Betriebskosten netto:
184,38 € / Monat
Umsatzsteuer:
97,49 €
Kaution:
3 Bruttomonatsmieten
Provision:
Gemäß Erstauftraggeberprinzip bezahlt der Abgeber die Provision.

Fakten

Objektnummer:
24361
Objekttyp:
Wohnung
Terrasse:
1
Wohnfläche:
60,27 m²
Zimmer:
3
Badezimmer:
1
Toilette:
1
Stockwerk:
1
Neubau:
Ja
Letzte Sanierung:
2019
Zustand:
Neuwertig
Verfügbarkeit:
Verfügbar

Beschreibung

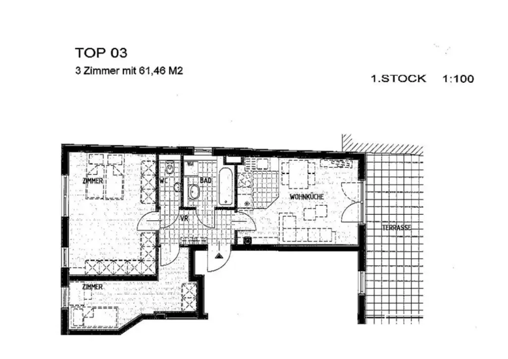
Diese moderne und sehr gepflegte 3-Zimmer-Mietwohnung befindet sich im 1. Stock eines neuwertigen Wohnhauses in der Breitenfurterstraße 313 im 23. Wiener Gemeindebezirk. Auf rund 60 m² Wohnfläche überzeugt die Wohnung durch eine durchdachte Raumaufteilung, helle Räume und eine hochwertige Ausstattung.

Das Herzstück der Wohnung ist die großzügige Wohnküche, die viel Platz für Wohnen, Essen und Entspannen bietet. Zwei weitere Zimmer eignen sich ideal als Schlaf-, Kinder- oder Arbeitszimmer. Das Badezimmer ist modern ausgestattet, ein separates WC sowie ein praktischer Abstellraum ergänzen den hohen Wohnkomfort.

Ein besonderes Highlight ist die ca. 51 m² große Terrasse, die in Richtung Liesingbach ausgerichtet ist. Sie bietet einen herrlichen Grünblick und lädt zu entspannten Stunden im Freien ein – ideal für ruhige Morgenstunden, sonnige Nachmittage oder gemütliche Abende im Grünen.

Die Lage verbindet ruhiges Wohnen mit guter Infrastruktur: Einkaufsmöglichkeiten, öffentliche Verkehrsmittel sowie die Naherholungsgebiete entlang des Liesingbachs befinden sich in unmittelbarer Umgebung.
Zu der angegebenen Miete sind zusätzlich ca. € 60,– monatlich für Warmwasser als Akontozahlung zu berücksichtigen.

Sollten wir Ihr Interesse geweckt haben, so ersuchen wir Sie in aller Höflichkeit um Ihre Anfrage über dieses Webportal. Wir senden Ihnen dann zeitnah sämtliche Unterlagen zu.

_______

WICHTIG:

Da e-mails leider manchmal in SPAM oder WERBE Ordnern landen, ersuchen wir Sie diese zu kontrollieren. Wir antworten in der Regel binnen weniger Stunden. Auch am Wochenende! Teilen Sie uns bitte auch Ihre Telefonnummer mit, da wir Sie per SMS über die Versendung des Exposés verständigen können! Dieses Objekt wird Ihnen unverbindlich und freibleibend zur Miete angeboten. Oben angeführte Angaben basieren auf Informationen und Unterlagen des Eigentümers und sind unsererseits ohne Gewähr. 

Noch nichts gefunden? Wir informieren Sie über geeignete Immobilienangebote noch vor allen anderen.
Legen Sie jetzt Ihren individuellen Suchagenten unter folgendem Link an. Wir schicken Ihnen passende Immobilien exklusiv vorab zu. 

-> Suchagent anlegen [https://zellmann-immobilien.service.immo/registrieren/de]

Hinweis gemäß Energieausweisvorlagegesetz: Ein Energieausweis wurde vom Eigentümer bzw. Verkäufer, nach unserer Aufklärung über die generell geltende Vorlagepflicht, sowie Aufforderung zu seiner Erstellung noch nicht vorgelegt. Daher gilt zumindest eine dem Alter und der Art des Gebäudes entsprechende Gesamtenergieeffizienz als vereinbart. Wir übernehmen keinerlei Gewähr oder Haftung für die tatsächliche Energieeffizienz der angebotenen Immobilie.

Der Immobilienmakler erklärt, dass er – entgegen dem in der Immobilienwirtschaft üblichen Geschäftsgebrauch des Doppelmaklers – einseitig nur für den Vermieter tätig ist.

ZELLMANN IMMOBILIEN GmbH
Vertrauen. Service. Qualität.

Infrastruktur / Entfernungen

Gesundheit
Arzt 1.000m
Apotheke 500m
Klinik 500m
Krankenhaus 2.000m

Kinder & Schulen
Schule 500m
Kindergarten 500m
Universität 5.000m
Höhere Schule 5.000m

Nahversorgung
Supermarkt 500m
Bäckerei 500m
Einkaufszentrum 1.500m

Sonstige
Geldautomat 500m
Bank 500m
Post 1.500m
Polizei 1.500m

Verkehr
Bus 500m
U-Bahn 2.000m
Straßenbahn 2.000m
Bahnhof 500m
Autobahnanschluss 2.500m

Angaben Entfernung Luftlinie / Quelle: OpenStreetMap
Beschreibung weiterlesen

Lage und Verkehrsanbindung

an der Liesing

Liesing

Grundriss

Lageplan

1230 Wien | Wien 23., Liesing

Lade...
Nicole Zellmann

Nicole Zellmann
geschäftsführende Gesellschafterin

ZELLMANN IMMOBILIEN GmbH | Vertrauen. Service. Qualität.

Anrufen
Lade...

Fotomix

Bild 1 Bild 2 Bild 3 Bild 4 Bild 5 Bild 6 Bild 7