NEU - 6 Bauplätze - Premiumprojekt - ISTA-Nähe - 4.796 m² Grundstück - 2.233 m² bewilligte Nutzfläche - Baubewilligt

Grundstück zum Kauf in 3400 Klosterneuburg - Kaufpreis: 417.000 € / Objektnummer: 8436

Preisinformationen

Kaufpreis:
417.000 €
Vermittlungsprovision:
Ja
Provision:
3% des Kaufpreises zzgl. 20% USt.

Fakten

Objektnummer:
8436
Objekttyp:
Grundstück
Grundstücksfläche:
782 m²
Verfügbarkeit:
Verfügbar

Beschreibung

Baubewilligt • exklusiv • sofort realisierbar
In begehrter Grünruhelage von Maria Gugging gelangt dieses außergewöhnliche Bauträgerprojekt mit rechtskräftiger Baubewilligung zum Verkauf. Auf einer Gesamtgrundstücksfläche von ca. 4.796 m² entsteht ein hochwertiges Wohnensemble mit einer geplanten Gesamtnutzfläche von ca. 2.233 m². Die leichte Hanglage ermöglicht attraktive Ausblicke über die umliegende Hügellandschaft und garantiert zugleich höchste Privatsphäre.

Das genehmigte Projekt umfasst moderne Doppelhäuser mit großzügigen Eigengärten, Terrassen und Balkonen. Sämtliche Einreichpläne und Bewilligungen liegen vor. Sie erwerben ein baureifes Projekt ohne Planungs- und Genehmigungsrisiko.

Projektkennzahlen

* Grundstück gesamt: ca. 4.796 m²
* Genehmigte Gesamtnutzfläche: ca. 2.233 m²
* 6 Bauplätze mit bewilligter Doppelhausbebauung
* Großzügige Außenflächen & private Eigengärten
* Hochwertiges, zielgruppenstarkes Wohnkonzept

Flexible Erwerbsstruktur
Die einzelnen Bauplätze können auch separat erworben werden, wodurch sowohl Bauträger als auch private Bauherren oder Baugemeinschaften individuelle Umsetzungsmöglichkeiten erhalten.

Darüber hinaus unterstützen wir Sie auf Wunsch gerne bei der Realisierung des Bauvorhabens von der Projektkoordination über die Vermittlung zuverlässiger Bauunternehmen bis hin zur schlüsselfertigen Umsetzung.
Alles aus einer Hand - effizient, strukturiert und professionell begleitet.

Projektpotenzial für Bauträger
Aufrechte Baubewilligung
Attraktive, ruhige Wohnlage mit Grünblick
Klare Zielgruppe im ISTA-Umfeld
Hohe Nachfrage nach modernen Doppelhaus-Einheiten
Gute Weiterverwertbarkeit (Verkauf oder Vermietung)

Exzellente Lage mit nachhaltigem Wertpotenzial
Nur wenige Gehminuten vom renommierten Institute of Science and Technology Austria (ISTA) entfernt, bietet der Standort eine einzigartige Kombination aus internationalem Umfeld, Naturqualität und urbaner Nähe. Klosterneuburg ist in rund 12 Minuten erreichbar, das Wiener Stadtzentrum in ca. 30 Minuten. Infrastruktur, Schulen und Nahversorgung befinden sich im unmittelbaren Umfeld.

Standortvorteile

* Nur ca. 750 m zum Institute of Science and Technology Austria (ISTA) 
* Ortszentrum fußläufig erreichbar
* Klosterneuburg-Zentrum ca. 12 Minuten mit dem PKW 
* Wien Zentrum ca. 30 Minuten
* Bahnhof Klosterneuburg-Kierling ca. 11 Minuten mit dem Auto  

Ihr strategischer Vorteil
In der aktuellen Marktsituation bedeutet dieses Projekt vor allem eines -> Zeitersparnis von bis zu 24 Monaten.

Keine Einreichplanung, kein Behördenverfahren, kein Bewilligungsrisiko, Sie starten unmittelbar mit der Umsetzung. Ideal für Bauträger, Investoren oder Projektentwickler mit Fokus auf hochwertige Wohnimmobilien im Wiener Umland sowie für die Vermietung an internationale Fachkräfte und Expats im ISTA-Umfeld.

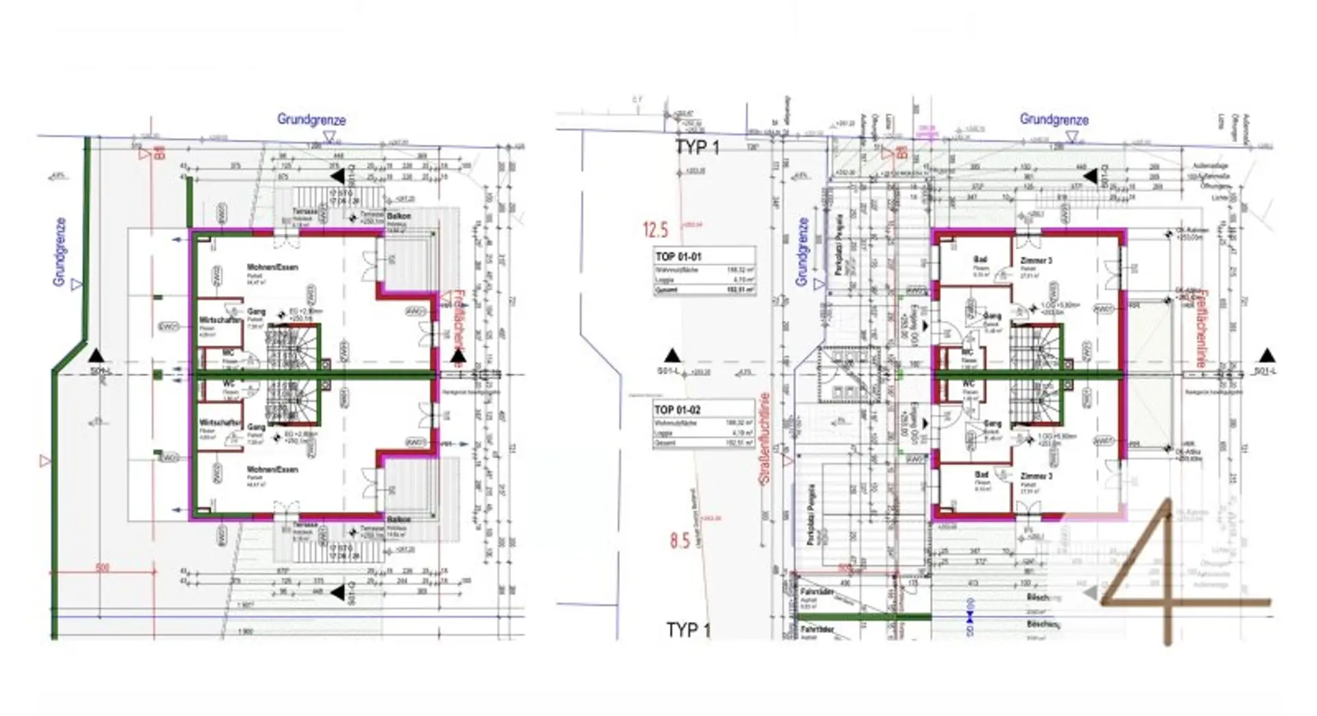
Bauplatz 1 ca. 782 m² Grundstück | ca. 385 m² Wohnnutzfläche möglich | Eigengärten bis ca. 357,9 m² gesamt

In begehrter Grünruhelage von Maria Gugging gelangt dieser attraktive Bauplatz 1 mit ca. 782 m² Grundstücksflächezum Verkauf. Das Grundstück ist Teil eines bereits bewilligten Doppelhausprojekts – Sie erwerben somit ein baureifes Grundstück inklusive rechtskräftiger Baubewilligung.

Je nach gewählter Einheit ist eine Wohnnutzfläche von rund 385 m² pro Doppelhaus (ca. 192,51 pro Einheit) realisierbar. Großzügige Eigengärten mit bis zu ca. 184,10 m² Gartenfläche, Terrassenflächen bis rund 20,77 m² sowie Balkone bei ausgewählten Einheiten bieten ein hochwertiges Wohnkonzept mit viel Privatsphäre.

Die Hanglage ermöglicht attraktive Ausblicke über die umliegende Hügellandschaft und schafft ein exklusives Wohngefühl in absoluter Ruhelage.
Eckdaten 

* Grundstück: ca. 782m²
* Bewilligte Wohnnutzfläche gesamt: ca. 385m²  (Doppelhaus)
* Pro Einheit ca. 192,51m²
* Eigengärten: ca. 173,80m² - 184,10m² 
* Garten-/Terrassenflächen: ca. 20,75m² - 20,77m²
* Baubewilligung rechtskräftig
*
Sofort realisierbar - kein Planungsrisiko

Ihr Vorteil

* Zeitersparnis von bis zu 24 Monaten
* Keine Einreichplanung notwendig
* Sofortiger Baustart möglich
* Ideal für Bauträger oder private Bauherren

Auf Wunsch begleiten wir Sie auch bei der kompletten Realisierung des Bauvorhabens von der Baukoordination bis zur schlüsselfertigen Umsetzung.
Alles aus einer Hand.

Standortvorteile

* Nur ca. 750 m zum Institute of Science and Technology Austria (ISTA) 
* Ortszentrum fußläufig erreichbar
* Klosterneuburg-Zentrum ca. 12 Minuten mit dem PKW 
* Wien Zentrum ca. 30 Minuten
* Bahnhof Klosterneuburg-Kierling ca. 11 Minuten mit dem Auto  

Gerne steht Ihnen Herr Michael Hellebrand für weitere Fragen bzw. flexibel gestaltbare Besichtigungstermine unter 0664 75346995 [tel:066475346995] zur Verfügung.  

www.4immobilien.at

Wir weisen ausdrücklich auf unser wirtschaftliches Naheverhältnis mit dem Abgeber/der Abgeberin und auf unsere Vermittlungstätigkeit als Doppelmakler hin. 

Irrtum und Änderungen vorbehalten!

Der Vermittler ist als Doppelmakler tätig.
Beschreibung weiterlesen

Grundriss

Lageplan

3400 Klosterneuburg | Sankt Pölten (Land)

Lade...
Michael Hellebrand

Michael Hellebrand
Immobilienmakler Wien - Niederösterreich

4immobilien

Lade...

Fotomix

Bild 1 Bild 2 Bild 3