NEU - 67,11 m² Gartenwohnung mit Loggia & Wintergarten | Miete € 799,- | verfügbar ab 01.05.2026

Wohnung zur Miete in 3100 St. Pölten - Gesamtmiete: 799,00 € / Objektnummer: 5810
Ausstattung: Boden Fahrstuhl Bad Möbliert Rollladen Kabel/Satelliten-TV Parkplatz Außenparkplatz Fahrradraum Abstellraum Zentralheizung Loggia Terrasse Garten
Wohnzimmer
Loggia / Wintergarten
Eigengarten
Eigengarten
Küche
Badezimmer
Vorraum
Treppenhaus
Treppenhaus
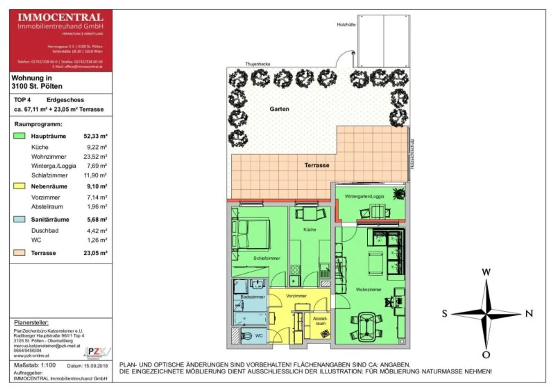
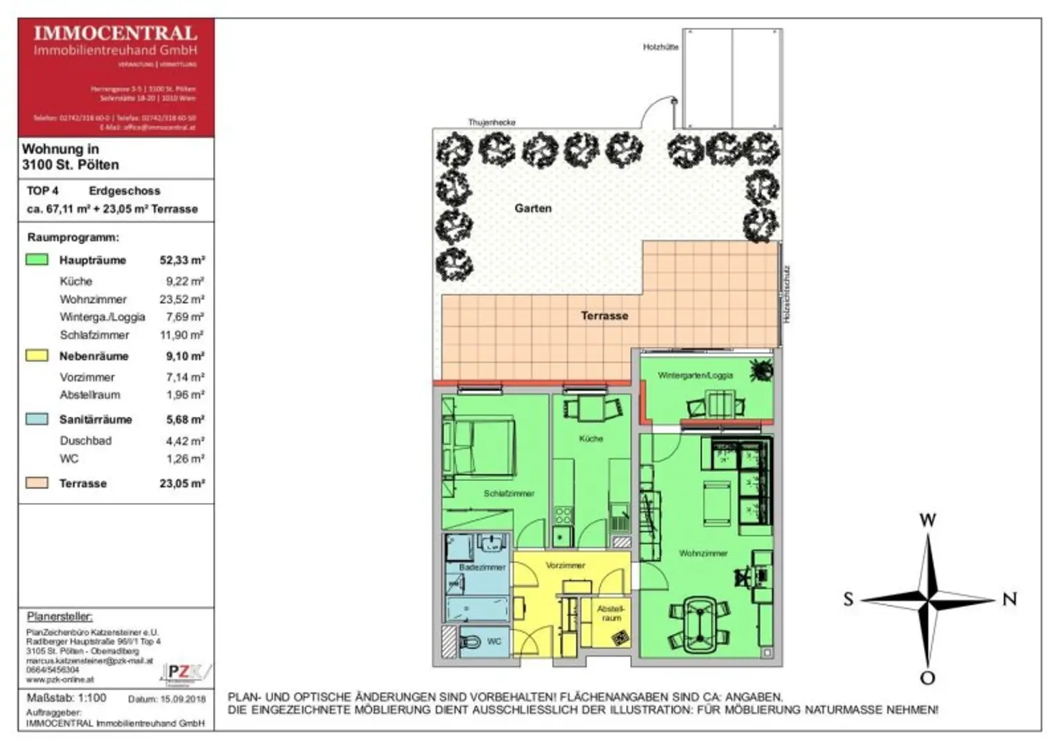
Planskizze

Preisinformationen

Gesamtmiete:
799,00 € / Monat
Betriebskosten netto:
172,51 € / Monat
Kaution:
3.000,00 €
Provision:
Gemäß Erstauftraggeberprinzip bezahlt der Abgeber die Provision.

Fakten

Objektnummer:
5810
Objekttyp:
Wohnung
Terrasse:
1
Loggia:
1
Wohnfläche:
67,11 m²
Gartenfläche:
56 m²
Zimmer:
2
Badezimmer:
1
Toilette:
1
Neubau:
Ja
Zustand:
Gepflegt
Verfügbarkeit:
Verfügbar

Beschreibung

67,11 m² Wohnfläche inkl. Loggia / Wintergarten
Erdgeschoss mit Lift – 01.05.2026 

Raumaufteilung: Vorraum, Wohnzimmer, Loggia, Terrasse, Garten, Schlafzimmer, Bad, WC, Abstellraum

Miete gesamt: € 799,- inkl. BK/USt.

Heizkosten / Warmwasser: € 109,79 inkl. USt.

Kaution: € 3.000,-  

 

Wir weisen darauf hin, dass zwischen dem Vermittler und dem zu vermittelnden Dritten ein familiäres oder wirtschaftliches Naheverhältnis besteht.

Der Immobilienmakler erklärt, dass er – entgegen dem in der Immobilienwirtschaft üblichen Geschäftsgebrauch des Doppelmaklers – einseitig nur für den Vermieter tätig ist.

Infrastruktur / Entfernungen

Gesundheit
Arzt <750m
Apotheke <500m
Klinik <1.500m
Krankenhaus <3.750m

Kinder & Schulen
Schule <500m
Kindergarten <500m
Universität <3.500m
Höhere Schule <750m

Nahversorgung
Supermarkt <500m
Bäckerei <500m
Einkaufszentrum <2.250m

Sonstige
Bank <500m
Geldautomat <1.500m
Polizei <500m
Post <1.500m

Verkehr
Bus <250m
Bahnhof <750m
Autobahnanschluss <1.000m
Flughafen <4.000m

Angaben Entfernung Luftlinie / Quelle: OpenStreetMap
Beschreibung weiterlesen

Lage und Verkehrsanbindung

1 Minute zum Fachmarktzentrum, Media Mark, BILLA PLUS
2 Minuten vom Seminarzentrum Schwaighof entfernt
4 Minuten von der Park & Ride Porschestrasse entfernt
5 Minuten von der Traisen Promenade gelegen
5 Minuten zum Kindergarten
5 Minuten zum Gymnasium
27 Minuten mit dem Zug zum Wien Hauptbahnhof

BILLA Plus, Media-Markt, VAZ, NDU, WIFI

Energieeffizienz

HWB:
66,9 kWh/(m²*a)
HWB Klasse:
C
fGEE:
1,75
fGEE Klasse:
C
Energieausweisart:
Energiebedarfs-ausweis
Gültig bis:
13.12.2018

Grundriss

Lageplan

3100 St. Pölten | Sankt Pölten (Stadt)

Lade...
Richard Abdel-Asis

Richard Abdel-Asis
Prokurist - Leiter der Immobilienvermittlung

IMMOCENTRAL Immobilientreuhand GmbH

Lade...

Fotomix

Wohnzimmer Loggia / Wintergarten Eigengarten Eigengarten Küche Badezimmer Vorraum Treppenhaus Treppenhaus